125 000 000 Р 1 488 100 $ или 1 284 800

Информация об помещении

1
Этаж

Состояние и оснащение

Количество этажей
4
Развернуть
Агент
+7 (918) 371-42-21
Начать чат с агентом

Помещение свободного назначения в Краснодарский край, Краснодар ...

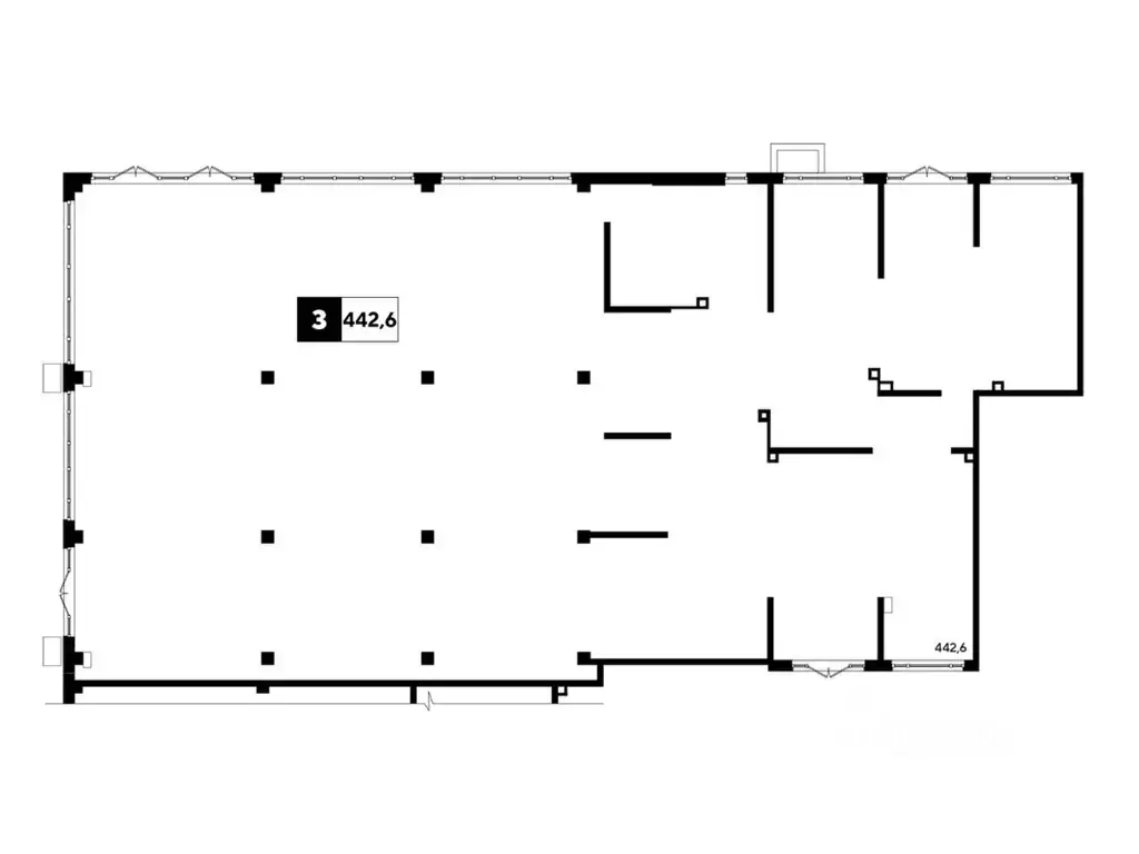
Срочная продажа. Цена снижена.Отдельно стоящее здания в центре 4 этажа.Первая линия.Площадь здания: 1 192,1 м (этаж около 300м2)Эксплуатируемая кровляЗемельный участок в собственности 421 мСвоя парковка на 3 машины с возможностью выкупа смежного участка (большой платной парковки).Поэтажная планировка свободная, на последнем этаже кабинетная.Две независимые лестницы.Чистовая отделка (пол плитка, потолок армстронг)Высота потолков: 3,3 м.Центральная вентиляция и кондиционированиеЛифтовая шахта со спуском в подвал2 Сейф-комнатыЦентральные вода и канализацияНа каждом этаже есть с/у и мокрые точкиЭлектричество 65 кВт с возможностью увеличенияЛокация и трафик:Высокий автомобильный и пешеходный трафикОстановки общественного транспорта рядомВозможные форматы использования: Торговый центр, шоу-рум, медицинский или стоматологический центр, фитнес-клуб, образовательный центр, многофункциональный офис, call-центр, IT-хаб, гостиница и другие проекты.Продажа от собственника. Без НДС.Номер объекта: 1/621702/23407

Читать полностью
    Позвонить Написать
    125 000 000 Р1 488 100 $ или 1 284 800
    Агент
    +7 (918) 371-42-21
    Начать чат с агентом
    Похожие предложения
    Помещение свободного назначения в Краснодарский край, Краснодар ... - Фото 1
    Помещение свободного назначения в Краснодарский край, Краснодар ... - Фото 2
    Продаю нежилое помещение свободного назначения общей площадью 300 мОт Собственника. Без комиссии- Первая линия расположения объекта- Первый этаж 4-х этажного здания- Район Черемушки- Активный автомобильный и пеший трафик - Городская парковка - Отдельная...
    • 1/4 эт.
    135 000 000 Р
    Агент
    +7 (918) Показать номер
    Посмотреть контакты
    Помещение свободного назначения в Краснодарский край, Краснодар Имени ... - Фото 1
    Помещение свободного назначения в Краснодарский край, Краснодар Имени ... - Фото 2
    Арт.Это реальный объект и именно его я Вам покажу В продаже встроено-пристроенное коммерческое помещение 426,8м2, расположенное на фасаде крупного ЖК (Окна на Петра Метальникова). Лучшие видовые характеристики для вывески Без комиссий и со стороны покупателя...
    • 2/15 эт.
    128 040 000 Р
    Агент
    +7 (989) Показать номер
    Посмотреть контакты
    Помещение свободного назначения в Краснодарский край, Краснодар 9-й ... - Фото 1
    Помещение свободного назначения в Краснодарский край, Краснодар 9-й ... - Фото 2
    Арт.Это реальный объект и именно его я вам покажу В продаже коммерческое помещение 696м2, расположенное в новом ЖК Комфорт+ класса. Объект реальный Без комиссий со стороны покупателя и процентов.О ПОМЕЩЕНИИ:-дом сдан-площадь 696м2-назначение: Магнит,...
    • 1/12 эт.
    125 280 000 Р
    Агент
    +7 (989) Показать номер
    Посмотреть контакты
    Помещение свободного назначения в Краснодарский край, Краснодар ... - Фото 1
    Помещение свободного назначения в Краснодарский край, Краснодар ... - Фото 2
    Продажа трех зданий с арендаторами, расположено на первой линии ул. Мира Локация: г. Краснодар, ЦМР, ул. Мира ЗУ-1331 кв. м и здания в собственностиОбъект и участок оформлены на ОООПродажа 100 доли в юридическом лицеВсе документы готовы к сделкеОбщая...
    • 1/2 эт.
    135 000 000 Р
    Агент
    +7 (988) Показать номер
    Посмотреть контакты
    Помещение свободного назначения в Краснодарский край, Краснодар ... - Фото 1
    Помещение свободного назначения в Краснодарский край, Краснодар ... - Фото 2
    В реализации — коммерческие помещения свободного назначения в литере 33 общей площадью кв.м. на 1 этаже от застройщика DOGMA в микрорайоне Самолёт от застройщика DOGMA, одного из ведущих девелоперов Краснодарского края.DOGMA 14 лет: дарим скидку на...
    • 1/16 эт.
    120 960 000 Р
    Агент
    +7 (989) Показать номер
    Посмотреть контакты

    Не нашли подходящего объявления?

    Оставьте заявку, и наши риэлторы подберут псн в районе Краснодара

    (0)