Россия, Краснодарский край, Краснодар, Самолет-6 жилой комплекс
120 960 000 Р 1 440 000 $ или 1 243 300

Информация об помещении

1
Этаж

Состояние и оснащение

Количество этажей
16
Развернуть
Агент
+7 (989) 830-51-63
Начать чат с агентом

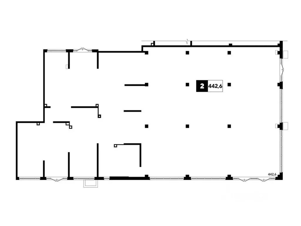
Помещение свободного назначения в Краснодарский край, Краснодар ...

В реализации — коммерческие помещения свободного назначения в литере 33 общей площадью кв.м. на 1 этаже от застройщика DOGMA в микрорайоне Самолёт от застройщика DOGMA, одного из ведущих девелоперов Краснодарского края.DOGMA 14 лет: дарим скидку на покупку коммерческих помещений от 14 * Самолёт — концептуальный жилой микрорайон комфорт-класса, расположенный на северо-западе Краснодара, в районе Западного Обхода. Проект создан по принципу город в городе и включает современное жильё с разнообразными планировками, развитую социальную инфраструктуру и обширные зоны отдыха. На территории микрорайона работают 4 школы, 9 детских садов, поликлиника, торговые центры, парки и аллеи общей площадью более 23 гектаров. Здесь предусмотрены безопасные дворы без машин, спортивные и детские площадки, светомузыкальный фонтан, амфитеатр и скейт-парк.Преимущества помещений в микрорайоне Самолёт :• Удобное расположение на первом этаже с витражным остеклением, обеспечивающим естественное освещение и привлекательный внешний вид.• Высокий пешеходный трафик благодаря плотной жилой застройке и развитой инфраструктуре.• Наличие парковочных мест и подземных паркингов для комфорта клиентов и сотрудников.• Все необходимые коммуникации, включая коммерческую вытяжку, готовы к использованию.• Свободная планировка позволяет адаптировать помещение под любые задачи.DOGMA — федеральный девелопер, входящий в ТОП-3 крупнейших застройщиков России по объёму строительства. С 2011 года компания реализовала проекты общей площадью более м, более 98 домов сдано точно в срок и более 23 000 семей живут в уже построенных кварталах.Мы не просто строим дома — мы создаём наследие.Свяжитесь с нами, чтобы узнать подробности и забронировать помещение *Период действия скидки: с 13 марта по 31 марта 2026 г.

Читать полностью
    Позвонить Написать
    120 960 000 Р1 440 000 $ или 1 243 300
    Агент
    +7 (989) 830-51-63
    Начать чат с агентом
    Похожие предложения в Краснодаре
    Помещение свободного назначения в Краснодарский край, Краснодар ... - Фото 1
    Помещение свободного назначения в Краснодарский край, Краснодар ... - Фото 2
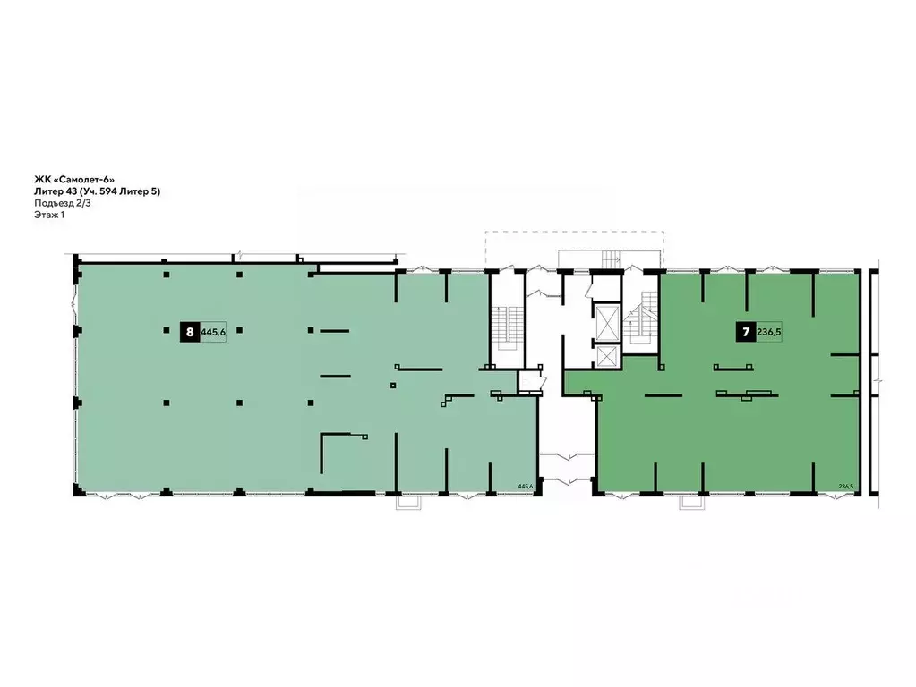
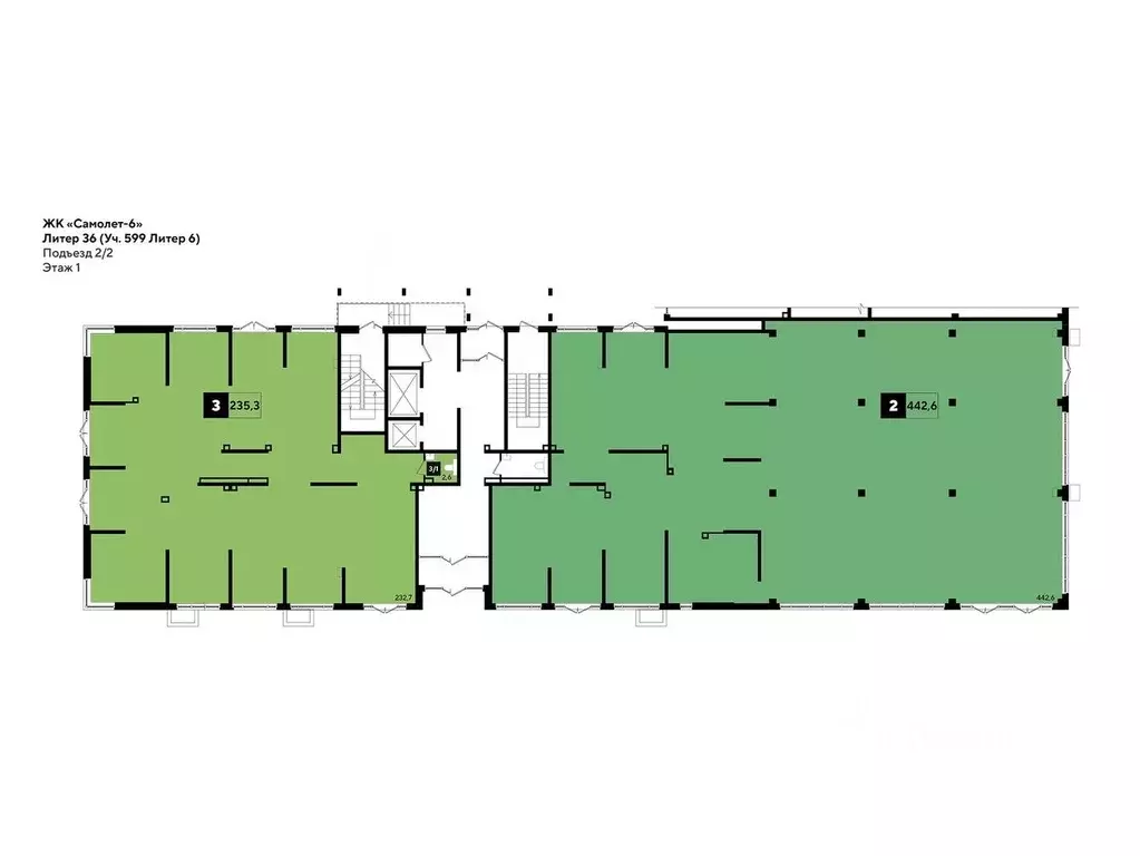
    В реализации — коммерческие помещения свободного назначения в литере 36 общей площадью кв.м. на 1 этаже от застройщика DOGMA в микрорайоне Самолёт от застройщика DOGMA, одного из ведущих девелоперов Краснодарского края.DOGMA 14 лет: дарим скидку на...
    • 1/16 эт.
    119 944 600 Р
    Агент
    +7 (989) Показать номер
    Посмотреть контакты
    Помещение свободного назначения в Краснодарский край, Краснодар ... - Фото 1
    Помещение свободного назначения в Краснодарский край, Краснодар ... - Фото 2
    В реализации — коммерческие помещения свободного назначения в литере 43 общей площадью кв.м. на 1 этаже от застройщика DOGMA в микрорайоне Самолёт от застройщика DOGMA, одного из ведущих девелоперов Краснодарского края.DOGMA 14 лет: дарим скидку на...
    • 1/16 эт.
    120 312 000 Р
    Агент
    +7 (989) Показать номер
    Посмотреть контакты
    Помещение свободного назначения в Краснодарский край, Краснодар 2-я ... - Фото 1
    Помещение свободного назначения в Краснодарский край, Краснодар 2-я ... - Фото 2
    Продается автосервис со всем оборудованием.Площадь земельного участка 18 соток в собственности. ВРИ: для эксплуатации помещения автосервиса.На земельном участке расположены строения общей площадью 723 м2:- двухэтажное капитальное здание площадью 572 м2,...
    • 1/2 эт.
    115 680 000 Р
    Агент
    +7 (918) Показать номер
    Посмотреть контакты
    Помещение свободного назначения в Краснодарский край, Краснодар ... - Фото 1
    Помещение свободного назначения в Краснодарский край, Краснодар ... - Фото 2
    Продаётся 3х-этажное здание, расположенное на земельном участке 662м.кв. также находится в собственности Преимущества: Расположение идеально для большой линейки видов деятельности, находится непосредственно вдоль дороги по ул. Северной. Имеется собственная...
    • 1/4 эт.
    115 000 000 Р
    Агент
    +7 (918) Показать номер
    Посмотреть контакты
    Помещение свободного назначения в Краснодарский край, Краснодар Имени ... - Фото 1
    Помещение свободного назначения в Краснодарский край, Краснодар Имени ... - Фото 2
    Арт.Это реальный объект и именно его я Вам покажу В продаже встроено-пристроенное коммерческое помещение 426,8м2, расположенное на фасаде крупного ЖК (Окна на Петра Метальникова). Лучшие видовые характеристики для вывески Без комиссий и со стороны покупателя...
    • 2/15 эт.
    128 040 000 Р
    Агент
    +7 (989) Показать номер
    Посмотреть контакты

    Не нашли подходящего объявления?

    Оставьте заявку, и наши риэлторы подберут псн в районе Краснодара

    (0)