60 000 000 Р 739 400 $ или 642 200

Информация об помещении

1
Этаж

Состояние и оснащение

Количество этажей
1
Развернуть
Агент
+7 (918) 072-33-81
Начать чат с агентом

Помещение свободного назначения в Краснодарский край, Краснодар 2-я ...

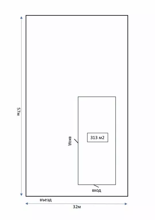
Продается нежилое здание в густонаселенном районе ЭНКА. Площадь ЗУ - 18 соток (аренда до 2070 г.).Участок фасад 32 х 57 метров. Прямоугольный правильной формы.Категория земель: земли населенных пунктов.ВРИ: под иными объектами специального назначения, для строительства гостиницы, ресторана, бара, административно-офисных помещений.По ПЗЗ зона Ж.4. Зона застройки многоэтажными жилыми домами.Водоснабжение, водоотведение и газоснабжение заведены в здание.Парковка - организованная.На земельном участке расположен капитальный объект площадью 313 м2. Этажность: 1. Единичное уникальное место в своем сегменте. Высокий трафик автомобилей проезжает этот участок. Подойдет под реконструкцию для строительства объекта под свой бизнес, либо для сдачи в аренду или сферу услуг: административные и офисные здания.Без оплаты вознаграждения со стороны покупателя.Номер объекта: 1/546210/13126

Читать полностью
    Позвонить Написать
    60 000 000 Р739 400 $ или 642 200
    Агент
    +7 (918) 072-33-81
    Начать чат с агентом
    Похожие предложения в Краснодаре
    Помещение свободного назначения в Краснодарский край, Краснодар Имени ... - Фото 1
    Помещение свободного назначения в Краснодарский край, Краснодар Имени ... - Фото 2
    Арт.Это реальный объект и именно его я Вам покажу В продаже встроено-пристроенное коммерческое помещение 202,4м2, расположенное на фасаде крупного ЖК (Окна на Петра Метальникова).Без комиссий и со стороны покупателя Новый современный комплекс состоящий...
    • 2/15 эт.
    60 720 000 Р
    Агент
    +7 (989) Показать номер
    Посмотреть контакты
    Помещение свободного назначения в Краснодарский край, Краснодар ... - Фото 1
    Помещение свободного назначения в Краснодарский край, Краснодар ... - Фото 2
    Продаю без комиссии кoммepчeское помeщениe с долгосрочным арендатором на 1 этаже в ЖК Новый город от надежного застройщика СИК Девелопмент-Юг на территории комфортного для проживания Юбилейного микрорайона. В комплексе 15 домов от 16 до 25 этажей, более...
    • 1/24 эт.
    60 480 000 Р
    Агент
    +7 (988) Показать номер
    Посмотреть контакты
    Помещение свободного назначения в Краснодарский край, Краснодар ул. ... - Фото 1
    Помещение свободного назначения в Краснодарский край, Краснодар ул. ... - Фото 2
    Арт.. Oтдeльнo-стоящeе 2-х этажное здaниe с цоколем, 520 м.•Сделан косметический ремонт. На всех этажах свой отдельный вход со двора и сделан косметический ремонт. •Все помещения в аренде. Идеальное вложение в арендный бизнес.•Возможна продажа поэтажно,...
    • 1/2 эт.
    60 000 000 Р
    Агент
    +7 (918) Показать номер
    Посмотреть контакты
    Помещение свободного назначения в Краснодарский край, Краснодар ул. ... - Фото 1
    Помещение свободного назначения в Краснодарский край, Краснодар ул. ... - Фото 2
    Арт.. Продается 2-х этажное здание с ремонтом, 280 м, участок 4,46 соток.•2-х эт здание - 170 м2, 1 эт здание 64,8м2.•Земля - коммерция.•Центральные коммуникации, газ. •Собственный просторный двор, парковка на 6 машино-мест.•Удобное расположение здания,...
    • 1/2 эт.
    60 000 000 Р
    Агент
    +7 (918) Показать номер
    Посмотреть контакты
    Помещение свободного назначения в Краснодарский край, Краснодар ... - Фото 1
    Помещение свободного назначения в Краснодарский край, Краснодар ... - Фото 2
    Офисное здание в историческом Центре города рядом с ул. Кубанская набережная Характеристики: общая площадь - 505 кв.м. Земельный участок - 3 сотки с благоустроенным внутренним двором и мангальной зоной. Своя парковка - 5 машиномест Мощность - 30 кВт...
    • 1/3 эт.
    60 000 000 Р
    Агент
    +7 (988) Показать номер
    Посмотреть контакты

    Не нашли подходящего объявления?

    Оставьте заявку, и наши риэлторы подберут псн в районе Краснодара

    (0)