13 300 000 Р 168 000 $ или 144 800

Информация об помещении

1
Этаж

Состояние и оснащение

Количество этажей
12
Развернуть
Агент
+7 (918) 371-73-34
Начать чат с агентом

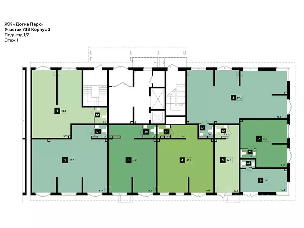
Помещение свободного назначения в Краснодарский край, Краснодар проезд ...

Арт.. Продается помещение, 70.6 м2, 1 этаж, с сетевым арендатором Вайлдберриз.•Свой отдельный вход•3 кабинета, комната для приема пищи, санузел•Бесплатная парковка•Центральные коммуникации. Мокрая точка в двух кабинетах•Электричество 7 кВт. Во всех комнатах сплит-система•Возможность установить на фасаде вывеску•Густонаселенный район. Интенсивный пешеходный трафикВ договоре аренды предусмотрена ежегодная индексация - 10 .Один собственник, без обременений, подходит под ипотеку, быстрый выход на сделку. Юридическое сопровождение включено Просмотр по предварительной договоренности. От Собственника Без комиссии со стороны покупателя Номер объекта: 1/537219/21862

Читать полностью
    Позвонить Написать
    13 300 000 Р168 000 $ или 144 800
    Агент
    +7 (918) 371-73-34
    Начать чат с агентом
    Похожие предложения
    Помещение свободного назначения в Краснодарский край, Краснодар проезд ... - Фото 1
    Помещение свободного назначения в Краснодарский край, Краснодар проезд ... - Фото 2
    Продается торгово-офисное помещение на первом этаже в микрорайоне Репина в Прикубанском округе Краснодара.Помещение находится на въезде в микрорайон Репина, крыльцо выходит на проезд Площадь 70, 6 кв. м.Дом сдан, помещение с ремонтомПланировка торгово-офиснаяЦентральные...
    • 1/16 эт.
    13 399 000 Р
    Агент
    +7 (918) Показать номер
    Посмотреть контакты
    Помещение свободного назначения в Краснодарский край, Краснодар Имени ... - Фото 1
    Помещение свободного назначения в Краснодарский край, Краснодар Имени ... - Фото 2
    Продается торгово-офисное помещение на первом этаже в микрорайоне Петра Метальникова в Прикубанском округе Краснодара.Помещение находится в ЖК Времена года и имеет отдельный вход Площадь 70 кв. м.Сдается в аренду более года, стабильный арендатор.Дом сдан,...
    • 1/17 эт.
    12 990 000 Р
    Агент
    +7 (918) Показать номер
    Посмотреть контакты
    Помещение свободного назначения в Краснодарский край, Краснодар ул. ... - Фото 1
    Помещение свободного назначения в Краснодарский край, Краснодар ул. ... - Фото 2
    В реализации — коммерческие помещения свободного назначения в литере 15 общей площадью 47.4 кв.м. на 1 этаже от застройщика DOGMA в микрорайоне DOGMA PARK от застройщика DOGMA, одного из ведущих девелоперов Краснодарского края. DOGMA PARK...
    • 1/16 эт.
    12 286 080 Р
    Агент
    +7 (988) Показать номер
    Посмотреть контакты
    Помещение свободного назначения в Краснодарский край, Краснодар ул. ... - Фото 1
    Помещение свободного назначения в Краснодарский край, Краснодар ул. ... - Фото 2
    В реализации — коммерческие помещения свободного назначения в литере 6 общей площадью 48.1 кв.м. на 1 этаже от застройщика DOGMA в микрорайоне DOGMA PARK от застройщика DOGMA, одного из ведущих девелоперов Краснодарского края. DOGMA PARK ...
    • 1/16 эт.
    13 227 500 Р
    Агент
    +7 (988) Показать номер
    Посмотреть контакты
    Помещение свободного назначения в Краснодарский край, Краснодар ... - Фото 1
    Помещение свободного назначения в Краснодарский край, Краснодар ... - Фото 2
    Продается классное коммерческое помещение рядом с парком Галицкого со стильным ремонтом ОБ ОБЪЕКТЕ . • Помещение расположено на высоком цокольном этаже( евроцоколе) монолитно-кирпичного дома в ЖК Гарантияядом с парком Галицкого. • Площадь помещения...
    • -1/1 эт.
    13 000 000 Р
    Агент
    +7 (918) Показать номер
    Посмотреть контакты

    Не нашли подходящего объявления?

    Оставьте заявку, и наши риэлторы подберут псн в районе Краснодара

    (0)