Россия, Краснодарский край, Краснодар, ул. Анны Ахматовой, 6/1
13 227 500 Р 167 100 $ или 144 000

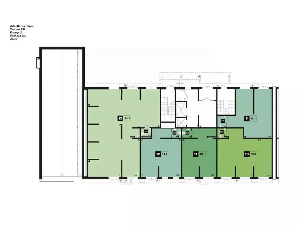
Информация об помещении

1
Этаж

Состояние и оснащение

Количество этажей
16
Развернуть
Агент
+7 (988) 382-36-32
Начать чат с агентом

Помещение свободного назначения в Краснодарский край, Краснодар ул. ...

В реализации — коммерческие помещения свободного назначения в литере 6 общей площадью 48.1 кв.м. на 1 этаже от застройщика DOGMA в микрорайоне DOGMA PARK от застройщика DOGMA, одного из ведущих девелоперов Краснодарского края. DOGMA PARK — это современный микрорайон комфорт-класса с прогнозируемой численностью населения более 100 000 человек, активно развивающийся с учётом потребностей жителей и бизнеса. Микрорайон отличается развитой инфраструктурой: широкие четырёхполосные дороги, школа и детский сад напротив, а также 20 гектаров парковых зон с фонтанами, аллеями, ресторанами и кафе. Преимущества помещений DOGMA PARK : Удобное расположение на первом этаже с витражным остеклением, привлекающим внимание и обеспечивающим естественное освещение. Активный пешеходный трафик, включая родителей и школьников благодаря расположенной напротив школе. Наличие парковочных мест для клиентов и сотрудников. Полный набор коммуникаций, включая коммерческую вытяжку, для быстрого запуска бизнеса. Идеальная планировка с возможностью адаптации под любые задачи. DOGMA — федеральный девелопер, входящий в ТОП-5 крупнейших застройщиков России по объёму строительства. С 2011 года компания реализовала проекты общей площадью более м, более 80 домов сдано точно в срок и более 23 000 семей живут в уже построенных кварталах. Мы не просто строим дома — мы создаём наследие. Свяжитесь с нами, чтобы узнать подробности и забронировать помещение

Читать полностью
    Позвонить Написать
    13 227 500 Р167 100 $ или 144 000
    Агент
    +7 (988) 382-36-32
    Начать чат с агентом
    Похожие предложения в Краснодаре
    Помещение свободного назначения в Краснодарский край, Краснодар ул. ... - Фото 1
    Помещение свободного назначения в Краснодарский край, Краснодар ул. ... - Фото 2
    В реализации — коммерческие помещения свободного назначения в литере 15 общей площадью 47.4 кв.м. на 1 этаже от застройщика DOGMA в микрорайоне DOGMA PARK от застройщика DOGMA, одного из ведущих девелоперов Краснодарского края. DOGMA PARK...
    • 1/16 эт.
    12 286 080 Р
    Агент
    +7 (988) Показать номер
    Посмотреть контакты
    Помещение свободного назначения в Краснодарский край, Краснодар ул. ... - Фото 1
    Помещение свободного назначения в Краснодарский край, Краснодар ул. ... - Фото 2
    В реализации — коммерческие помещения свободного назначения в литере 15 общей площадью 48.8 кв.м. на 1 этаже от застройщика DOGMA в микрорайоне DOGMA PARK от застройщика DOGMA, одного из ведущих девелоперов Краснодарского края. DOGMA PARK...
    • 1/16 эт.
    13 351 680 Р
    Агент
    +7 (988) Показать номер
    Посмотреть контакты
    Помещение свободного назначения в Краснодарский край, Краснодар ул. ... - Фото 1
    Помещение свободного назначения в Краснодарский край, Краснодар ул. ... - Фото 2
    В реализации — коммерческие помещения свободного назначения в литере 17 общей площадью 47 кв.м. на 1 этаже от застройщика DOGMA в микрорайоне DOGMA PARK от застройщика DOGMA, одного из ведущих девелоперов Краснодарского края. DOGMA PARK —...
    • 1/16 эт.
    12 182 400 Р
    Агент
    +7 (988) Показать номер
    Посмотреть контакты
    Помещение свободного назначения в Краснодарский край, Краснодар ул. ... - Фото 1
    Помещение свободного назначения в Краснодарский край, Краснодар ул. ... - Фото 2
    В реализации — коммерческие помещения свободного назначения в литере 2 общей площадью 48.8 кв.м. на 1 этаже от застройщика DOGMA в микрорайоне DOGMA PARK от застройщика DOGMA, одного из ведущих девелоперов Краснодарского края. DOGMA PARK ...
    • 1/16 эт.
    13 176 000 Р
    Агент
    +7 (988) Показать номер
    Посмотреть контакты
    Помещение свободного назначения в Краснодарский край, Краснодар ул. ... - Фото 1
    Помещение свободного назначения в Краснодарский край, Краснодар ул. ... - Фото 2
    В реализации — коммерческие помещения свободного назначения в литере 17 общей площадью 48.9 кв.м. на 1 этаже от застройщика DOGMA в микрорайоне DOGMA PARK от застройщика DOGMA, одного из ведущих девелоперов Краснодарского края. DOGMA PARK...
    • 1/16 эт.
    12 674 880 Р
    Агент
    +7 (988) Показать номер
    Посмотреть контакты

    Не нашли подходящего объявления?

    Оставьте заявку, и наши риэлторы подберут псн в районе Краснодара

    (0)