Россия, Краснодарский край, Краснодар, микрорайон Догма Парк
10 653 000 Р 140 700 $ или 117 800

Информация о помещении и здании

1
Этаж
Развернуть
Агент
+7 (985) 225-31-40
Начать чат с агентом

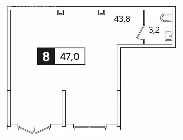
Офис (31.8 м)

В реализации — коммерческие помещения свободного назначения в литере 4 общей площадью 31.8 кв.м. на 1 этаже от застройщика DOGMA в микрорайоне «DOGMA PARK от застройщика DOGMA, одного из ведущих девелоперов Краснодарского края. «DOGMA PARK — это современный микрорайон комфорт-класса с прогнозируемой численностью населения более 100 000 человек, активно развивающийся с учётом потребностей жителей и бизнеса. Микрорайон отличается развитой инфраструктурой: широкие четырёхполосные дороги, школа и детский сад напротив, а также 20 гектаров парковых зон с фонтанами, аллеями, ресторанами и кафе. Преимущества помещений «DOGMA PARK : Удобное расположение на первом этаже с витражным остеклением, привлекающим внимание и обеспечивающим естественное освещение. Активный пешеходный трафик, включая родителей и школьников благодаря расположенной напротив школе. Наличие парковочных мест для клиентов и сотрудников. Полный набор коммуникаций, включая коммерческую вытяжку, для быстрого запуска бизнеса. Идеальная планировка с возможностью адаптации под любые задачи. DOGMA — федеральный девелопер, входящий в ТОП-5 крупнейших застройщиков России по объёму строительства. С 2011 года компания реализовала проекты общей площадью более м, более 80 домов сдано точно в срок и более 23 000 семей живут в уже построенных кварталах. Мы не просто строим дома — мы создаём наследие. Свяжитесь с нами, чтобы узнать подробности и забронировать помещение

Читать полностью
    Позвонить Написать
    10 653 000 Р140 700 $ или 117 800
    Агент
    +7 (985) 225-31-40
    Начать чат с агентом
    Похожие предложения в Краснодаре
    Офис (46.4 м) - Фото 1
    Офис (46.4 м) - Фото 2
    1-й этаж

    В реализации — коммерческие помещения свободного назначения в литере 6 общей площадью 46.4 кв.м. на 1 этаже от застройщика DOGMA в в микрорайоне «Парк Победы от застройщика DOGMA, одного из ведущих девелоперов Краснодарского края. «Парк Победы...
    • 1-й эт.
    11 600 000 Р
    Агент
    +7 (985) Показать номер
    Посмотреть контакты
    Офис (47.4 м) - Фото 1
    Офис (47.4 м) - Фото 2
    1-й этаж

    В реализации — коммерческие помещения свободного назначения в литере 15 общей площадью 47.4 кв.м. на 1 этаже от застройщика DOGMA в микрорайоне «DOGMA PARK от застройщика DOGMA, одного из ведущих девелоперов Краснодарского края. «DOGMA PARK...
    • 1-й эт.
    11 603 520 Р
    Агент
    +7 (985) Показать номер
    Посмотреть контакты
    Офис в Краснодарский край, Краснодар Фестивальный мкр, ул. Монтажников ... - Фото 1
    Офис в Краснодарский край, Краснодар Фестивальный мкр, ул. Монтажников ... - Фото 2
    10-й этаж, всего 11 этажей

    Продаётся коммерческое офисное помещение в БЦ Лидер на 10-ом этаже. Общая площадь 39.7 кв.м. Адрес объекта: г. Краснодар, Западный внутригородской округ, ул. Монтажников 1/А.Идеальное место для ведения бизнеса в центре Фестивального микрорайона, который...
    • 10/11 эт.
    11 500 000 Р
    Агент
    +7 (918) Показать номер
    Посмотреть контакты
    Офис в Краснодарский край, Краснодар Красная ул., 180 (43 м) - Фото 1
    Офис в Краснодарский край, Краснодар Красная ул., 180 (43 м) - Фото 2
    5-й этаж, всего 8 этажей

    Офис в центре города идеальное решение для вашего бизнеса Предлагается к аренде просторный и светлый офис в самом сердце города общей площадью 42.5 кв.м. Это идеальное место для размещения вашего бизнеса, обеспечивающее удобство для сотрудников и клиентов.Преимущества...
    • 5/8 эт.
    10 000 000 Р
    Агент
    +7 (918) Показать номер
    Посмотреть контакты
    Офис в Краснодарский край, Краснодар ул. Имени В.Н. Мачуги, 166Ак2 (78 ... - Фото 1
    Офис в Краснодарский край, Краснодар ул. Имени В.Н. Мачуги, 166Ак2 (78 ... - Фото 2
    1-й этаж, всего 25 этажей

    Коммерческое помещение ЖК СКАЗКА ГРАД Этаж: 1. Площадь: 78 кв. м. Апартаменты: назначение, нежилое.Вход через подъезд.Высота потолков: 3,0 м.Электрическая мощность 5 кВт.Парковка стихийная.Все коммуникaции центpальныe.Развитая структура, большая жилая...
    • 1/25 эт.
    10 503 000 Р
    Агент
    +7 (918) Показать номер
    Посмотреть контакты

    Не нашли подходящего объявления?

    Оставьте заявку, и наши риэлторы подберут офис в районе Краснодара

    (0)