Россия, Краснодарский край, Краснодар, микрорайон Парк Победы
11 600 000 Р 153 200 $ или 128 200

Информация о помещении и здании

1
Этаж
Развернуть
Агент
+7 (985) 225-31-40
Начать чат с агентом

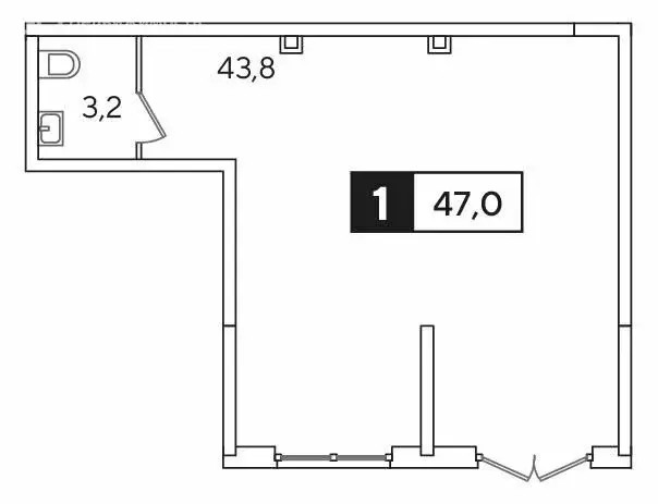
Офис (46.4 м)

В реализации — коммерческие помещения свободного назначения в литере 6 общей площадью 46.4 кв.м. на 1 этаже от застройщика DOGMA в в микрорайоне «Парк Победы от застройщика DOGMA, одного из ведущих девелоперов Краснодарского края. «Парк Победы — это современный микрорайон комфорт-класса с уникальной архитектурой в стиле сталинского ампира, сочетающей монументальность и чёткость линий. Микрорайон расположен в Прикубанском округе Краснодара на улице Героя Пешкова и рассчитан на более 45 000 жителей. Здесь создаётся полноценная инфраструктура: школы, детские сады, парковые зоны с фонтанами, аллеями, амфитеатром и лаундж-зонами для отдыха. Преимущества помещений в микрорайоне «Парк Победы : Удобное расположение на первом этаже с витражным остеклением, привлекающим внимание и обеспечивающим естественное освещение. Активный пешеходный трафик благодаря плотной жилой застройке и близости к социальным объектам. Наличие парковочных мест для клиентов и сотрудников. Полный набор коммуникаций, включая коммерческую вытяжку, для быстрого запуска бизнеса. Современная архитектура и благоустроенная территория с зонами отдыха и спортивными площадками создают комфортную среду для жителей и посетителей. DOGMA — федеральный девелопер, входящий в ТОП-5 крупнейших застройщиков России по объёму строительства. С 2011 года компания реализовала проекты общей площадью более м, более 80 домов сдано точно в срок и более 23 000 семей живут в уже построенных кварталах. Мы не просто строим дома — мы создаём наследие. Свяжитесь с нами, чтобы узнать подробности и забронировать помещение

Читать полностью
    Позвонить Написать
    11 600 000 Р153 200 $ или 128 200
    Агент
    +7 (985) 225-31-40
    Начать чат с агентом
    Похожие предложения в Краснодаре
    Офис (47 м) - Фото 1
    Офис (47 м) - Фото 2
    1-й этаж

    В реализации — коммерческие помещения свободного назначения в литере 17 общей площадью 47 кв.м. на 1 этаже от застройщика DOGMA в микрорайоне «DOGMA PARK от застройщика DOGMA, одного из ведущих девелоперов Краснодарского края. «DOGMA PARK —...
    • 1-й эт.
    12 182 400 Р
    Агент
    +7 (985) Показать номер
    Посмотреть контакты
    Офис (55.8 м) - Фото 1
    Офис (55.8 м) - Фото 2
    1-й этаж

    В продаже от застройщика Мкр. «Самолет 5 очередь, г. Краснодар, Литер 27Срок сдачи: 3 кв. 2023, общей площадью 55.8 кв.м., на 1 этаже. «САМОЛЁТ — концептуальный жилой микрорайон, который расположен на северо-западе Краснодара, в районе Западного Обхода....
    • 1-й эт.
    12 834 000 Р
    Агент
    +7 (985) Показать номер
    Посмотреть контакты
    Офис (48.8 м) - Фото 1
    Офис (48.8 м) - Фото 2
    1-й этаж

    В реализации — коммерческие помещения свободного назначения в литере 17 общей площадью 48.8 кв.м. на 1 этаже от застройщика DOGMA в микрорайоне «DOGMA PARK от застройщика DOGMA, одного из ведущих девелоперов Краснодарского края. «DOGMA PARK...
    • 1-й эт.
    12 648 960 Р
    Агент
    +7 (985) Показать номер
    Посмотреть контакты
    Офис (47.4 м) - Фото 1
    Офис (47.4 м) - Фото 2
    1-й этаж

    В реализации — коммерческие помещения свободного назначения в литере 15 общей площадью 47.4 кв.м. на 1 этаже от застройщика DOGMA в микрорайоне «DOGMA PARK от застройщика DOGMA, одного из ведущих девелоперов Краснодарского края. «DOGMA PARK...
    • 1-й эт.
    12 286 080 Р
    Агент
    +7 (985) Показать номер
    Посмотреть контакты
    Офис (48.9 м) - Фото 1
    Офис (48.9 м) - Фото 2
    1-й этаж

    В реализации — коммерческие помещения свободного назначения в литере 17 общей площадью 48.9 кв.м. на 1 этаже от застройщика DOGMA в микрорайоне «DOGMA PARK от застройщика DOGMA, одного из ведущих девелоперов Краснодарского края. «DOGMA PARK...
    • 1-й эт.
    12 674 880 Р
    Агент
    +7 (985) Показать номер
    Посмотреть контакты

    Не нашли подходящего объявления?

    Оставьте заявку, и наши риэлторы подберут офис в районе Краснодара

    (0)