6 000 000 Р 79 230 $ или 66 320

Информация о коттедже

75 м2
Площадь
1
Этажность
1 cоток
Участок

Дополнительная информация

Дом продаётся вместе с участком
есть
Развернуть
Агент
+7 (918) 161-80-35
Начать чат с агентом

Дом в Краснодарский край, Усть-Лабинск Восточная ул. (75 м)

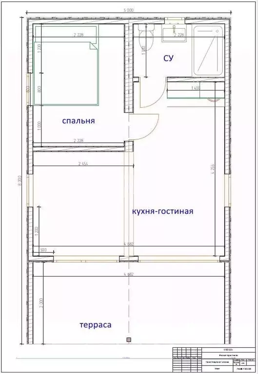
Номер в базе компании: 287797. К продаже представлен новый дом в г. Усть-Лабинск.Характеристики Площадь газоблочного дома составляет 75.2 квадратных метров. Планировка позволяет максимально эффективно использовать площадь. Ремонт в доме сделан специалистами с использованием материалов самого высокого качества. Особенностями планирования дома являются просторная кухня, две изолированные комнаты, прихожая, санузел, коридор. Дом выполнен по проекту одноэтажного дома. При желании мансардный этаж можно использовать для увеличения жилой площади. Перекрытия выполнены предусмотрев 2 этаж. Также есть проект на 2 этажа с планировкой комнат при реконструкции. Коммуникации: газ, свет, центральный водопровод. Счетчики на все имеются. Участок площадью 1.6 сот.. Предусмотрен въезд для двух автомобилей. Расположение Отдельное преимущество объекта это местоположение.В шаговой доступности школа 6, 36, детский сад 16, магазины, аптеки, автобусные остановки общественного транспорта, ДК Кубань.

Читать полностью

    Для того, чтобы купить 1-этажный коттедж по адресу: Усть-Лабинск, ул. Восточная, позвоните по телефону +7 (918) 161-80-35. Торопитесь! Объявление №50016695031 о продаже одноэтажного коттеджа опубликовано 2 дня назад.

    Позвонить Написать
    6 000 000 Р79 230 $ или 66 320
    Агент
    +7 (918) 161-80-35
    Начать чат с агентом
    Похожие предложения
    Дом в Краснодарский край, Усть-Лабинск Пролетарская ул. (60 м) - Фото 1
    Дом в Краснодарский край, Усть-Лабинск Пролетарская ул. (60 м) - Фото 2
    1 этаж, общая площадь 60м², участок 6 соток

    Объект 149. Продам дом, один этаж, три комнаты. Общая площадь 80 м, участок 6 сот. Одноэтажный дом, кирпичный, постройка 1990 года. Автономное газовое отопление, электричество 220 вольт, туалет в доме, водопровод подключен. Все вопросы по телефону.
    • 1 эт.
    • 60 м²
    • 6 сот.
    5 900 000 Р
    Агент
    +7 (918) Показать номер
    Посмотреть контакты
    Дом в Краснодарский край, Усть-Лабинский район, Воронежское с/пос, ... - Фото 1
    Дом в Краснодарский край, Усть-Лабинский район, Воронежское с/пос, ... - Фото 2
    1 этаж, общая площадь 78м², участок 16 соток

    Номер в базе компании: 279961. К продаже представлен комфортабельный дом в Краснодарском крае. в ст. Воронежская.Характеристики Дом площадью 78.3 квадратных метров выполнен из кирпича. Зонирование пространства выполнено самым удобным образом. Особенностями...
    • 1 эт.
    • 78 м²
    • 16 сот.
    6 000 000 Р
    Агент
    +7 (918) Показать номер
    Посмотреть контакты
    Дом в Краснодарский край, Горячий Ключ Подлесная ул. (60 м) - Фото 1
    Дом в Краснодарский край, Горячий Ключ Подлесная ул. (60 м) - Фото 2
    1 этаж, общая площадь 60м², участок 7 соток

    Покупай сейчас - плати потом На данный объект доступна рассрочка на выгодных условияхПродается Готовый бизнес или уголок в предгорьях Кавказа для восстановления душевного равновесия и очистки родника телесных сил Полностью меблированный домик в архитектурном...
    • 1 эт.
    • 60 м²
    • 7 сот.
    6 050 000 Р
    Агент
    +7 (918) Показать номер
    Посмотреть контакты
    Дом в Краснодарский край, Крымск Слободская ул. (131 м) - Фото 1
    Дом в Краснодарский край, Крымск Слободская ул. (131 м) - Фото 2
    общая площадь 131м², участок 8 соток

    Объект 59213. Предлагается к покупке ДОМ В ПРЕСТИЖНОМ РАЙОНЕ РАЙОН, рядом с ОРИЕНТИР. ( 4 первых предложения самые важные ) О ДОМЕ: - Общая площадь дома ПЛОЩАДЬ м. - Участок площадью ПЛОЩАДЬ УЧАСТКА соток, глубина участка 35 м. - Планировка дома:...
    • 131 м²
    • 8 сот.
    6 000 000 Р
    Агент
    +7 (918) Показать номер
    Посмотреть контакты
    Дом в Краснодарский край, Крымск ул. Шевченко (48 м) - Фото 1
    Дом в Краснодарский край, Крымск ул. Шевченко (48 м) - Фото 2
    общая площадь 48м², участок 6 соток

    Объект 59393. Продаётся дом с новой кирпичной кухней все коммуникации, земельный участок 6 соток, фасад 20 метров
    • 48 м²
    • 6 сот.
    6 000 000 Р
    Агент
    +7 (918) Показать номер
    Посмотреть контакты

    Не нашли подходящего объявления?

    Оставьте заявку, и наши риэлторы подберут купить дом в районе Усть-Лабинска

    (0)