39 000 000 Р 501 000 $ или 429 100

Информация об помещении

3
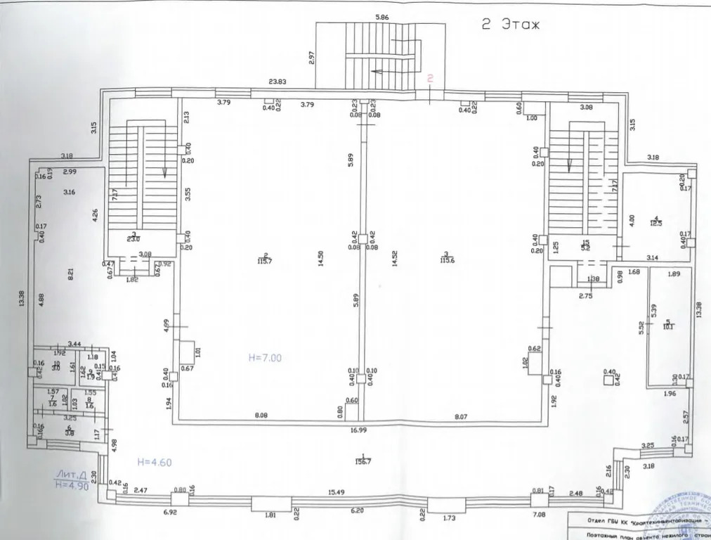
Этаж

Состояние и оснащение

Количество этажей
3
Развернуть
Агент
+7 (918) 271-04-02
Начать чат с агентом

Помещение свободного назначения (566.8 м)

Арт.Готовый арендный бизнес в Тимашевске - отдельно стоящее капитальное здание 580 м с потенциальным арендатором. Формат для инвестора: объект рассматривается как готовый арендный бизнес. По объекту есть потенциальный арендатор - оператор медицинского/реабилитационный центр, который готов заключать договор аренды с новым собственником. Основные параметры: площадь здания: 580 м земельный участок: 9 соток здание и земля - в собственности объект капитальный ранее использовался как гостиница возможна дальнейшая эксплуатация как социальный/медицинский/гостиничный формат Экономика для инвестора: стоимость объекта:потенциальная арендная ставка: 300 000 /мес потенциальный арендный поток:/год валовая доходность: 9,23 годовых Почему объект интересен: готовый сценарий использования, не нужно искать концепцию с нуля понятный будущий арендатор отдельно стоящее здание - высокий уровень контроля над активом собственность на землю и здание районный центр Краснодарского края с населением города порядка 51–54 тыс. человек и района около 108 тыс. человек, что создаёт устойчивую базу для социальных и сервисных форматов. Подойдёт под: реабилитационный центр гостиницу / хостел / апарт-формат медицинский или социальный центр корпоративное размещение По запросу отправлю: дополнительные фото, планировки , расчёт доходности, информацию по потенциальному арендатору и модели сделки Объект для тех, кто ищет не просто недвижимость, а актив с понятной моделью дохода. Звоните

Читать полностью
    Позвонить Написать
    39 000 000 Р501 000 $ или 429 100
    Агент
    +7 (918) 271-04-02
    Начать чат с агентом
    Похожие предложения
    Продается ПСН 500 м2 - Фото 1
    Продается ПСН 500 м2 - Фото 2
    Продается ПСН 500 м2 - Фото 3
    Продается ПСН 500 м2 - Фото 4
    Продается ПСН 500 м2 - Фото 5
    Продается ПСН 500 м2 - Фото 6
    Продается ПСН 500 м2 - Фото 7
    Продается ПСН 500 м2 - Фото 8
    полезная площадь 500м²

    Продается кинотеатр на два зала. Много дополнительных площадей под сферу услуг. Новое здание. Кинотеатр очень нужен городу. Горожанам и отдыхающим гостям города приходится ездить за 70 км. Помещение свободного назначения площадью 500 м2, предоставляется...
    • 500 м²
    • 2/3 эт.
    40 000 000 Р
    Агент
    +7 (991) Показать номер
    Посмотреть контакты
    Помещение свободного назначения (500 м) - Фото 1
    Помещение свободного назначения (500 м) - Фото 2
    Продается кинотеатр на два зала. Много дополнительных площадей под сферу услуг. Новое здание. Кинотеатр очень нужен городу. Горожанам и отдыхающим гостям города приходится ездить за 70 км. Помещение свободного назначения площадью 500 м2, предоставляется...
    • 2/9 эт.
    40 000 000 Р
    Агент
    +7 (902) Показать номер
    Посмотреть контакты
    Продается ПСН 500 м2 - Фото 1
    Продается ПСН 500 м2 - Фото 2
    Продается ПСН 500 м2 - Фото 3
    Продается ПСН 500 м2 - Фото 4
    Продается ПСН 500 м2 - Фото 5
    Продается ПСН 500 м2 - Фото 6
    Продается ПСН 500 м2 - Фото 7
    Продается ПСН 500 м2 - Фото 8
    полезная площадь 500м²

    Продается кинотеатр на два зала. Много дополнительных площадей под сферу услуг. Новое здание. Кинотеатр очень нужен городу. Горожанам и отдыхающим гостям города приходится ездить за 70 км. Помещение свободного назначения площадью 500 м2, предоставляется...
    • 500 м²
    • 2/3 эт.
    40 000 000 Р
    Агент
    +7 (991) Показать номер
    Посмотреть контакты
    Помещение свободного назначения в Краснодарский край, Новороссийск ул. ... - Фото 1
    Помещение свободного назначения в Краснодарский край, Новороссийск ул. ... - Фото 2
    Арт.Продается помещение 490 м2 от застройщика в новом ЖК Чайковский - в доме 380 квартир - 1 линия - помещение без ремонта - общая площадь помещения 490 кв.м + 460 кв.м (можно делить) - парковка - 15 кВт ОТ Застройщика БЕЗ КОМИССИИ Звоните договаривайтесь...
    • 1/22 эт.
    40 000 000 Р
    Агент
    +7 (989) Показать номер
    Посмотреть контакты
    Помещение свободного назначения в Краснодарский край, Новороссийск ул. ... - Фото 1
    Помещение свободного назначения в Краснодарский край, Новороссийск ул. ... - Фото 2
    Арт.Продам / Продам / сдам в аренду коммерческое помещение в центре городаАдрес: г. Новороссийск, ул. Новороссийской Республики, 8Площадь: 200 мПомещение расположено на первой линии в самом центре города, рядом прогулочная зона и Набережная. Высокий пешеходный...
    • 1/4 эт.
    40 000 000 Р
    Агент
    +7 (989) Показать номер
    Посмотреть контакты

    Не нашли подходящего объявления?

    Оставьте заявку, и наши риэлторы подберут псн в районе Тимашевска

    (0)