7 200 000 Р 88 680 $ или 76 560

Информация о коттедже

80 м2
Площадь
1
Этажность
5 cоток
Участок

Дополнительная информация

Дом продаётся вместе с участком
есть
Развернуть
Агент
Равиль Медетбекович Джумалиев (Этажи Темрюк)
+7 (918) 352-89-21
Начать чат с агентом

Дом в Краснодарский край, Темрюкский район, Тамань ст-ца ул. Крупской ...

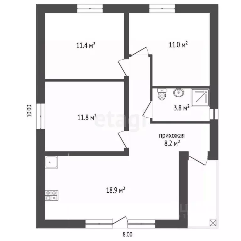
Продается новый дом от застройщика, площадью 80 кв. м., на живописном участке в 5 соток, всего в 2 км от побережья Черного моря в станице Тамань. Это идеальное место для комфортной жизни, где развита инфраструктура: рядом находятся детские сады, школы, парки и торговые центры, что делает эту локацию особенно привлекательной для семей с детьми.В данный момент застройщик завершает отделочные работы как внутри, так и снаружи, и дом будет сдаваться в предчистовой отделке, что позволит вам реализовать свои дизайнерские идеи и создать пространство своей мечты. Предчистовая отделка включает в себя:- Надежный монолитный фундамент- Прочные стены из керамзитных блоков- Армопояс и перемычки для дополнительной прочности- Удобная отмостка- Современная кровля и водосточная система- Энергоэффективные окна и входная дверь- Утепление кровли и фасада для комфортного проживания в любое время года- Эстетическая фасадная отделка- Полная разводка электричества с подключением к энергосетям- Современные системы отопления, включая теплые полы и радиаторы- Полный комплект систем водоснабжения и канализации- Скважина для автономного водоснабжения- Штукатурка стен и качественная стяжка полаКроме того, застройщик аккредитован в ведущих банках, что предоставляет вам возможность оформить ипотеку по государственным программам. Мы также обеспечиваем полное юридическое сопровождение сделки, что гарантирует вашу безопасность и спокойствие.Не упустите шанс стать владельцем этого прекрасного дома, который станет идеальным местом для вашей семьи Звоните прямо сейчас, чтобы узнать больше и записаться на просмотр . Дополнительно оплачивается комиссия с покупателя.Код пользователя: 180305Номер в базе: 3898412

Читать полностью

    Для того, чтобы купить 1-этажный коттедж по адресу: Тамань, ул. Крупской, позвоните по телефону +7 (918) 352-89-21. Торопитесь! Объявление №50016382876 о продаже одноэтажного коттеджа опубликовано Сегодня.

    Позвонить Написать
    7 200 000 Р88 680 $ или 76 560
    Агент
    Равиль Медетбекович Джумалиев (Этажи Темрюк)
    +7 (918) 352-89-21
    Начать чат с агентом
    Похожие предложения
    Дом в Тамань, улица Крупской (80 м) - Фото 1
    Дом в Тамань, улица Крупской (80 м) - Фото 2
    1 этаж, общая площадь 80м², участок 5 соток

    Продается новый дом от застройщика, площадью 80 кв. м., на живописном участке в 5 соток, всего в 2 км от побережья Черного моря в станице Тамань. Это идеальное место для комфортной жизни, где развита инфраструктура: рядом находятся детские сады, школы,...
    • 1 эт.
    • 80 м²
    • 5 сот.
    7 200 000 Р
    Агент
    +7 (965) Показать номер
    Посмотреть контакты
    Продажа дома, Тамань, Темрюкский район, улица Железнодорожная - Фото 1
    Продажа дома, Тамань, Темрюкский район, улица Железнодорожная - Фото 2
    Продажа дома, Тамань, Темрюкский район, улица Железнодорожная - Фото 3
    Продажа дома, Тамань, Темрюкский район, улица Железнодорожная - Фото 4
    Продажа дома, Тамань, Темрюкский район, улица Железнодорожная - Фото 5
    Продажа дома, Тамань, Темрюкский район, улица Железнодорожная - Фото 6
    Продажа дома, Тамань, Темрюкский район, улица Железнодорожная - Фото 7
    Продажа дома, Тамань, Темрюкский район, улица Железнодорожная - Фото 8
    Продажа дома, Тамань, Темрюкский район, улица Железнодорожная - Фото 9
    Продажа дома, Тамань, Темрюкский район, улица Железнодорожная - Фото 10
    Продажа дома, Тамань, Темрюкский район, улица Железнодорожная - Фото 11
    Продажа дома, Тамань, Темрюкский район, улица Железнодорожная - Фото 12
    Продажа дома, Тамань, Темрюкский район, улица Железнодорожная - Фото 13
    Продажа дома, Тамань, Темрюкский район, улица Железнодорожная - Фото 14
    1 этаж, общая площадь 80м², год постройки 2025, участок 7 соток

    В курортной станице Тамань на участке 7 соток продается новый дом, площадью 80 кв.м в предчистовой отделке. В доме две спальни ,кухня гостинная ,совмещенный С\у. Подведен свет,вода скважина,газ по меже, индивидуальный септик .В комнатах панорамные окна....
    • 1 эт.
    • 80 м²
    • 7 сот.
    • свет
    7 200 000 Р
    Агент
    +7 (903) Показать номер
    Агентство
    Эксперт
    Посмотреть контакты
    Продажа дома, Тамань, Темрюкский район, Шоссейная улица - Фото 1
    Продажа дома, Тамань, Темрюкский район, Шоссейная улица - Фото 2
    Продажа дома, Тамань, Темрюкский район, Шоссейная улица - Фото 3
    Продажа дома, Тамань, Темрюкский район, Шоссейная улица - Фото 4
    Продажа дома, Тамань, Темрюкский район, Шоссейная улица - Фото 5
    Продажа дома, Тамань, Темрюкский район, Шоссейная улица - Фото 6
    Продажа дома, Тамань, Темрюкский район, Шоссейная улица - Фото 7
    Продажа дома, Тамань, Темрюкский район, Шоссейная улица - Фото 8
    Продажа дома, Тамань, Темрюкский район, Шоссейная улица - Фото 9
    Продажа дома, Тамань, Темрюкский район, Шоссейная улица - Фото 10
    Продажа дома, Тамань, Темрюкский район, Шоссейная улица - Фото 11
    Продажа дома, Тамань, Темрюкский район, Шоссейная улица - Фото 12
    Продажа дома, Тамань, Темрюкский район, Шоссейная улица - Фото 13
    Продажа дома, Тамань, Темрюкский район, Шоссейная улица - Фото 14
    Продажа дома, Тамань, Темрюкский район, Шоссейная улица - Фото 15
    Продажа дома, Тамань, Темрюкский район, Шоссейная улица - Фото 16
    Продажа дома, Тамань, Темрюкский район, Шоссейная улица - Фото 17
    Продажа дома, Тамань, Темрюкский район, Шоссейная улица - Фото 18
    Продажа дома, Тамань, Темрюкский район, Шоссейная улица - Фото 19
    Продажа дома, Тамань, Темрюкский район, Шоссейная улица - Фото 20
    1 этаж, общая площадь 65м², год постройки 2024, участок 3 сотки

    Вы хотите отдельно стоящий новый дом по цене ниже двухкомнатной квартиры, тогда это предложение для Вас. Продается дом на 3 сотках земельного участка в ст. Тамань. Фундамент 8Х9 м. В доме кухня- гостинная, две спальни, санузел. Крыша металлочерепица,...
    • 1 эт.
    • 65 м²
    • 3 сот.
    • свет
    7 200 000 Р
    Агент
    +7 (988) Показать номер
    Агентство
    Золотая Арка
    Посмотреть контакты
    Продажа дома, Тамань, Темрюкский район, Молодежный пер. - Фото 1
    Продажа дома, Тамань, Темрюкский район, Молодежный пер. - Фото 2
    Продажа дома, Тамань, Темрюкский район, Молодежный пер. - Фото 3
    Продажа дома, Тамань, Темрюкский район, Молодежный пер. - Фото 4
    Продажа дома, Тамань, Темрюкский район, Молодежный пер. - Фото 5
    Продажа дома, Тамань, Темрюкский район, Молодежный пер. - Фото 6
    Продажа дома, Тамань, Темрюкский район, Молодежный пер. - Фото 7
    Продажа дома, Тамань, Темрюкский район, Молодежный пер. - Фото 8
    Продажа дома, Тамань, Темрюкский район, Молодежный пер. - Фото 9
    Продажа дома, Тамань, Темрюкский район, Молодежный пер. - Фото 10
    Продажа дома, Тамань, Темрюкский район, Молодежный пер. - Фото 11
    Продажа дома, Тамань, Темрюкский район, Молодежный пер. - Фото 12
    Продажа дома, Тамань, Темрюкский район, Молодежный пер. - Фото 13
    Продажа дома, Тамань, Темрюкский район, Молодежный пер. - Фото 14
    Продажа дома, Тамань, Темрюкский район, Молодежный пер. - Фото 15
    Продажа дома, Тамань, Темрюкский район, Молодежный пер. - Фото 16
    Продажа дома, Тамань, Темрюкский район, Молодежный пер. - Фото 17
    Продажа дома, Тамань, Темрюкский район, Молодежный пер. - Фото 18
    Продажа дома, Тамань, Темрюкский район, Молодежный пер. - Фото 19
    Продажа дома, Тамань, Темрюкский район, Молодежный пер. - Фото 20
    2 этажа, общая площадь 78м², год постройки 2022, участок 6 соток

    Продается новый дом 2022 года в курортной станице Тамань, на Черном море! Дом построен из качественных материалов в современном стиле "МИНИМАЛИЗМ". Дом готов для круглогодичного проживания, сухой, теплый, светлый, с панорамными окнами, идеально подходит...
    • 2 эт.
    • 78 м²
    • 6 сот.
    • свет
    7 100 000 Р
    Агент
    +7 (988) Показать номер
    Агентство
    Золотая Арка
    Посмотреть контакты
    Дом в Краснодарский край, Темрюкский район, Тамань ст-ца ул. Ленина ... - Фото 1
    Дом в Краснодарский край, Темрюкский район, Тамань ст-ца ул. Ленина ... - Фото 2
    1 этаж, общая площадь 80м², участок 5 соток

    Арт.Продаётся новый дом в предчистовой отделке Отличная планировка:3 изолированных спальниПросторная кухня-гостинаяСанузелКоридорУгловой участок, два широких фасада Газ проходит по фасаду, возможно подключить в кратчайшие сроки Звоните расскажу более...
    • 1 эт.
    • 80 м²
    • 5 сот.
    7 200 000 Р
    Агент
    +7 (918) Показать номер
    Посмотреть контакты

    Не нашли подходящего объявления?

    Оставьте заявку, и наши риэлторы подберут купить дом в районе Тамань

    (0)