3 800 000 Р 48 580 $ или 41 840

Информация о квартире

31.1 м2
Площадь
студия
Комнат
5
Этаж
8
Этажность
2023
Построен

Состояние и оснащение

Наличие балкона
лоджия
Вид из окон
во двор
Тип санузла
совмещенный

Дополнительная информация

Тип дома
монолитно-кирпичный
Возможность ипотеки
да
Развернуть
Агент
Людмила Скугарева
+7 (909) 447-68-70
Начать чат с агентом

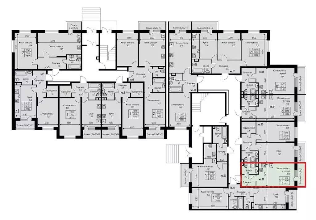
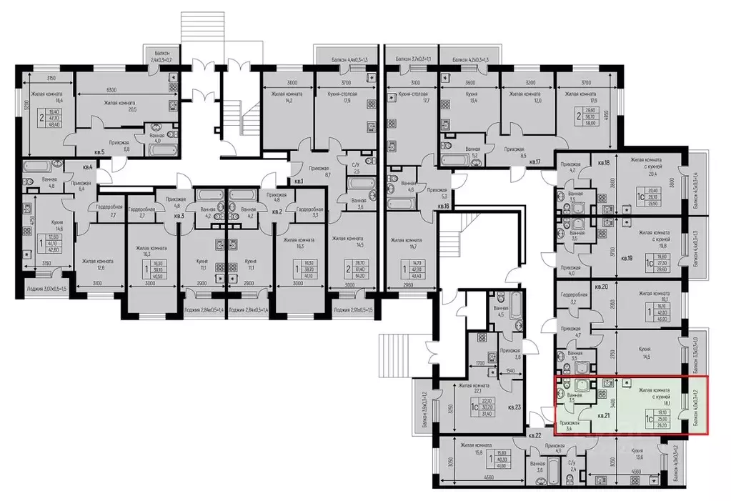
Продажа квартиры в новостройке, Темрюк, Темрюкский район, ул. Дальняя

Продается Квартира-студия 5/8 этажного дома общей площадью 31,10 кв.м, 2 секция в ЖК "Сады у моря" г. Темрюк Краснодарский край.
Отличная планировка: студия по размеру однокомнатной квартиры - большая комната -19,29 кв.м.; санузел - 4,26 кв.м., прихожая и шикарная лоджия - 5,90 кв.м. Остекленная лоджия, установлены балконные двери. Современные, скоростные лифты.
Внутриквартирная отделка - Гипсовая штукатурка, под покраску или обои.
Потолки - Монолит.
Наружные ограждающие конструкции - керамзитобетонные блоки с наружной системой утепления фасадов и облицовочного керамического кирпича.
Благоустроенная территория (спортивные, детские площадки, озеленение двора). Удобный подъезд.
Застройщик: ООО «СЗ ТСК «Каскад».
Переуступка прав по договору ДДУ по ФЗ 214
Сдача дома 3 квартал 2023 года.
До Азовского моря 15 км. До Черного моря 40 км.
Оперативный показ в удобное время. Документы готовы к продаже. При звонке сообщите нам ID объекта 578494 Информацию о проектной декларации вы можете получить по контактному телефону указанному в объявлении.

Читать полностью
    Позвонить Написать
    3 800 000 Р48 580 $ или 41 840
    Агент
    Людмила Скугарева
    +7 (909) 447-68-70
    Начать чат с агентом
    Похожие предложения
    Студия Краснодарский край, Краснодар пос. Березовый, пос. Прогресс, ... - Фото 1
    Студия Краснодарский край, Краснодар пос. Березовый, пос. Прогресс, ... - Фото 2
    студия, общая площадь 26м², жилая 18м²

    Продаётся студия в строящемся доме (Литер 9), срок сдачи: IV-кв. 2025, общей площадью 26.2 кв.м., на 1 этаже. Новый жилой комплекс Nova Vita от застройщика МЕТРИКС DEVELOPMENT расположен по адресу Краснодар, посёлок Берёзовый, улица имени А.Н. Лодыгина....
    • 26 м²
    • студия-ком
    • 1/3 эт.
    • кирпичный
    3 788 000 Р
    Агент
    +7 (934) Показать номер
    Посмотреть контакты
    Студия Краснодарский край, Краснодар пос. Березовый, пос. Прогресс, ... - Фото 1
    Студия Краснодарский край, Краснодар пос. Березовый, пос. Прогресс, ... - Фото 2
    студия, общая площадь 25м², жилая 18м²

    Продаётся студия в строящемся доме (Литер 9), срок сдачи: IV-кв. 2025, общей площадью 25.7 кв.м., на 3 этаже. Новый жилой комплекс Nova Vita от застройщика МЕТРИКС DEVELOPMENT расположен по адресу Краснодар, посёлок Берёзовый, улица имени А.Н. Лодыгина....
    • 25 м²
    • студия-ком
    • 3/3 эт.
    • кирпичный
    3 788 000 Р
    Агент
    +7 (932) Показать номер
    Посмотреть контакты
    Студия Краснодарский край, Краснодар пос. Березовый, пос. Прогресс, ... - Фото 1
    Студия Краснодарский край, Краснодар пос. Березовый, пос. Прогресс, ... - Фото 2
    студия, общая площадь 26м², жилая 18м²

    Продаётся студия в строящемся доме (Литер 23), срок сдачи: IV-кв. 2025, общей площадью 26.2 кв.м., на 1 этаже. Новый жилой комплекс Nova Vita от застройщика МЕТРИКС DEVELOPMENT расположен по адресу Краснодар, посёлок Берёзовый, улица имени А.Н. Лодыгина....
    • 26 м²
    • студия-ком
    • 1/3 эт.
    • кирпичный
    3 706 000 Р
    Агент
    +7 (923) Показать номер
    Посмотреть контакты
    Студия Краснодарский край, Краснодар пос. Березовый, пос. Прогресс, ... - Фото 1
    Студия Краснодарский край, Краснодар пос. Березовый, пос. Прогресс, ... - Фото 2
    студия, общая площадь 26м², жилая 17м²

    Продаётся студия в сданном доме (Литер 15), срок сдачи: IV-кв. 2024, общей площадью 26.4 кв.м., на 2 этаже. Новый жилой комплекс Nova Vita от застройщика МЕТРИКС DEVELOPMENT расположен по адресу Краснодар, посёлок Берёзовый, улица имени А.Н. Лодыгина....
    • 26 м²
    • студия-ком
    • 2/3 эт.
    • кирпичный
    3 811 000 Р
    Агент
    +7 (923) Показать номер
    Посмотреть контакты
    Студия Краснодарский край, Краснодар пос. Березовый, пос. Прогресс, ... - Фото 1
    Студия Краснодарский край, Краснодар пос. Березовый, пос. Прогресс, ... - Фото 2
    студия, общая площадь 25м², жилая 18м²

    Продаётся студия в сданном доме (Литер 14), срок сдачи: IV-кв. 2024, общей площадью 25.9 кв.м., на 2 этаже. Новый жилой комплекс Nova Vita от застройщика МЕТРИКС DEVELOPMENT расположен по адресу Краснодар, посёлок Берёзовый, улица имени А.Н. Лодыгина....
    • 25 м²
    • студия-ком
    • 2/3 эт.
    • кирпичный
    3 726 000 Р
    Агент
    +7 (923) Показать номер
    Посмотреть контакты

    Не нашли подходящего объявления?

    Оставьте заявку, и наши риэлторы подберут квартиру в новостройке в районе Темрюка

    (0)