Реализация объекта недвижимости приостановлена

Информация о квартире

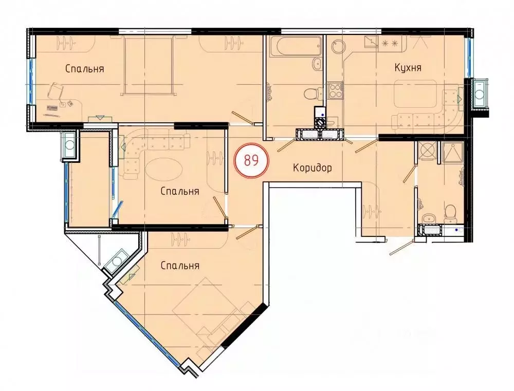
98.0 м2
Площадь
3
Комнаты
2
Этаж
8
Этажность
Развернуть

3-к кв. Краснодарский край, Темрюк ул. Обороны, 2/2 (98.0 м)

Продаётся 3-комнатная квартира в сданном доме (Дом 2/2), срок сдачи: IV-кв. 2023, общей площадью 98 кв.м., на 2 этаже. Все коммуникации центральные, отопление индивидуальное газовое. Объект сдан в эксплуатацию. Новый жилой комплекс Морской от застройщика Мегастрой находится по адресу: г. Темрюк, ул. Обороны, д2, на пересечении улиц Морской и Обороны.

Читать полностью

    Реализация объекта недвижимости приостановлена

    Не нашли подходящего объявления?

    Оставьте заявку, и наши риэлторы подберут квартиру в новостройке в районе Темрюка

    (0)