5 150 000 Р 66 900 $ или 56 770

Информация о коттедже

84 м2
Площадь
2
Этажность
1.7 cоток
Участок

Дополнительная информация

Вид разрешенного использования для участка
зсн для садоводства или огородничества
Категория назначения землепользования
зсн земли сельскохозяйственного назначения

Коммуникации

Газоснабжение
имеется
Водоснабжение
центральное
Канализация
есть
Развернуть
Агент
Наталья Зубкова
+7 (903) 447-42-40
Начать чат с агентом

Продажа дома, Темрюк, Темрюкский район, Водный пер.

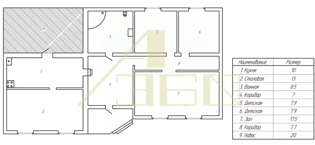
Предлагаем вашему вниманию прекрасную дачу общей площадью 84 квадратных метра, расположенную в живописном районе с великолепным видом на лиман. Этот объект недвижимости станет отличным выбором для тех, кто мечтает о спокойствии и комфорте загородной жизни.
Основные характеристики:
- Площадь: 84 кв.м
- Материал стен: блоки, утепленные и облицованные сайдингом
- Крыша: надежная конструкция, обеспечивающая защиту от любых погодных условий
Первый этаж:
- Уютная кухня-гостиная, где можно собираться всей семьей или приглашать друзей
- Практичный раздельный санузел
- Комфортабельная спальня
- Полезная кладовая комната
Второй этаж:
- Две просторные спальни, где каждый найдет свое личное пространство
Инженерные коммуникации:
- Центральное электроэнергия и водоснабжение
- Электрическое отопление с системой теплых полов, обеспечивающее комфорт даже в холодные зимние дни
- Современная сплит-система для поддержания оптимального микроклимата
- Газопровод на территории, готовый к подключению в ближайшее время
- Установлено современное оборудование: бойлер объемом 80 литров, видеонаблюдение с четырьмя камерами и высокоскоростной интернет
Дополнительные удобства:
- Большой ангар с пристанью для лодок, позволяющий удобно хранить плавсредства и рыболовные принадлежности
- Двор, огороженный прочным профилем, покрыт тротуарной плиткой
- Прекрасный вид на лиман открывает уникальные возможности для проведения досуга и наслаждения природой
Этот объект представляет собой идеальное сочетание комфорта, функциональности и близости к природному ландшафту. Здесь вы найдете идеальный баланс между городом и деревенской жизнью, создавая атмосферу настоящего домашнего уюта и гармонии.
Для получения дополнительной информации звоните прямо сейчас и узнайте больше деталей о вашей будущей даче мечты!

ID объекта: 1096959

Читать полностью

    Для того, чтобы купить дачу площадью 84 кв. метра по адресу: Темрюк, Водный пер., позвоните по телефону +7 (903) 447-42-40. Торопитесь! Объявление №506735281 о продаже дачи площадью 84 кв. метра опубликовано Вчера.

    Позвонить Написать
    5 150 000 Р66 900 $ или 56 770
    Агент
    Наталья Зубкова
    +7 (903) 447-42-40
    Начать чат с агентом
    Похожие предложения
    Продажа дома, Темрюк, Темрюкский район, ул. Анджиевского - Фото 1
    Продажа дома, Темрюк, Темрюкский район, ул. Анджиевского - Фото 2
    Продажа дома, Темрюк, Темрюкский район, ул. Анджиевского - Фото 3
    Продажа дома, Темрюк, Темрюкский район, ул. Анджиевского - Фото 4
    Продажа дома, Темрюк, Темрюкский район, ул. Анджиевского - Фото 5
    Продажа дома, Темрюк, Темрюкский район, ул. Анджиевского - Фото 6
    Продажа дома, Темрюк, Темрюкский район, ул. Анджиевского - Фото 7
    Продажа дома, Темрюк, Темрюкский район, ул. Анджиевского - Фото 8
    Продажа дома, Темрюк, Темрюкский район, ул. Анджиевского - Фото 9
    Продажа дома, Темрюк, Темрюкский район, ул. Анджиевского - Фото 10
    Продажа дома, Темрюк, Темрюкский район, ул. Анджиевского - Фото 11
    Продажа дома, Темрюк, Темрюкский район, ул. Анджиевского - Фото 12
    Продажа дома, Темрюк, Темрюкский район, ул. Анджиевского - Фото 13
    Продажа дома, Темрюк, Темрюкский район, ул. Анджиевского - Фото 14
    Продажа дома, Темрюк, Темрюкский район, ул. Анджиевского - Фото 15
    Продажа дома, Темрюк, Темрюкский район, ул. Анджиевского - Фото 16
    Продажа дома, Темрюк, Темрюкский район, ул. Анджиевского - Фото 17
    Продажа дома, Темрюк, Темрюкский район, ул. Анджиевского - Фото 18
    Продажа дома, Темрюк, Темрюкский район, ул. Анджиевского - Фото 19
    Продажа дома, Темрюк, Темрюкский район, ул. Анджиевского - Фото 20
    1 этаж, общая площадь 71.2м², год постройки 1970, участок 5 соток

    Продаётся блочный дом из трёх комнат в спальном районе города Темрюка Краснодарского края. В доме прихожая, кладовая, кухня, кабинет, две спальни, совмещённый санузел. Сделан свежий ремонт. Установлен двухконтурный газовый котёл для отопления и горячего...
    • 1 эт.
    • 71.2 м²
    • 5 сот.
    • свет
    5 100 000 Р
    Агент
    +7 (909) Показать номер
    Агентство
    Золотая Арка
    Посмотреть контакты
    Продажа дома, Темрюк, Темрюкский район - Фото 1
    Продажа дома, Темрюк, Темрюкский район - Фото 2
    Продажа дома, Темрюк, Темрюкский район - Фото 3
    Продажа дома, Темрюк, Темрюкский район - Фото 4
    Продажа дома, Темрюк, Темрюкский район - Фото 5
    Продажа дома, Темрюк, Темрюкский район - Фото 6
    Продажа дома, Темрюк, Темрюкский район - Фото 7
    Продажа дома, Темрюк, Темрюкский район - Фото 8
    Продажа дома, Темрюк, Темрюкский район - Фото 9
    Продажа дома, Темрюк, Темрюкский район - Фото 10
    Продажа дома, Темрюк, Темрюкский район - Фото 11
    Продажа дома, Темрюк, Темрюкский район - Фото 12
    Продажа дома, Темрюк, Темрюкский район - Фото 13
    Продажа дома, Темрюк, Темрюкский район - Фото 14
    Продажа дома, Темрюк, Темрюкский район - Фото 15
    Продажа дома, Темрюк, Темрюкский район - Фото 16
    Продажа дома, Темрюк, Темрюкский район - Фото 17
    Продажа дома, Темрюк, Темрюкский район - Фото 18
    Продажа дома, Темрюк, Темрюкский район - Фото 19
    Продажа дома, Темрюк, Темрюкский район - Фото 20
    2 этажа, общая площадь 100м², участок 1 сотка

    Продаётся отличная дача для отдыха и проживания. Представляет собой двухэтажный капитальный дом в лодочном кооперативе Темрюка площадью 100 кв.м. В доме на 1 этаже - есть баня, гараж на 2 лодки, стоянка на 3 машины, насосная с ёмкостями, душ, туалет,...
    • 2 эт.
    • 100 м²
    • 1 сот.
    • свет
    5 200 000 Р
    Агент
    +7 (909) Показать номер
    Агентство
    Золотая Арка
    Посмотреть контакты
    Продажа дома, Темрюк, Темрюкский район, ул. Пролетарская - Фото 1
    Продажа дома, Темрюк, Темрюкский район, ул. Пролетарская - Фото 2
    Продажа дома, Темрюк, Темрюкский район, ул. Пролетарская - Фото 3
    Продажа дома, Темрюк, Темрюкский район, ул. Пролетарская - Фото 4
    Продажа дома, Темрюк, Темрюкский район, ул. Пролетарская - Фото 5
    Продажа дома, Темрюк, Темрюкский район, ул. Пролетарская - Фото 6
    Продажа дома, Темрюк, Темрюкский район, ул. Пролетарская - Фото 7
    Продажа дома, Темрюк, Темрюкский район, ул. Пролетарская - Фото 8
    Продажа дома, Темрюк, Темрюкский район, ул. Пролетарская - Фото 9
    Продажа дома, Темрюк, Темрюкский район, ул. Пролетарская - Фото 10
    Продажа дома, Темрюк, Темрюкский район, ул. Пролетарская - Фото 11
    Продажа дома, Темрюк, Темрюкский район, ул. Пролетарская - Фото 12
    Продажа дома, Темрюк, Темрюкский район, ул. Пролетарская - Фото 13
    Продажа дома, Темрюк, Темрюкский район, ул. Пролетарская - Фото 14
    кирпичный дом, 1 этаж, общая площадь 44.8м², год постройки 1969, участок 6 соток

    Представляем вашему вниманию уютный и функциональный жилой дом площадью 44,8 м, расположенный в живописном районе города Темрюк. Здесь каждый найдет себе комфортное пространство благодаря продуманному планированию комнат: - Три просторные изолированные...
    • 1 эт.
    • 44.8 м²
    • 6 сот.
    • свет
    5 100 000 Р
    Агент
    +7 (903) Показать номер
    Агентство
    Эксперт
    Посмотреть контакты
    Продажа дома, Темрюк, Темрюкский район, ул. Полетаева - Фото 1
    Продажа дома, Темрюк, Темрюкский район, ул. Полетаева - Фото 2
    Продажа дома, Темрюк, Темрюкский район, ул. Полетаева - Фото 3
    Продажа дома, Темрюк, Темрюкский район, ул. Полетаева - Фото 4
    Продажа дома, Темрюк, Темрюкский район, ул. Полетаева - Фото 5
    Продажа дома, Темрюк, Темрюкский район, ул. Полетаева - Фото 6
    Продажа дома, Темрюк, Темрюкский район, ул. Полетаева - Фото 7
    Продажа дома, Темрюк, Темрюкский район, ул. Полетаева - Фото 8
    Продажа дома, Темрюк, Темрюкский район, ул. Полетаева - Фото 9
    Продажа дома, Темрюк, Темрюкский район, ул. Полетаева - Фото 10
    Продажа дома, Темрюк, Темрюкский район, ул. Полетаева - Фото 11
    Продажа дома, Темрюк, Темрюкский район, ул. Полетаева - Фото 12
    Продажа дома, Темрюк, Темрюкский район, ул. Полетаева - Фото 13
    Продажа дома, Темрюк, Темрюкский район, ул. Полетаева - Фото 14
    Продажа дома, Темрюк, Темрюкский район, ул. Полетаева - Фото 15
    Продажа дома, Темрюк, Темрюкский район, ул. Полетаева - Фото 16
    Продажа дома, Темрюк, Темрюкский район, ул. Полетаева - Фото 17
    Продажа дома, Темрюк, Темрюкский район, ул. Полетаева - Фото 18
    Продажа дома, Темрюк, Темрюкский район, ул. Полетаева - Фото 19
    кирпичный дом, 1 этаж, общая площадь 61м², год постройки 2007, участок 4 сотки

    Продаётся дом в городе Темрюке Краснодарского края. Кирпичный дом 2007 года постройки на участке в четыре сотки. В доме две комнаты, кухня, прихожая, совмещённый санузел с душевой кабиной. Комнаты меблированы, оснащены необходимой бытовой техникой. При...
    • 1 эт.
    • 61 м²
    • 4 сот.
    • свет
    5 200 000 Р
    Агент
    +7 (903) Показать номер
    Агентство
    Эксперт
    Посмотреть контакты
    Продажа дома, Темрюк, Темрюкский район, ул. Калинина - Фото 1
    Продажа дома, Темрюк, Темрюкский район, ул. Калинина - Фото 2
    Продажа дома, Темрюк, Темрюкский район, ул. Калинина - Фото 3
    Продажа дома, Темрюк, Темрюкский район, ул. Калинина - Фото 4
    Продажа дома, Темрюк, Темрюкский район, ул. Калинина - Фото 5
    Продажа дома, Темрюк, Темрюкский район, ул. Калинина - Фото 6
    Продажа дома, Темрюк, Темрюкский район, ул. Калинина - Фото 7
    Продажа дома, Темрюк, Темрюкский район, ул. Калинина - Фото 8
    Продажа дома, Темрюк, Темрюкский район, ул. Калинина - Фото 9
    Продажа дома, Темрюк, Темрюкский район, ул. Калинина - Фото 10
    Продажа дома, Темрюк, Темрюкский район, ул. Калинина - Фото 11
    Продажа дома, Темрюк, Темрюкский район, ул. Калинина - Фото 12
    Продажа дома, Темрюк, Темрюкский район, ул. Калинина - Фото 13
    Продажа дома, Темрюк, Темрюкский район, ул. Калинина - Фото 14
    Продажа дома, Темрюк, Темрюкский район, ул. Калинина - Фото 15
    Продажа дома, Темрюк, Темрюкский район, ул. Калинина - Фото 16
    Продажа дома, Темрюк, Темрюкский район, ул. Калинина - Фото 17
    Продажа дома, Темрюк, Темрюкский район, ул. Калинина - Фото 18
    Продажа дома, Темрюк, Темрюкский район, ул. Калинина - Фото 19
    Продажа дома, Темрюк, Темрюкский район, ул. Калинина - Фото 20
    кирпичный дом, 2 этажа, общая площадь 170м², год постройки 1990, участок 2.2 сотки

    Продается дом 170 кв.м в г. Темрюке. В доме просторная кухня-гостиная 30 кв.м, кухня, 4 комнаты с санузлом и душевой кабиной в каждой комнате, натяжные потолки, пластиковые окна. Дом возможно использовать как готовую гостиницу на 4 номера. Или купить...
    • 2 эт.
    • 170 м²
    • 2.2 сот.
    • свет
    5 300 000 Р
    Агент
    +7 (903) Показать номер
    Агентство
    Эксперт
    Посмотреть контакты

    Не нашли подходящего объявления?

    Оставьте заявку, и наши риэлторы подберут дачу в районе Темрюка

    (0)