8 500 000 Р 106 000 $ или 92 410

Информация о коттедже

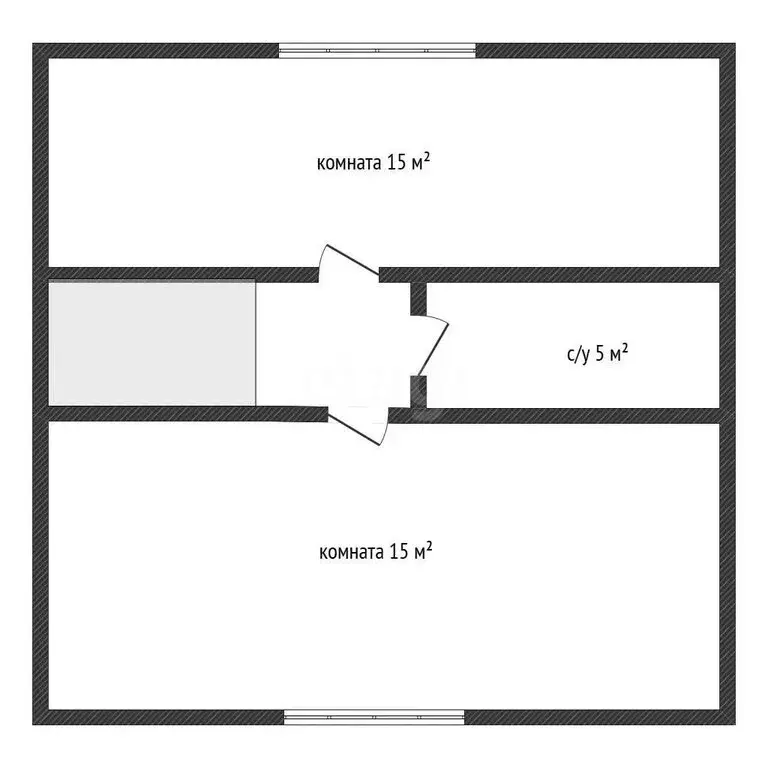
131 м2
Площадь
1
Этажность
4 cоток
Участок

Дополнительная информация

Дом продаётся вместе с участком
есть
Развернуть
Агент
+7 (988) 622-12-20
Начать чат с агентом

Дом в Краснодарский край, Геленджик городской округ, с. Текос ул. ...

В продаже просторный одноэтажный дом площадью 132 м в селе Текос, которое славится своей тихой и спокойной атмосферой. Отсюда открывается восхитительный вид на горы, а воздух настолько чист, что кажется, будто сама природа делится своим благословением. Несмотря на близкое расположение к федеральной трассе, шум дороги остается лишь воспоминанием, позволяя наслаждаться каждой минутой пребывания здесь.Дом под отделку, что предоставляет уникальную возможность воплотить свои дизайнерские идеи и создать интерьер своей мечты. Планировка продумана до мелочей, создавая идеальные условия для большой семьи. Подъезд к дому ровный и удобный, покрытый гравием. Водоснабжение осуществляется через собственную скважину, канализация оборудована септиком, а электросеть рассчитана на мощность 15 кВт. Возможность подключения газа также имеется, что значительно повышает уровень комфорта.Этот дом настоящий подарок для тех, кто стремится к балансу между природной красотой и современными удобствами.Номер объекта: 1/537433/18155

Читать полностью

    Для того, чтобы купить 1-этажный коттедж по адресу: Текос, Береговая улица, позвоните по телефону +7 (988) 622-12-20. Торопитесь! Объявление №50014817217 о продаже одноэтажного коттеджа опубликовано Вчера.

    Позвонить Написать
    8 500 000 Р106 000 $ или 92 410
    Агент
    +7 (988) 622-12-20
    Начать чат с агентом
    Похожие предложения
    Дом в посёлок Агроном, улица 75-летия Победы (140 м) - Фото 1
    Дом в посёлок Агроном, улица 75-летия Победы (140 м) - Фото 2
    2 этажа, общая площадь 140м², участок 4 сотки

    Продаётсядвухэтажныйдом140м2научастке4сотки(ИЖС) в 10 минутах от города.Просторныйифункциональныйдомвотличномсостоянии— идеальноеместодлякомфортнойжизнизагородом Основныехарактеристики:площадьдома:140м2;участок:4сотки,земляИЖС;этажность:2этажа;отделк...
    • 2 эт.
    • 140 м²
    • 4 сот.
    8 500 000 Р
    Агент
    +7 (905) Показать номер
    Посмотреть контакты
    Продажа дома, Цыпка, Туапсинский район, ул. Молодежная - Фото 1
    Продажа дома, Цыпка, Туапсинский район, ул. Молодежная - Фото 2
    Продажа дома, Цыпка, Туапсинский район, ул. Молодежная - Фото 3
    Продажа дома, Цыпка, Туапсинский район, ул. Молодежная - Фото 4
    Продажа дома, Цыпка, Туапсинский район, ул. Молодежная - Фото 5
    Продажа дома, Цыпка, Туапсинский район, ул. Молодежная - Фото 6
    Продажа дома, Цыпка, Туапсинский район, ул. Молодежная - Фото 7
    Продажа дома, Цыпка, Туапсинский район, ул. Молодежная - Фото 8
    Продажа дома, Цыпка, Туапсинский район, ул. Молодежная - Фото 9
    Продажа дома, Цыпка, Туапсинский район, ул. Молодежная - Фото 10
    Продажа дома, Цыпка, Туапсинский район, ул. Молодежная - Фото 11
    Продажа дома, Цыпка, Туапсинский район, ул. Молодежная - Фото 12
    Продажа дома, Цыпка, Туапсинский район, ул. Молодежная - Фото 13
    Продажа дома, Цыпка, Туапсинский район, ул. Молодежная - Фото 14
    Продажа дома, Цыпка, Туапсинский район, ул. Молодежная - Фото 15
    2 этажа, общая площадь 105м², жилая 75м², кухня 7.5м², кол-во комнат 5, год постройки 1994, участок 8 соток

    Продаю жилой дом общей площадью 130 квм на 8 сотках земли в живописном уголке Туапсинского района в с. Цыпка. Для жизни все предусмотрено-заходи и живи Дом теплый и светлый, на первом этаже три спальни ,зал, кухня, просторный холл, совмещенный...
    • 2 эт.
    • 105 м²
    • 8 сот.
    • 5-ком
    8 500 000 Р
    Агент
    +7 (999) Показать номер
    Агентство
    ЭЛИКА-ЮГ
    Посмотреть контакты
    Дом в Краснодарский край, Новороссийск городской округ, Раевская ст-ца ... - Фото 1
    Дом в Краснодарский край, Новороссийск городской округ, Раевская ст-ца ... - Фото 2
    1 этаж, общая площадь 86м², участок 5 соток

    Уютный и современный дом в станице Раевская — комфорт и уют в каждом уголке Предлагается к продаже просторный дом площадью 86 кв.м, расположенный на земельном участке 6 соток. В доме три светлых спальни, идеально подходящих для семьи, а также просторная...
    • 1 эт.
    • 86 м²
    • 5 сот.
    8 500 000 Р
    Агент
    +7 (918) Показать номер
    Посмотреть контакты
    Продажа дома, Полтавская, Красноармейский район, ул. Набережная - Фото 1
    Продажа дома, Полтавская, Красноармейский район, ул. Набережная - Фото 2
    Продажа дома, Полтавская, Красноармейский район, ул. Набережная - Фото 3
    Продажа дома, Полтавская, Красноармейский район, ул. Набережная - Фото 4
    Продажа дома, Полтавская, Красноармейский район, ул. Набережная - Фото 5
    Продажа дома, Полтавская, Красноармейский район, ул. Набережная - Фото 6
    Продажа дома, Полтавская, Красноармейский район, ул. Набережная - Фото 7
    Продажа дома, Полтавская, Красноармейский район, ул. Набережная - Фото 8
    Продажа дома, Полтавская, Красноармейский район, ул. Набережная - Фото 9
    Продажа дома, Полтавская, Красноармейский район, ул. Набережная - Фото 10
    Продажа дома, Полтавская, Красноармейский район, ул. Набережная - Фото 11
    Продажа дома, Полтавская, Красноармейский район, ул. Набережная - Фото 12
    Продажа дома, Полтавская, Красноармейский район, ул. Набережная - Фото 13
    Продажа дома, Полтавская, Красноармейский район, ул. Набережная - Фото 14
    Продажа дома, Полтавская, Красноармейский район, ул. Набережная - Фото 15
    Продажа дома, Полтавская, Красноармейский район, ул. Набережная - Фото 16
    Продажа дома, Полтавская, Красноармейский район, ул. Набережная - Фото 17
    Продажа дома, Полтавская, Красноармейский район, ул. Набережная - Фото 18
    Продажа дома, Полтавская, Красноармейский район, ул. Набережная - Фото 19
    Продажа дома, Полтавская, Красноармейский район, ул. Набережная - Фото 20
    кирпичный дом, 3 этажа, общая площадь 251.7м², год постройки 2000, участок 9 соток

    Этот уникальный объект недвижимости представляет собой не просто дом, а воплощение вашей мечты о комфортной и безмятежной жизни. Расположенный на живописном берегу Полтавского ерика, он предлагает идеальное сочетание уединения и близости к развитой инфраструктуре....
    • 3 эт.
    • 251.7 м²
    • 9 сот.
    • свет
    8 500 000 Р
    Агент
    +7 (909) Показать номер
    Агентство
    Эксперт
    Посмотреть контакты
    Продажа дома, Темрюк, Темрюкский район, ул. Фрунзе - Фото 1
    Продажа дома, Темрюк, Темрюкский район, ул. Фрунзе - Фото 2
    Продажа дома, Темрюк, Темрюкский район, ул. Фрунзе - Фото 3
    Продажа дома, Темрюк, Темрюкский район, ул. Фрунзе - Фото 4
    Продажа дома, Темрюк, Темрюкский район, ул. Фрунзе - Фото 5
    Продажа дома, Темрюк, Темрюкский район, ул. Фрунзе - Фото 6
    Продажа дома, Темрюк, Темрюкский район, ул. Фрунзе - Фото 7
    Продажа дома, Темрюк, Темрюкский район, ул. Фрунзе - Фото 8
    Продажа дома, Темрюк, Темрюкский район, ул. Фрунзе - Фото 9
    Продажа дома, Темрюк, Темрюкский район, ул. Фрунзе - Фото 10
    Продажа дома, Темрюк, Темрюкский район, ул. Фрунзе - Фото 11
    Продажа дома, Темрюк, Темрюкский район, ул. Фрунзе - Фото 12
    Продажа дома, Темрюк, Темрюкский район, ул. Фрунзе - Фото 13
    Продажа дома, Темрюк, Темрюкский район, ул. Фрунзе - Фото 14
    Продажа дома, Темрюк, Темрюкский район, ул. Фрунзе - Фото 15
    Продажа дома, Темрюк, Темрюкский район, ул. Фрунзе - Фото 16
    кирпичный дом, 2 этажа, общая площадь 127м², год постройки 2025, участок 5 соток

    Современный дом в центре города: комфорт и престиж в каждой детали Мечтаете о собственном доме, где продумана каждая мелочь? Представляем вам новый современный коттедж со вторым светом — идеальное сочетание стиля, функциональности и выгодного расположения. Главные...
    • 2 эт.
    • 127 м²
    • 5 сот.
    • свет
    8 500 000 Р
    Агент
    +7 (903) Показать номер
    Агентство
    Эксперт
    Посмотреть контакты

    Не нашли подходящего объявления?

    Оставьте заявку, и наши риэлторы подберут купить дом в районе Текоса

    (0)