40 000 000 Р 511 300 $ или 434 300

Информация об помещении

3
Этаж

Состояние и оснащение

Количество этажей
3
Развернуть
Агент
+7 (989) 198-07-93
Начать чат с агентом

Помещение свободного назначения в Краснодарский край, Сочи Лазаревское ...

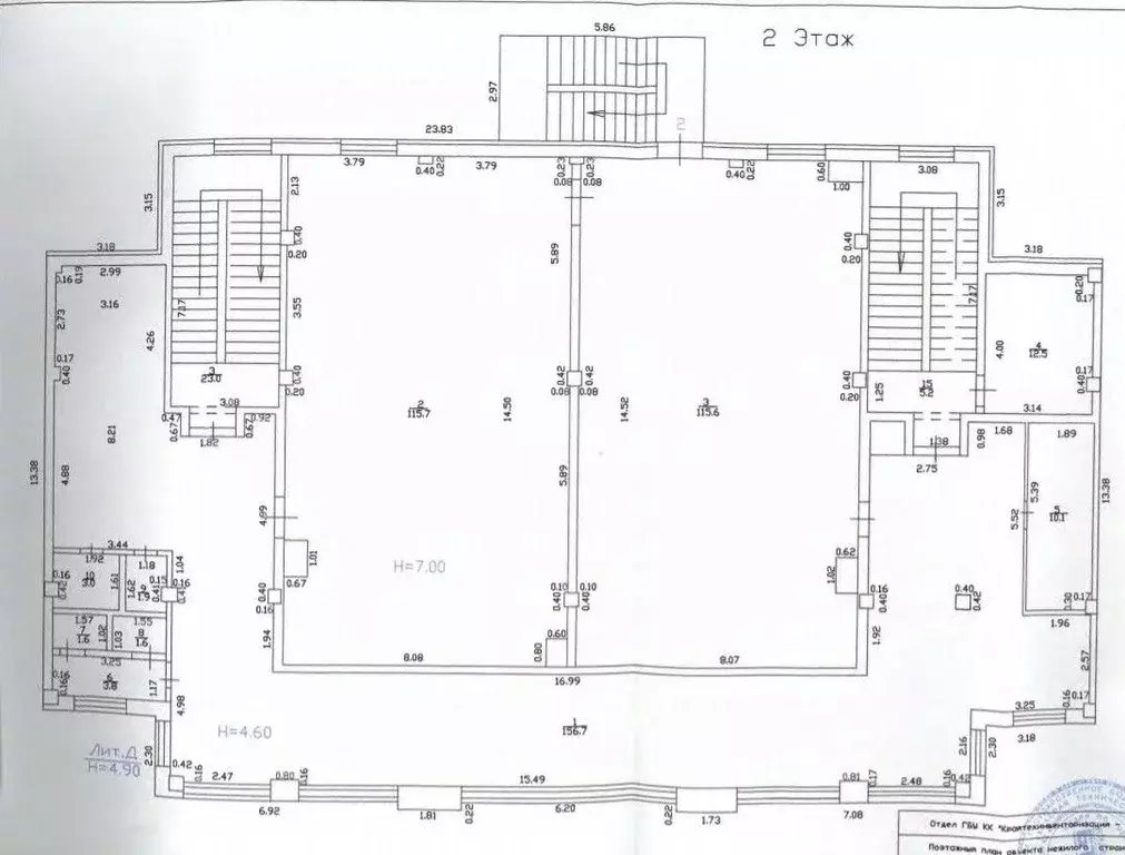
Продаются помещения площадью 673,6 кв.м. под коммерцию в центре курортного поселка Лазаревское. Располагается на втором этаже в 3-х этажном здании общей площадью 1757,5 кв.м. На этаже располагается 10 помещений площадью от 30 до 40 кв.м., а так же множество отдельных помещений различного назначения, в том числе кухня и два санузла. С торца здания имеется обособленные офисы с отдельным входом. Объект готов к эксплуатации под сдачу в аренду, имеются действующие арендаторы. Коммуникации центральные. Кроме того, к помещениям прилагаются части земельного участка под строением (оформлен в долевую собственность, определен порядок пользования), где в фасадной части расположены торговые павильоны, сданные в аренду, а с другого торца здания находится просторная парковочная зона. Это отличная возможность для инвестиций Для получения дополнительной информации и записи на просмотр обращайтесь по телефону. [Идентификатор объекта 9568]

Читать полностью
    Позвонить Написать
    40 000 000 Р511 300 $ или 434 300
    Агент
    +7 (989) 198-07-93
    Начать чат с агентом
    Похожие предложения
    Помещение свободного назначения в Краснодарский край, Сочи ул. ... - Фото 1
    Помещение свободного назначения в Краснодарский край, Сочи ул. ... - Фото 2
    Продажа коммерческой недвижимости в Адлере — инвестиции на перспективной площади Расположение: Краснодарский край, г. Сочи, Адлерский район, ул. Авиационная, 56. Всего 2 км до центра города 1,5 км до морской набережной и пляжей 2 км до международного...
    • 1/1 эт.
    40 000 000 Р
    Агент
    +7 (918) Показать номер
    Посмотреть контакты
    Продается ПСН 500 м2 - Фото 1
    Продается ПСН 500 м2 - Фото 2
    Продается ПСН 500 м2 - Фото 3
    Продается ПСН 500 м2 - Фото 4
    Продается ПСН 500 м2 - Фото 5
    Продается ПСН 500 м2 - Фото 6
    Продается ПСН 500 м2 - Фото 7
    Продается ПСН 500 м2 - Фото 8
    полезная площадь 500м²

    Продается кинотеатр на два зала. Много дополнительных площадей под сферу услуг. Новое здание. Кинотеатр очень нужен городу. Горожанам и отдыхающим гостям города приходится ездить за 70 км. Помещение свободного назначения площадью 500 м2, предоставляется...
    • 500 м²
    • 2/3 эт.
    40 000 000 Р
    Агент
    +7 (958) Показать номер
    Посмотреть контакты
    Помещение свободного назначения в Краснодарский край, Краснодар ... - Фото 1
    Помещение свободного назначения в Краснодарский край, Краснодар ... - Фото 2
    Продается здание в Краснодаре Общая площадь: 521,3 кв. м Кадастровый номер: 23:43:0306014:311 Характеристики земельного участка: • Площадь: 490 кв. м • Кадастровый номер: 23:43:0306008:42 • Договор аренды до 27.09.2055 • Категория земель: земли населенных...
    • 1/1 эт.
    40 800 000 Р
    Агент
    +7 (918) Показать номер
    Посмотреть контакты
    Помещение свободного назначения в Краснодарский край, Староминская ... - Фото 1
    Помещение свободного назначения в Краснодарский край, Староминская ... - Фото 2
    Звоните, пишите в удобное для Вас время, отвечаем круглосуточно Продается бывший кирпичный завод , расположенный в промышленной зоне станицы Староминская, на объездной у кольца на Ейск, Краснодар и Ростов, с асфальтированными подъездными путями. Кирпичный...
    • 1/1 эт.
    40 000 000 Р
    Агент
    +7 (989) Показать номер
    Посмотреть контакты
    Помещение свободного назначения в Краснодарский край, Горячий Ключ ул. ... - Фото 1
    Помещение свободного назначения в Краснодарский край, Горячий Ключ ул. ... - Фото 2
    Продается кинотеатр на два зала. Много дополнительных площадей под сферу услуг. Новое здание. Кинотеатр очень нужен городу. Горожанам и отдыхающим гостям города приходится ездить за 70 км. Помещение свободного назначения площадью 500 м2, предоставляется...
    • 2/3 эт.
    40 000 000 Р
    Агент
    +7 (918) Показать номер
    Посмотреть контакты

    Не нашли подходящего объявления?

    Оставьте заявку, и наши риэлторы подберут псн в районе Сочи

    (0)