Россия, Краснодарский край, Сочи, микрорайон Кудепста

Реализация объекта недвижимости приостановлена

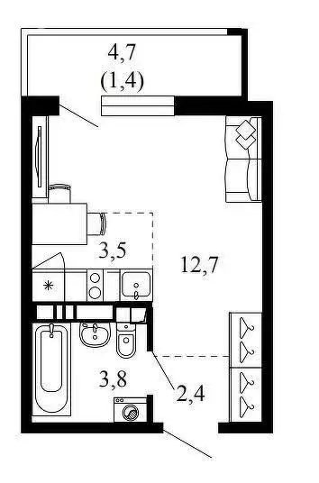
Информация о квартире

23.0 м2
Площадь
13.0 м2
Жилая
студия
Комнат
11
Этаж
17
Этажность
Развернуть

Квартира-студия: Сочи, микрорайон Кудепста (23.8 м)

Продаётся квартира - студия в современном жилом комплексе Эко-Комфорт+.Удобная планировка с выделенной прихожей, большой ванной комнатой, зоной кухни и гостиной, с выходом на просторный балкон , откуда открывается потрясающий вид на горную реку Кудепста, благоустроенную набережную и величественный Кавказский хребет. Именно здесь вы сможете наслаждаться захватывающими закатами.Квартира светлая и просторная, с большим широким окном и выходом на балкон, что обеспечивает дополнительное пространство и естественное освещение. Отделка выполнена в формате предчистовой.Жилой комплекс расположен в экологически чистом районе города Сочи, микрорайоне Кудепста, где есть вся необходимая инфраструктура. Благодаря отличной транспортной развязке и близости к морю, новой дороге на Красную Поляну и центру Сочи, дорога до любой точки города займёт не более 20 минут на автомобиле.В пешей доступности от дома находятся благоустроенные детские и спортивные площадки, школа и детский сад. Ландшафтный дизайн территории жилого комплекса включает зелёные аллеи и прогулочные зоны, обеспечивая безопасность и комфорт для всех жителей.Микрорайон идеально подходит для семей с детьми и тех, кто решил переехать в Сочи на постоянное место жительства.Квартира продаётся собственником. Без залогов и обременений, возможна ипотека.Для получения дополнительной информации о квартире и условиях покупки, пожалуйста, свяжитесь по телефону.Я с радостью расскажем вам о преимуществах этого замечательного варианта и организую просмотр объекта. Ваша будущая квартира ждёт вас Код пользователя: 188749Номер в базе: 9797053

Читать полностью

    Реализация объекта недвижимости приостановлена

    Не нашли подходящего объявления?

    Оставьте заявку, и наши риэлторы подберут квартиру в новостройке в районе Сочи

    (0)