12 800 000 Р 159 900 $ или 135 800

Информация о коттедже

150 м2
Площадь
2
Этажность
9 cоток
Участок

Дополнительная информация

Дом продаётся вместе с участком
есть
Развернуть
Агент
+7 (918) 360-82-75
Начать чат с агентом

Дом в Краснодарский край, Новороссийск городской округ, Семигорский ...

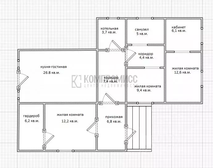
Продается уютный дом для большой семьи с отличной планировкойИщете идеальное место для комфортного проживания? Этот добротный дом с площадью 15 соток — ваш шанс обеспечить себе и своей семье все условия для счастливой жизни. Вы получаете не просто жилье, а пространство, где каждый член семьи сможет найти свое уединение и комфорт.В этом доме предусмотрены два отдельных входа и два санузла, что значительно повышает удобство и комфорт для всех. Просторные комнаты позволяют вам организовать личное пространство, а наличие кладового помещения и прекрасной гардеробной обеспечивает удобное хранение вещей и одежды. Большой гараж на две машины и крытый заезд гарантируют безопасное хранение вашего автотранспорта, что особенно важно для семей с несколькими автомобилями.Во дворе расположена уютная летняя кухня в французском стиле, где вы сможете проводить время с семьей и друзьями, наслаждаясь атмосферой уюта. Подсобные помещения предоставляют дополнительное пространство для хранения, а вольеры на территории позволяют заниматься подсобным хозяйством, что станет отличным дополнением к вашему образу жизни.Участок ухожен и обработан, на нем растут фруктовые деревья и имеется теплица для выращивания свежих овощей и зелени. Это идеальное место для тех, кто планирует переезд на юг с большой семьей и хочет наслаждаться плодами своего труда.Район предлагает развитую инфраструктуру: рядом находятся магазины, школы и медицинские учреждения, что делает жизнь здесь комфортной и удобной. Вы . Дополнительно оплачивается комиссия с покупателя.Код пользователя: 189842Номер в базе: 8254957

Читать полностью

    Для того, чтобы купить 2-этажный коттедж по адресу: Семигорский, ул. Центральная, 23, позвоните по телефону +7 (918) 360-82-75. Торопитесь! Объявление №50016650088 о продаже двухэтажного коттеджа опубликовано 16 декабря 2025.

    Позвонить Написать
    12 800 000 Р159 900 $ или 135 800
    Агент
    +7 (918) 360-82-75
    Начать чат с агентом
    Похожие предложения
    Дом в Краснодар, Киргизская улица, 20 (200 м) - Фото 1
    Дом в Краснодар, Киргизская улица, 20 (200 м) - Фото 2
    2 этажа, общая площадь 200м², участок 4 сотки

    Арт.ВИШПродается двухэтажный, кирпичный (в два кирпича),добротный дом площадью 200 метров + цокольный этаж 100 метров на участке 4.6 соток.Все коммуникации центральные. Высота потолка 3 кв.м. Год постройки-1995. Продажа срочная, поэтому цена на дом,такого...
    • 2 эт.
    • 200 м²
    • 4 сот.
    12 500 000 Р
    Агент
    +7 (918) Показать номер
    Посмотреть контакты
    Дом 92.8 м2 на участке 6 сот. - Фото 1
    Дом 92.8 м2 на участке 6 сот. - Фото 2
    Дом 92.8 м2 на участке 6 сот. - Фото 3
    Дом 92.8 м2 на участке 6 сот. - Фото 4
    Дом 92.8 м2 на участке 6 сот. - Фото 5
    Дом 92.8 м2 на участке 6 сот. - Фото 6
    Дом 92.8 м2 на участке 6 сот. - Фото 7
    Дом 92.8 м2 на участке 6 сот. - Фото 8
    Дом 92.8 м2 на участке 6 сот. - Фото 9
    Дом 92.8 м2 на участке 6 сот. - Фото 10
    Дом 92.8 м2 на участке 6 сот. - Фото 11
    Дом 92.8 м2 на участке 6 сот. - Фото 12
    Дом 92.8 м2 на участке 6 сот. - Фото 13
    Дом 92.8 м2 на участке 6 сот. - Фото 14
    Дом 92.8 м2 на участке 6 сот. - Фото 15
    деревянный дом, 1 этаж, общая площадь 92.8м², кол-во комнат 3, год постройки 2023, участок 6 соток

    Продажа жилого дома в уникальном месте!!! Желаете приобрести жилой дом вдали от городской суеты? Тогда Наше предложение точно Вам подходит! Новый жилой дом расположен в живописном месте, вблизи одного из чудес природы- Гуамского ущелья. Адрес: переулок...
    • 1 эт.
    • 92.8 м²
    • 6 сот.
    • 3-ком
    12 700 000 Р
    Агент
    +7 (934) Показать номер
    Посмотреть контакты
    Дом в Краснодарский край, Динская ст-ца пл. Фонтанная (117 м) - Фото 1
    Дом в Краснодарский край, Динская ст-ца пл. Фонтанная (117 м) - Фото 2
    2 этажа, общая площадь 116м², участок 5 соток

    Арт.В продаже дом из кирпича в два этажа, в центре станицы Динская, в пятнадцати минутах от администрации, Динского парка культуры и отдыха, школ, детских садов и т.п.Дом, 1993 года постройки, общей площадью 116 кв.м., жилой площадью- 66 кв.м.На первом...
    • 2 эт.
    • 116 м²
    • 5 сот.
    12 000 000 Р
    Агент
    +7 (953) Показать номер
    Посмотреть контакты
    Дом в Краснодарский край, Краснодар проезд 5-й Куликова Поля, 39/3 ... - Фото 1
    Дом в Краснодарский край, Краснодар проезд 5-й Куликова Поля, 39/3 ... - Фото 2
    2 этажа, общая площадь 135м², участок 5 соток

    Продам дом в развитом районе. 135.8 м на 5 сотках с идеальным ремонтом.сделан с душой по документам 135.8Не просто дом, а место силы, созданное с любовью для жизни Продается просторный кирпичный дом 139 кв.м на ухоженном участке в 5 соток. Вас ждет...
    • 2 эт.
    • 135 м²
    • 5 сот.
    12 900 000 Р
    Агент
    +7 (989) Показать номер
    Посмотреть контакты
    Дом в Краснодарский край, муниципальный округ Анапа, хутор Песчаный, ... - Фото 1
    Дом в Краснодарский край, муниципальный округ Анапа, хутор Песчаный, ... - Фото 2
    2 этажа, общая площадь 180м², участок 6 соток

    В продаже одноэтажный дом площадью180 кв.м. на земельном участке 6,8 соток. Назначение земли ИЖС. Дом построен из керамзитобетонного блока, утеплитель пенополистирол 50 мм., фасад - кирпич. Коммуникации: вода - скважина, канализация - септик, отопление...
    • 2 эт.
    • 180 м²
    • 6 сот.
    14 000 000 Р
    Агент
    +7 (967) Показать номер
    Посмотреть контакты

    Не нашли подходящего объявления?

    Оставьте заявку, и наши риэлторы подберут купить дом в районе Семигорского

    (0)