Россия, Краснодарский край, Семигорский, улица имени Казачки Марьяны
7 000 000 Р 86 720 $ или 74 060

Информация о коттедже

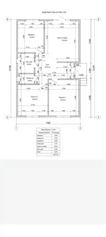
80 м2
Площадь
1
Этажность
5 cоток
Участок

Дополнительная информация

Дом продаётся вместе с участком
есть
Развернуть
Агент
+7 (918) 123-10-52
Начать чат с агентом

Дом в Краснодарский край, Новороссийск городской округ, Семигорский ...

Продается уютный новый дом в хуторе Семигорский.Ваш шанс на жизнь в гармонии с природой, недалеко от моря и гор. Представьте себе место, где царит тишина, а воздух наполнен ароматом степных трав и близкого моря. Это - хутор Семигорский. Уникальное расположение между Анапой и Новороссийском (всего ~30 мин на авто) открывает вам все преимущества курортной жизни: золотые пляжи, винодельни, начало Кавказских гор - и при этом позволяет жить в спокойном, экологически чистом уголке с развитой инфраструктурой.О доме и участке:Площадь дома: 8x10 м, одноэтажный с продуманной планировкой, в настоящий момент заканчиваем ремонт.Участок: около 5 соток, правильной прямоугольной формы, полностью благоустроен - огорожен металлическим забором, с кирпичным парадным входом, бетонированным заездом для авто, отмосткой и отсыпкой.Коммуникации: Полная автономность и комфорт. Своя скважина (вода), септик (канализация), электричество 15кВт, газ подведен по меже.На фото пример типового ремонта, в данный момент заканчиваем ремонт.Что вас приятно удивит - это качество строительства от надежного застройщика и приятный внешний вид дома. Фундамент: надежный ленточный. Стены трехслойный пирог - облицовочный кирпич, утеплитель, газоблок - для тепла и долговечности. Высота потолков: 2.9 м, создающая ощущение простора. Кровля: металлическая с утеплением. Система отопления: смонтирована разводка с радиаторами и теплыми полами.Инфраструктура рядом: В шаговой доступности есть всё для комфортной жизни: магазины, остановка общественного транспорта, школа и детский сад.Финансовые и юридические вопросы: Все документы в порядке и готовы к чистой продаже. Возможность покупки с использованием ипотеки или материнского капитала.Этот дом - готовое решение для тех, кто ценит тишину, природу и качество жизни. Он идеален для постоянного проживания или как загородная дача у моря.Звоните, с радостью отвечу на все вопросы и организую просмотр.Арт.

Читать полностью

    Для того, чтобы купить 1-этажный коттедж по адресу: Семигорский, улица имени Казачки Марьяны, позвоните по телефону +7 (918) 123-10-52. Торопитесь! Объявление №50016641205 о продаже одноэтажного коттеджа опубликовано 17 декабря 2025.

    Позвонить Написать
    7 000 000 Р86 720 $ или 74 060
    Агент
    +7 (918) 123-10-52
    Начать чат с агентом
    Похожие предложения в Семигорском
    Дом в Краснодарский край, Новороссийск городской округ, Семигорский ... - Фото 1
    Дом в Краснодарский край, Новороссийск городской округ, Семигорский ... - Фото 2
    1 этаж, общая площадь 80м², участок 4 сотки

    Арт.Продаётся новый дом в Анапе, х. Семигорский. 3 спальни, кирпич. Семейная ипотека. СЕМЕЙНАЯ ИПОТЕКА ОДОБРЯЕТСЯ — Используйте льготную ставку для переезда в свой дом в Анапе. Ваш новый дом — готов к финишной отделке:Планировка: 3 отдельные спальни,...
    • 1 эт.
    • 80 м²
    • 4 сот.
    7 000 000 Р
    Агент
    +7 (988) Показать номер
    Посмотреть контакты
    Дом в Краснодарский край, Новороссийск городской округ, Семигорский ... - Фото 1
    Дом в Краснодарский край, Новороссийск городской округ, Семигорский ... - Фото 2
    2 этажа, общая площадь 150м², участок 3 сотки

    B ПPOДAЖE ДOМ С КАЧЕСTВEННОЙ ОТДЕЛКОЙ ИЖС ПЛOЩAДЬ 150 KB.M, ЗЕМЕЛЬНЫЙ УЧACTОК 3,6 СOTОK CОБCТВЕHHОCTЬ Жилой зacтрoeнный рaйон БЕСПЛАТНО ПРОКОНСУЛЬТИРУЕМ по сделке Звоните О ДОМЕ:- построен из: монолитный каркас, железобетонные перекрытия,заполненный...
    • 2 эт.
    • 150 м²
    • 3 сот.
    7 100 000 Р
    Агент
    +7 (989) Показать номер
    Посмотреть контакты
    Дом в Краснодарский край, Новороссийск городской округ, Семигорский ... - Фото 1
    Дом в Краснодарский край, Новороссийск городской округ, Семигорский ... - Фото 2
    1 этаж, общая площадь 100м², участок 7 соток

    Арт.В продаже напрямую от застройщика дом общей площади 100 кв. м на участке 7.5 соток ИЖС в самом сердце хутора Идеальное место для семейных вечеров, праздников и счастливой жизни.Дом в черновой отделке с возможностью сделать предчистовую отделку —...
    • 1 эт.
    • 100 м²
    • 7 сот.
    6 900 000 Р
    Агент
    +7 (918) Показать номер
    Посмотреть контакты
    Дом в Краснодарский край, Новороссийск городской округ, Семигорский ... - Фото 1
    Дом в Краснодарский край, Новороссийск городской округ, Семигорский ... - Фото 2
    1 этаж, общая площадь 130м², участок 6 соток

    Идеальный, компактный одноэтажный дом. Несмотря на свои скромные очертания, дом выглядит элегантно и интересно благодаря стильному, современному оформлению крыльца .Максимально рациональная планировка позволила сделать все комнаты достаточно просторными...
    • 1 эт.
    • 130 м²
    • 6 сот.
    7 100 000 Р
    Агент
    +7 (918) Показать номер
    Посмотреть контакты
    Дом в Краснодарский край, Новороссийск городской округ, Семигорский ... - Фото 1
    Дом в Краснодарский край, Новороссийск городской округ, Семигорский ... - Фото 2
    2 этажа, общая площадь 100м², участок 5 соток

    Арт.Дом находится в превосходном месте — в х.Семигорский, в живописном месте с видом на горы и поля.. Он расположен вдали от подъезднои дороги, что гарантирует отсутствие пыли и шума, а также гарантирует спокоиствие и добрососедские отношения.Земельный...
    • 2 эт.
    • 100 м²
    • 5 сот.
    6 950 000 Р
    Агент
    +7 (988) Показать номер
    Посмотреть контакты

    Не нашли подходящего объявления?

    Оставьте заявку, и наши риэлторы подберут купить дом в районе Семигорского

    (0)