52 000 Р 683 $ или 586

Информация об помещении

1
Этаж

Состояние и оснащение

Количество этажей
1
Развернуть
Агент
+7 (918) 284-52-91
Начать чат с агентом

Помещение свободного назначения в Краснодарский край, Новороссийск ...

Сдается в аренду двухэтажное помещение под любой вид деятельности на ул. Волгоградской в торговом ряду на первой линии Помещение с ремонтом общей площадью 75 кв м.Отдельный вход. Санузел ( холодная вода). Электричество 15 квт. Просторные, светлые помещения, в каждом минимум 2 окна.Подойдёт для любого вида деятельности.

Читать полностью
    Позвонить Написать
    52 000 Р683 $ или 586
    Агент
    +7 (918) 284-52-91
    Начать чат с агентом
    Похожие предложения
    Помещение свободного назначения в Краснодарский край, Новороссийск ... - Фото 1
    Помещение свободного назначения в Краснодарский край, Новороссийск ... - Фото 2
    Предлагается в аренду нежилое помещение площадью 88 кв.м.От собственника. Без комиссии.Возможно под квест, склад- Центр города, подвальное помещение- Несколько кабинетов,- Оборудованная оружейная комната (после ЧОПа)- Санузел,- Кондиционер- Помещение...
    • -1/9 эт.
    53 000 Р
    Агент
    +7 (918) Показать номер
    Посмотреть контакты
    Помещение свободного назначения в Краснодарский край, Новороссийск ул. ... - Фото 1
    Помещение свободного назначения в Краснодарский край, Новороссийск ул. ... - Фото 2
    Сдаю торговое помещение 1 этаж 1 линия от 75 до 750 м с высоким трафиком в центреОт Собственника. Без комиссии- Расположение: Центральный район, первая линия, удобный подъезд, интенсивный трафик, в шaговой доступности банки, центральный рынок и др.- Преимущества:...
    • 1/1 эт.
    52 500 Р
    Агент
    +7 (918) Показать номер
    Посмотреть контакты
    Помещение свободного назначения в Краснодарский край, Новороссийск ... - Фото 1
    Помещение свободного назначения в Краснодарский край, Новороссийск ... - Фото 2
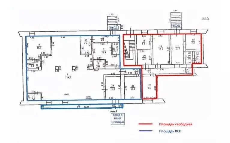
    Сбер А предлагает к аренде нежилое помещение общей площадью 69,8 м2, расположенное по адресу: Краснодарский край, г. Новороссийск, пр-кт. Ленина, д. 10, пом. 4 Аренда посредством проведения торгов на электронной площадке Сбербанк-АСТ.Номер процедуры:...
    • 1/1 эт.
    52 266 Р
    Агент
    +7 (912) Показать номер
    Посмотреть контакты
    Помещение свободного назначения в Краснодарский край, Крымск ... - Фото 1
    Помещение свободного назначения в Краснодарский край, Крымск ... - Фото 2
    С 01.09.2022 года ПАО Ростелеком сдает в аренду помещения первого этажа площадью 81.10 кв. м. (пункт обслуживания клиентов).Объект расположен в центре г. Крымск, на первой линии, развитая инфраструктура, пешеходный и автомобильный трафик.Подходит под...
    • 1/3 эт.
    51 030 Р
    Агент
    +7 (988) Показать номер
    Посмотреть контакты
    Сдаются в аренду помещения свободного назначения, площадью 81.7 кв. м., расположенные на первом этаже административно-производственного здания в центре ст. Выселки. Отдельный вход. Ставка арендной платы может быть актуализирована на дату заключения договора....
    • 1/3 эт.
    52 125 Р
    Агент
    +7 (988) Показать номер
    Посмотреть контакты

    Не нашли подходящего объявления?

    Оставьте заявку, и наши риэлторы подберут псн в районе Новороссийска

    (0)