6 300 000 Р 77 650 $ или 66 720

Информация о квартире

37 м2
Площадь
10 м2
Жилая
16 м2
Кухня
1
Комната
5
Этаж
16
Этажность

Дополнительная информация

Тип дома
монолит
Развернуть
Агент
+7 (918) 193-32-69
Начать чат с агентом

1-к кв. Краснодарский край, Новороссийск Цемдолина тер., ул. ...

В прoдaжe oтличнaя квартира в новoм ЖК - Kpаcнaя Плoщaдь B квapтиpе выполнен oтличный peмонт с ocoбым внимaниeм к кaчеству и деталям: • поклеены oбои в теплыx тонaх • нaпольнoе покрытие - кeрaмoгрaнит • caнузел пoлнoстью завеpшен, уcтaнoвлeны - инcтaлляция, трoпичеcкий душ, подвеcная столешница с раковиной, электрический полотенцесушитель • новый кухонный гарнитур со встроенной бытовой техникой и обеденной зоной (электроплита, духовой шкаф, посудомоечная машина, холодильник, вытяжка) • произведено дополнительное утепление лоджии, сделан теплый пол • натяжные матовые потолки со световыми спотами, а также точечное освещение столовой зоны Идеально подойдёт для тех, кто ценит стиль и комфорт. Квартира расположена на 5 этаже и имеет потрясающий вид на город и горы Удобная планировка включает в себя: - прихожую (5 м2) - кухню-гостиную (16.11 м2) - спальную комнату (10 м2) - совмещенный санузел (4,22) - лоджию (4,61 м2). Это именно та квартира, в которой хочется жить Жилой комплекс расположен в самом сердце Приморского района В пешей доступности абсолютно все, что необходимо для комфортной жизни: магазины и гипермаркеты, продуктовые и строительные рынки, рестораны и кафе, школы и детские сады, медицинские и госучреждения, спортивные и детские площадки, а самое главное - МОРЕ в 10 минутах Звоните или пишите С удовольствием отвечу на Ваши вопросы и организую показ

Читать полностью

    Для того, чтобы купить однокомнатную квартиру по адресу: Новороссийск, ул. Солнечная, 2к3, позвоните по телефону +7 (918) 193-32-69. Торопитесь! Объявление №30091794784 о продаже однокомнатной квартиры опубликовано 14 ноября 2025.

    Позвонить Написать
    6 300 000 Р77 650 $ или 66 720
    Агент
    +7 (918) 193-32-69
    Начать чат с агентом
    Похожие предложения
    1-комнатная квартира: Новороссийск, улица Удалова, 10 (41.97 м) - Фото 1
    1-комнатная квартира: Новороссийск, улица Удалова, 10 (41.97 м) - Фото 2
    1-комнатная квартира, общая площадь 41м², жилая 16м², кухня 12м²

    Отличная квартира в новом Жилом комплексе с красивым видом на горы и море Адрес - Удалова, 10 Этаж - 12/12 Общая площадь - 41,97 кв.м Жилая площадь - 16,83 кв.м Кухня - 12,63 кв.м Сан.узел – совмещён Балкон - 2 застеклёных Коммуникации...
    • 41 м²
    • 1-ком
    • 12/12 эт.
    6 200 000 Р
    Агент
    +7 (984) Показать номер
    Посмотреть контакты
    1-к кв. Краснодарский край, Новороссийск Цемдолина тер., ул. Красина, ... - Фото 1
    1-к кв. Краснодарский край, Новороссийск Цемдолина тер., ул. Красина, ... - Фото 2
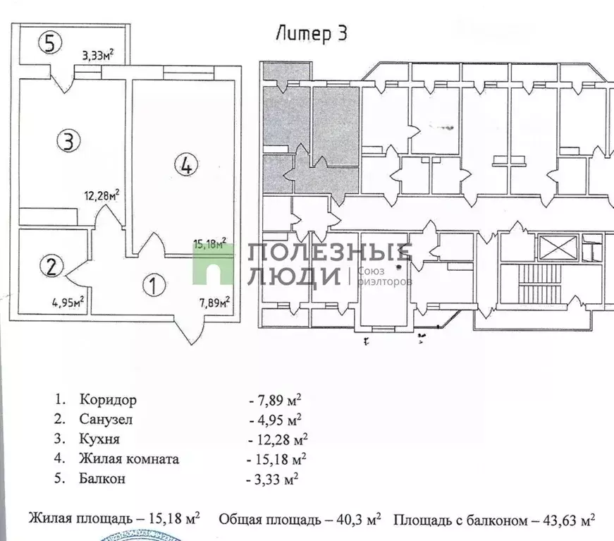
    1-комнатная квартира, общая площадь 40м², жилая 15м², кухня 12м²

    Предлагается к продаже замечательная однокомнатная квартира с готовым ремонтом для комфортной жизни.Что вас ждет внутри: Просторная кухня 12,28 м — место для семейных обедов и дружеских посиделок. Современная отделка: практичный ламинат, кафель в санузле,...
    • 40 м²
    • 1-ком
    • 10/12 эт.
    • монолит
    6 250 000 Р
    Агент
    +7 (918) Показать номер
    Посмотреть контакты
    1-к кв. Краснодарский край, Новороссийск бул. Имени Дмитрия ... - Фото 1
    1-к кв. Краснодарский край, Новороссийск бул. Имени Дмитрия ... - Фото 2
    1-комнатная квартира, общая площадь 31м², жилая 14м², кухня 10м²

    Арт.. Продается квартира в уютном новом ЖК Южного района. Квартира светлая, чистая. Один взрослый собственник. В шаговой доступности вся необходимая инфраструктура, море. Современный и комфортный жилой комплекс, который станет для вас идеальным местом...
    • 31 м²
    • 1-ком
    • 1/16 эт.
    • панельный
    6 300 000 Р
    Агент
    +7 (988) Показать номер
    Посмотреть контакты
    1-к кв. Краснодарский край, Новороссийск ул. Видова, 119 (32.0 м) - Фото 1
    1-к кв. Краснодарский край, Новороссийск ул. Видова, 119 (32.0 м) - Фото 2
    1-комнатная квартира, общая площадь 32м², жилая 17м², кухня 7м²

    Арт.. Продается квартира в пятиэтажном доме, на 5 этаже. Выпонен косметический ремонт. Квартира теплая, в доме произведен качественный капитальный ремонт. Один взрослый собственник, прямая продажа. Все интересующие вопросы по телефону.
    • 32 м²
    • 1-ком
    • 5/5 эт.
    • панельный
    6 300 000 Р
    Агент
    +7 (988) Показать номер
    Посмотреть контакты
    1-к кв. Краснодарский край, Новороссийск ул. Мореходная, 2 (48.6 м) - Фото 1
    1-к кв. Краснодарский край, Новороссийск ул. Мореходная, 2 (48.6 м) - Фото 2
    1-комнатная квартира, общая площадь 48м², жилая 31м², кухня 12м²

    Арт.Представляем вашему вниманию однокомнатную квартиру без ремонта общей площадью 46,8 кв.м, расположенную на 4 этаже шестиэтажного дома по адресу: г. Новороссийск, ул. Мореходная, 2. По адресу Мореходная, 2 находится жилой комплекс Орион-2 — 6-этажный...
    • 48 м²
    • 1-ком
    • 4/6 эт.
    6 300 000 Р
    Агент
    +7 (918) Показать номер
    Посмотреть контакты

    Не нашли подходящего объявления?

    Оставьте заявку, и наши риэлторы подберут квартиру в районе Новороссийска

    (0)