 
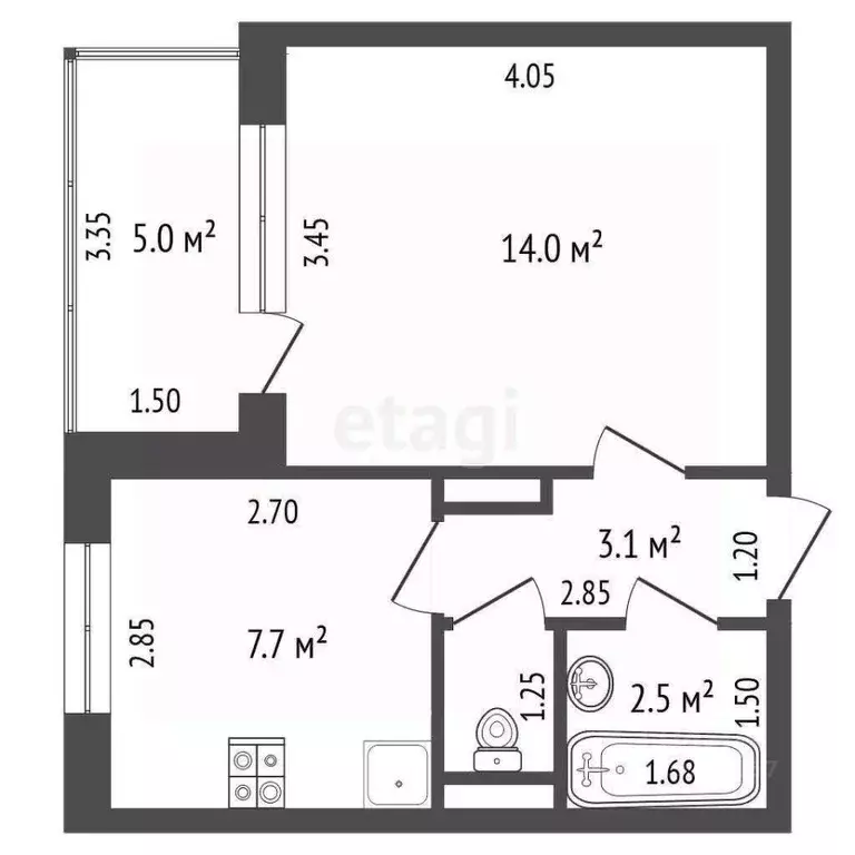
										Код объекта: 1866830. Идеальное жильё в Новороссийске по выгодной цене Уютная однокомнатная квартира в ЖК Парковый.Эта квартира — отличный выбор для молодых специалистов, студентов, семейных пар. Дизайнерский ремонт позволит вам сразу заселиться и наслаждаться комфортом без дополнительных вложений.Расположение квартиры идеально как для работы, так и для отдыха. В радиусе 1000 метров находятся магазины, аптеки, школы и детские сады. Хорошая транспортная доступность позволит вам быстро добраться до любой точки города, до основных туристических мест: Абрау -Дюрсо, Мысхако, популярных пляжей -Алексино, Суджукская Коса. В квартире есть всё необходимое для комфортной жизни: просторная комната (18 кв. м), кухня (9 кв. м) и балкон. Высота потолков 2,7 метра создаёт ощущение простора и свободы.Не упустите шанс стать обладателем этой замечательной квартиры Звоните нам прямо сейчас, чтобы узнать больше и записаться на просмотр.Мы гарантируем безопасную сделку и юридическую поддержку нашим клиентам. Поможем одобрить ипотеку с сниженной ставкой.
Для того, чтобы купить однокомнатную квартиру по адресу: Новороссийск, Парковая улица, 32к65, позвоните по телефону +7 (953) 074-07-11. Торопитесь! Объявление №30091321742 о продаже однокомнатной квартиры опубликовано 26 октября 2025.
 
								 
											
                                                                         
											
                                                                         
											
                                                                         
											
                                                                         
											
                                                                        Оставьте заявку, и наши риэлторы подберут квартиру в районе Новороссийска
