6 635 760 Р 83 640 $ или 71 400

Информация о квартире

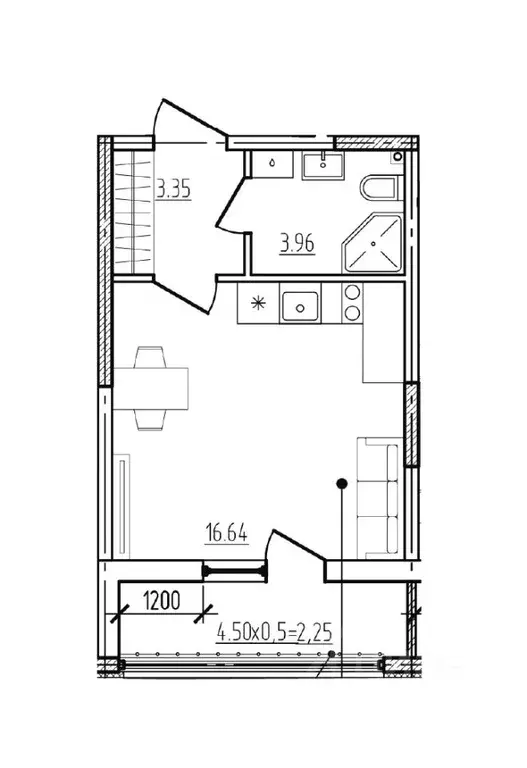
25 м2
Площадь
16 м2
Жилая
студия
Комнат
5
Этаж
9
Этажность
Развернуть
Агент
+7 (958) 618-47-67
Начать чат с агентом

Студия Краснодарский край, Новороссийск Моренуар жилой комплекс (25.72 ...

ЖК Моренуар — это новый уровень жизни в Новороссийске: современная архитектура, вдохновлённая морем, продуманный комфорт и высокая инвестиционная привлекательность. Эстетика курортной жизни в городе Престижное местоположение.Комплекс расположен в южном районе Новороссийска, по адресу ул. Котанова 9. Близость к Чёрному морю — морские бризы, панорамные виды на горы и лёгкий доступ к пляжу. Высокое качество строительства.Монолитно-каркасная технология строительства гарантирует надёжность, отличную звукоизоляцию и энергоэффективность. Вентилируемый фасад из композитных панелей, благородных коричневого и бежевого оттенков, придаёт комплексу респектабельный внешний вид и обеспечивает долговечность конструкции.Высота потолков варьируется от 2,87 м до 6,4 м. На верхних этажах расположены видовые квартиры с просторными террасами, откуда открываются панорамные виды на город и море.Внутренне пространство.Дизайнерские холлы с современным оформлением подчёркивают статус жилого комплекса. Входная группа расположена на уровне земли для безопасности и комфорта жителей. Внутри вас ждёт красивая зона ожидания, места для хранения и колясочные. Лифты опускаются в подземный паркинг, обеспечивая удобный доступ к автомобилям в любую погоду. Комплексное видеонаблюдение внутри и снаружи жилого комплекса.Инфраструктура.На территории комплекса расположены 2 школы, 4 детских сада, поликлиника и специализированные студии для развития детей. Спортивные и детские площадки, места отдыха для жителей разных возрастов. На первых этажах комплекса разместятся квадратных метров коммерческих помещений — магазины, кафе и сервисные центры в шаговой доступности.Варианты отделки.Предчистовая отделка в формате White Box. Это оптимальное решение для тех, кто хочет самостоятельно выбрать финишные материалы и воплотить в жизнь свои дизайнерские идеи.Квартиры с ремонтом - идеальное решение для тех, кто ценит своё время и хочет заехать сразу.Условия приобретения.Ипотека от ведущих банков.Льготные программы.Рассрочка от застройщика.Покупка для инвестиций. К моменту сдачи объекта стоимость вырастает — чистая прибыль без риска.Забронируйте квартиру сейчас и зафиксируйте цену на старте — это ваше преимущество на растущем рынке Новороссийска.

Читать полностью
    Позвонить Написать
    6 635 760 Р83 640 $ или 71 400
    Агент
    +7 (958) 618-47-67
    Начать чат с агентом
    Похожие предложения в Новороссийске
    Студия Краснодарский край, Новороссийск Моренуар жилой комплекс (25.72 ... - Фото 1
    студия, общая площадь 25м², жилая 16м²

    ЖК Моренуар — это новый уровень жизни в Новороссийске: современная архитектура, вдохновлённая морем, продуманный комфорт и высокая инвестиционная привлекательность. Эстетика курортной жизни в городе Престижное местоположение.Комплекс расположен в южном...
    • 25 м²
    • студия-ком
    • 3/9 эт.
    6 584 320 Р
    Агент
    +7 (958) Показать номер
    Посмотреть контакты
    Студия Краснодарский край, Новороссийск Моренуар жилой комплекс (25.72 ... - Фото 1
    студия, общая площадь 25м², жилая 16м²

    ЖК Моренуар — это новый уровень жизни в Новороссийске: современная архитектура, вдохновлённая морем, продуманный комфорт и высокая инвестиционная привлекательность. Эстетика курортной жизни в городе Престижное местоположение.Комплекс расположен в южном...
    • 25 м²
    • студия-ком
    • 6/9 эт.
    6 661 480 Р
    Агент
    +7 (958) Показать номер
    Посмотреть контакты
    Студия Краснодарский край, Новороссийск Моренуар жилой комплекс (25.72 ... - Фото 1
    Студия Краснодарский край, Новороссийск Моренуар жилой комплекс (25.72 ... - Фото 2
    студия, общая площадь 25м², жилая 16м²

    ЖК Моренуар — это новый уровень жизни в Новороссийске: современная архитектура, вдохновлённая морем, продуманный комфорт и высокая инвестиционная привлекательность. Эстетика курортной жизни в городе Престижное местоположение.Комплекс расположен в южном...
    • 25 м²
    • студия-ком
    • 7/9 эт.
    6 687 200 Р
    Агент
    +7 (958) Показать номер
    Посмотреть контакты
    Студия Краснодарский край, Новороссийск Моренуар жилой комплекс (26.2 ... - Фото 1
    Студия Краснодарский край, Новороссийск Моренуар жилой комплекс (26.2 ... - Фото 2
    студия, общая площадь 26м², жилая 16м²

    ЖК Моренуар — это новый уровень жизни в Новороссийске: современная архитектура, вдохновлённая морем, продуманный комфорт и высокая инвестиционная привлекательность. Эстетика курортной жизни в городе Престижное местоположение.Комплекс расположен в южном...
    • 26 м²
    • студия-ком
    • 2/9 эт.
    6 681 000 Р
    Агент
    +7 (958) Показать номер
    Посмотреть контакты
    Студия Краснодарский край, Новороссийск Моренуар жилой комплекс (25.72 ... - Фото 1
    Студия Краснодарский край, Новороссийск Моренуар жилой комплекс (25.72 ... - Фото 2
    студия, общая площадь 25м², жилая 16м²

    ЖК Моренуар — это новый уровень жизни в Новороссийске: современная архитектура, вдохновлённая морем, продуманный комфорт и высокая инвестиционная привлекательность. Эстетика курортной жизни в городе Престижное местоположение.Комплекс расположен в южном...
    • 25 м²
    • студия-ком
    • 5/9 эт.
    6 635 760 Р
    Агент
    +7 (958) Показать номер
    Посмотреть контакты

    Не нашли подходящего объявления?

    Оставьте заявку, и наши риэлторы подберут квартиру в новостройке в районе Новороссийска

    (0)