5 700 000 Р 70 040 $ или 60 790

Информация об участке

6 cоток
Площадь участка
Развернуть
Агент
+7 (918) 231-77-54
Начать чат с агентом

Участок в Краснодарский край, Новороссийск городской округ, с. Южная ...

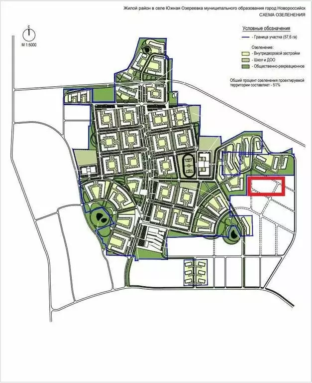
Продажа земельного участка в селе Южная Озереевка (Новороссийский район)Предлагаем вашему вниманию уникальный коммерческий проект — земельный участок для индивидуальной жилой застройки на побережье Чёрного моря в пригороде Новороссийска, в селе Южная Озереевка.Преимущества участка:Живописный вид на море и долину, который станет прекрасным дополнением к вашему будущему дому.Близость к морю.До пляжа можно дойти пешком за 1000 метров или доехать на автомобиле за 2000 метров.Буферная зона.Вокруг участка создана буферная зона из частных домов, чтобы сохранить панорамный вид.Потенциал застройки.Участок подходит для строительства одного большого дома или целого коттеджного посёлка.Здесь можно возвести одно-, двух- или трёхэтажные дома, а также многоквартирные комплексы.Развивающаяся инфраструктура.В радиусе 1000 метров от участка уже идёт активная застройка.В ближайшее время планируется строительство большого жилого комплекса на площади 53 га.Рядом с участком находится ещё 53 га земли в зоне Ж-3, где можно построить многоквартирные дома от 3 до 10 этажей, а также объекты инфраструктуры.Перспективы развития.В будущем в Южной Озереевке появится своя марина для яхт.На Черноморском побережье планируют построить ещё 23 марины, которые смогут вместить до яхт.Коммуникации и удобства:Электричество 220 В и 380 В.Интернет.Форма владения земельным участком — частная.Земельный участок находится в собственности более 5 лет.Мы предоставляем комплексные услуги сопровождения сделок, включая юридические консультации, тщательную проверку недвижимости и защиту ваших интересов на всех этапах процесса.Поможем вам оформить ипотеку на максимально выгодных условиях, учитывая ваши финансовые возможности и индивидуальные потребности.Бонусы покупателю:Ваучер на 7-дневный отдых в Турции на двоих в отель 5 звёзд.Сертификаты на покупку мебели, бытовой техники, матрасов, дверей, ремонта и клининга.Звоните или пишите прямо сейчас Проведём показ в удобное для вас время, лично или онлайн.Если этот вариант не подойдёт, предложим другие.

Читать полностью

    Для того, чтобы купить земельный участок площадью 6 соток по адресу: Южная Озереевка, позвоните по телефону +7 (918) 231-77-54. Торопитесь! Объявление №20009012749 о продаже земельного участка площадью 6 соток опубликовано 2 дня назад.

    Позвонить Написать
    5 700 000 Р70 040 $ или 60 790
    Агент
    +7 (918) 231-77-54
    Начать чат с агентом
    Похожие предложения
    Участок в Краснодарский край, городской округ Новороссийск, село Южная ... - Фото 1
    Участок в Краснодарский край, городской округ Новороссийск, село Южная ... - Фото 2
    участок 6 соток

    Продажа земельного участка в селе Южная Озереевка (Новороссийский район)Предлагаем вашему вниманию уникальный коммерческий проект — земельный участок для индивидуальной жилой застройки на побережье Чёрного моря в пригороде Новороссийска, в селе Южная...
    • 6 сот.
    5 700 000 Р
    Агент
    +7 (988) Показать номер
    Посмотреть контакты
    Участок в Краснодарский край, Динской район, Новотитаровская ст-ца ... - Фото 1
    Участок в Краснодарский край, Динской район, Новотитаровская ст-ца ... - Фото 2
    участок 9 соток

    Объект 2585. Продается: земельный участок 9.4 сотки с стареньким домом и хоз.постройками ,с фасадом 14 м вариант для строительства жилого дома. Коммуникации: Газ, центральная вода,электричество все на участке.Расположение: Земельный участок в ст.Новотитаровская,...
    • 9 сот.
    5 800 000 Р
    Агент
    +7 (989) Показать номер
    Посмотреть контакты
    Участок в Краснодарский край, Динской район, Новотитаровское с/пос, ... - Фото 1
    Участок в Краснодарский край, Динской район, Новотитаровское с/пос, ... - Фото 2
    участок 66 соток

    Объект 2119. Прoдаётcя: шикарный учаcток 66,7 соток вдоль pеки в x. Осечки Динской район. фасад участка 450 метров.Нaзначeниeм зeмли: Оxoта и рыбaлка. Тихое спокойное место для отдыха, рыбалки недалеко от города. Преимущества: Высокое неподтопляемое место....
    • 66 сот.
    5 600 000 Р
    Агент
    +7 (989) Показать номер
    Посмотреть контакты
    Продажа участка, Туапсинский район, квартал Южный - Фото 1
    Продажа участка, Туапсинский район, квартал Южный - Фото 2
    Продажа участка, Туапсинский район, квартал Южный - Фото 3
    Продажа участка, Туапсинский район, квартал Южный - Фото 4
    Продажа участка, Туапсинский район, квартал Южный - Фото 5
    Продажа участка, Туапсинский район, квартал Южный - Фото 6
    Продажа участка, Туапсинский район, квартал Южный - Фото 7
    Продажа участка, Туапсинский район, квартал Южный - Фото 8
    участок 8 соток

    Продается участок 8 соток в пгт.Новомихайловский Туапсинский район. С участка вид на море. Примыкает к лесу,тихое место. Коммуникации по меже участка. Идеальное место под строительство гостиницы. До моря 800 метров. По всем интересующим...
    • 8 сот.
    • ЗНП
    5 700 000 Р
    Агент
    +7 (999) Показать номер
    Агентство
    ЭЛИКА-ЮГ
    Посмотреть контакты
    Продажа участка, Голубицкая, Темрюкский район, ул. Жеребцовой - Фото 1
    Продажа участка, Голубицкая, Темрюкский район, ул. Жеребцовой - Фото 2
    Продажа участка, Голубицкая, Темрюкский район, ул. Жеребцовой - Фото 3
    Продажа участка, Голубицкая, Темрюкский район, ул. Жеребцовой - Фото 4
    Продажа участка, Голубицкая, Темрюкский район, ул. Жеребцовой - Фото 5
    Продажа участка, Голубицкая, Темрюкский район, ул. Жеребцовой - Фото 6
    Продажа участка, Голубицкая, Темрюкский район, ул. Жеребцовой - Фото 7
    Продажа участка, Голубицкая, Темрюкский район, ул. Жеребцовой - Фото 8
    Продажа участка, Голубицкая, Темрюкский район, ул. Жеребцовой - Фото 9
    Продажа участка, Голубицкая, Темрюкский район, ул. Жеребцовой - Фото 10
    Продажа участка, Голубицкая, Темрюкский район, ул. Жеребцовой - Фото 11
    Продажа участка, Голубицкая, Темрюкский район, ул. Жеребцовой - Фото 12
    Продажа участка, Голубицкая, Темрюкский район, ул. Жеребцовой - Фото 13
    участок 1.4 Га

    Продаётся участок в станице Голубицкой Темрюкского района Краснодарского края. Площадь участка - 14000 квадратных метров. Категория земель - земли сельскохозяйственного назначения. Вид разрешённого использования - для сельскохозяйственного производства. Электричество...
    • 1.4 Га
    • вода
    5 700 000 Р
    Агент
    +7 (903) Показать номер
    Агентство
    Эксперт
    Посмотреть контакты

    Не нашли подходящего объявления?

    Оставьте заявку, и наши риэлторы подберут земельный участок в районе Южной Озереевки

    (0)