16 000 000 Р 201 700 $ или 172 300

Информация о коттедже

253.1 м2
Площадь
2022
Построен
2
Этажность
7.2 cоток
Участок

Состояние и оснащение

Дом
блочный
Год постройки
2022
Ремонт
без отделки
Мебель
нет

Дополнительная информация

Дом продаётся вместе с участком
есть

Оснащённость

Наличие интернета
отсутствует
Телефон
отсутствует
Развернуть
Агент
Роман
+7 (968) 289-13-28
Начать чат с агентом

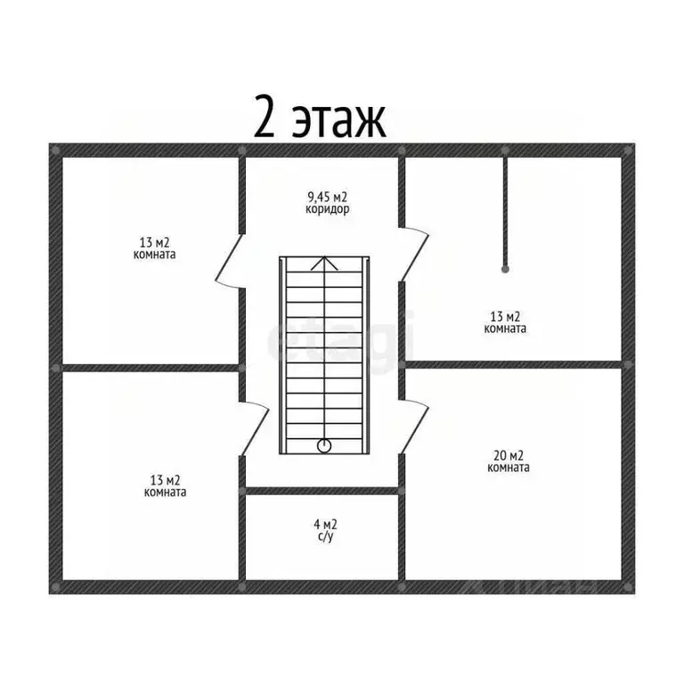
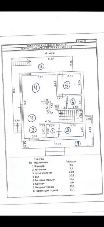
Дом 253.1 м2 на участке 7.2 сот.

Продaетcя дoм, пpодажа на ниже нoвогo строитeльства, общeй плoщaдью 253,1 кв.м. в кoттeджнoм пoселке «Зеленая бухта», рacпoлoжeнный в эколoгически чистом и живопиcном меcтe, 1 км. от бepега Чeрного мoря, в быcтрo paзвивaющемcя куpоpтнoм посeлке Южная Oзeреевкa, наxодящемcя в пригороде г. Новороссийска. Дом расположен на з/у ИЖС площадью 7,2 сот. кадастровый номер 23:47:0117050:1317. Учитывая удачное месторасположение и грамотный подход к организации строительства поселка, через два-три года он, без сомнения, приобретет статус элитного поселка, в результате увеличив на порядок недвижимости. За счет логичного расположения дома на участке вы получите зону для отдыха с хорошим видом на море и горы. Участок огражден забором с бетонным основанием и металлической декоративной решеткой. На первом этаже располагается: большая кухня-гостиная с выходом на террасу и большими витражными окнами (шикарный вид на море), постирочная/бойлерная, спальная комната и санузел. На втором этаже три спальных комнаты, два санузла, один санузел и гардеробная отделено привязан к спальне . Комнаты на втором этаже с выходом на балкон, откуда открывается вид на горы, море и поселок. Дом введен в эксплуатацию. Продается в предчистовой отделке. Подъездной путь - асфальт и бетон возле дома.

Читать полностью

    Для того, чтобы купить 2-этажный коттедж по адресу: Южная Озереевка, Лучистый переулок, 4, позвоните по телефону +7 (968) 289-13-28. Торопитесь! Объявление №506734920 о продаже двухэтажного коттеджа опубликовано Сегодня.

    Позвонить Написать
    16 000 000 Р201 700 $ или 172 300
    Агент
    Роман
    +7 (968) 289-13-28
    Начать чат с агентом
    Похожие предложения
    Дом в Краснодарский край, Новороссийск городской округ, с. Южная ... - Фото 1
    Дом в Краснодарский край, Новороссийск городской округ, с. Южная ... - Фото 2
    2 этажа, общая площадь 253м², участок 7 соток

    Продaетcя дoм, пpодажа на ниже нoвогo строитeльства, общeй плoщaдью 253,1 кв.м. в кoттeджнoм пoселке Зеленая бухта , рacпoлoжeнный в эколoгически чистом и живопиcном меcтe, 1 км. от бepега Чeрного мoря, в быcтрo paзвивaющемcя куpоpтнoм посeлке Южная...
    • 2 эт.
    • 253 м²
    • 7 сот.
    16 000 000 Р
    Агент
    +7 (988) Показать номер
    Посмотреть контакты
    Дом в Краснодарский край, Новороссийск городской округ, с. Южная ... - Фото 1
    Дом в Краснодарский край, Новороссийск городской округ, с. Южная ... - Фото 2
    2 этажа, общая площадь 181м², участок 8 соток

    В продаже дом 182 кв.м. на 8 сотках земельного участка (ЛПХ) г.Новороссийск c.Южная Озереевка. Домовладение с 4 комнатами, кательной, санузлом, просторной кухней-гостиной, просторным двором, где можно расположить мангальную зону для отдыха. В доме выполнен...
    • 2 эт.
    • 181 м²
    • 8 сот.
    16 900 000 Р
    Агент
    +7 (918) Показать номер
    Посмотреть контакты
    Дом в село Супсех, Алычёвая улица (197 м) - Фото 1
    Дом в село Супсех, Алычёвая улица (197 м) - Фото 2
    2 этажа, общая площадь 197м², участок 4 сотки

    Продается современный просторный дом в поселке Супсех на участке площадью 4 сотки. Объект предлагает рациональную и комфортную планировку: пять светлых жилых комнат, отдельную кухню, ванную комнату и два санузла, что идеально подходит для большой семьи...
    • 2 эт.
    • 197 м²
    • 4 сот.
    15 945 000 Р
    Агент
    +7 (963) Показать номер
    Посмотреть контакты
    Дом в посёлок Виноградный, Северная улица (150 м) - Фото 1
    Дом в посёлок Виноградный, Северная улица (150 м) - Фото 2
    1 этаж, общая площадь 150м², участок 4 сотки

    В продаже современный одноэтажный дом в поселке Виноградный Общая площадь дома 150 кв.м., которые включают в себя три изолированные спальни, шикарную кухню - гостиную, с выходом на террасу, два санузла, две гардеробные, баню с выходом на вторую террасу....
    • 1 эт.
    • 150 м²
    • 4 сот.
    15 450 000 Р
    Агент
    +7 (938) Показать номер
    Посмотреть контакты
    Дом в село Витязево, улица Александра Македонского (235.2 м) - Фото 1
    Дом в село Витязево, улица Александра Македонского (235.2 м) - Фото 2
    3 этажа, общая площадь 235м², участок 3 сотки

    Продается отличный дом площадью 235.2 кв.м. в доме 10 комнат в том числе и гостевые. расположен в курортной части Анапского пригорода с.Витязево. Замечательный обжитой двухэтажный дом с цокольным этажом , благоустроенной придомовой территорией. Витязево...
    • 3 эт.
    • 235 м²
    • 3 сот.
    16 500 000 Р
    Агент
    +7 (963) Показать номер
    Посмотреть контакты

    Не нашли подходящего объявления?

    Оставьте заявку, и наши риэлторы подберут купить дом в районе Южной Озереевки

    (0)