297 660 Р 3 690 $ или 3 150

Информация об помещении

1
Этаж

Состояние и оснащение

Количество этажей
16
Развернуть
Агент
+7 (989) 621-82-07
Начать чат с агентом

Торговая площадь в Краснодарский край, Краснодар Красная ул., 176/5 ...

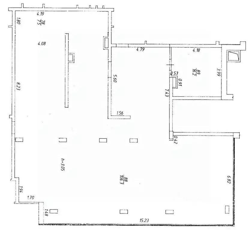
Арт.Внимание Премиальное предложение для Вашего бизнеса в самом центре Краснодара Ищете идеальное место для успешного развития в центре города?Предлагаем в аренду просторное торговое помещение, расположенное по адресу: г. Краснодар, ул. Красная 176/5 Почему это предложение Ваш лучший выбор?Престиж и трафик: Расположение в сердце Краснодара, окружение крупного ЖК гарантируют интенсивный пешеходный поток и узнаваемость Уникальное расположение: Помещение расположено в 5-ом корпусе между культовым ТОРМОСЕРОМ и общим входом в торговые ряды с улицы Красной.Отдельный вход с детской площади Возможность организации входа с внутренней части корпуса Простор для реализации ваших идей: 135,3 м дайте волю своим самым смелым проектам Легкий доступ: Первый этаж обеспечивает максимальную проходимость и удобство для Ваших клиентов Два входа, максимум возможностей: Отдельный презентабельный вход с детской площади для привлечения семейной аудитории, а также возможность организовать вход с внутренней части корпуса для дополнительного потока клиентов Комфорт и стиль: Высокие потолки (2,8 м) создайте неповторимую атмосферу, располагающую к покупкам Энергообеспечение: 5 кВт достаточно для обеспечения бесперебойной работы Вашего бизнеса.Все коммуникации: Центральное отопление гарантирует комфорт для клиентов и сотрудников в любое время года.Забота о клиентах: Парковка с бесплатными 30 минутами и доступной стоимостью далее (уб/час) сделайте посещение вашего магазина максимально комфортным.Выгодные условия:Арендная ставка/м.Коммунальные услуги и эксплуатационный сбор оплачиваются отдельно (344,/кв.м).Воспользуйтесь уникальным предложением льготный период на ремонт до 60 дней всего за /м Финансовая стабильность: Обеспечительный платеж 120 от месячной арендной платы.Важная Информация:Специализация: Помещение не предназначено для общепита, кофеен, цветочных и продуктовых магазинов.Концепция: Приветствуются арендаторы с успешно реализованными проектами.Отправляйте фотографии и презентации Вашего бизнеса Соответствие концепции ТЦ и уникальность ассортимента наши приоритеты Доступность: ПОМЕЩЕНИЕ ОСВОБОЖДАЕТСЯ 30.09.2025 Мы стремимся к долгосрочному и взаимовыгодному сотрудничеству Звоните прямо сейчас, чтобы узнать подробности и договориться о просмотре

Читать полностью
    Позвонить Написать
    297 660 Р3 690 $ или 3 150
    Агент
    +7 (989) 621-82-07
    Начать чат с агентом
    Похожие предложения
    Торговая площадь в Краснодарский край, Краснодар ул. Селезнева, 68А ... - Фото 1
    Торговая площадь в Краснодарский край, Краснодар ул. Селезнева, 68А ... - Фото 2
    Торговое пoмeщениe на первой линии в г. Краснoдаp на ул. Селeзнева Без комиссии со стороны арендатора Характеристики: Общая плoщaдь - 221 м2 Входы - 2 отдeльный вxoд с улицы и со двора Окна - витринные Мокрая точка - 1 санузел Мощность - 30 кВт Коммуникации...
    • 1/1 эт.
    309 000 Р
    Агент
    +7 (988) Показать номер
    Посмотреть контакты
    Торговая площадь в Краснодарский край, Краснодар ул. Имени Героя ... - Фото 1
    Торговая площадь в Краснодарский край, Краснодар ул. Имени Героя ... - Фото 2
    Объект 4299. Сдается помещение, свободного назначения от 227 м2 • С ремонтом• Отдельные входные группы с фасада.• Лестничные марши с ремонтом. • Рядом школа и детский сад. • Район с хорошим трафиком, густо населен.• Помещение подойдет под любой...
    • 2/2 эт.
    295 000 Р
    Агент
    +7 (918) Показать номер
    Посмотреть контакты
    Торговая площадь в Краснодарский край, Краснодар Юбилейный мкр, бул. ... - Фото 1
    Торговая площадь в Краснодарский край, Краснодар Юбилейный мкр, бул. ... - Фото 2
    ТОП ЛОКАЦИЯ г. Краснодар, Платановый бульвар, 3/1* Площадь помещения: 119,6 м* Земельный участок: 175 м (в собственности)* Этаж: 1* Конструкция: кирпич/монолит* Высота потолка: 4,2 м* Электроснабжение: 15 кВт* Отопление, вода, канализация: центральные*...
    • 1/1 эт.
    300 000 Р
    Агент
    +7 (918) Показать номер
    Посмотреть контакты
    Торговая площадь в Краснодарский край, Краснодар Российская ул., 72/5Б ... - Фото 1
    Торговая площадь в Краснодарский край, Краснодар Российская ул., 72/5Б ... - Фото 2
    Сдаю торговое помещение общей площадью 230 мквОт Собственника. Без комиссии- Первая линия- Первый этаж- Прикубанский округ- Удобный подъезд- Высокой автомобильный трафик- Парковка на улице- ЖК Симфония- Витражное остекление - Электричество 40 Квт- Отлично...
    • 1/24 эт.
    300 000 Р
    Агент
    +7 (918) Показать номер
    Посмотреть контакты
    Торговая площадь (315 м) - Фото 1
    Торговая площадь (315 м) - Фото 2
    Арт.Сдается в аренду торговое помещение 315 м на 1-й линии ул. МосковскойФасад на проезжую часть с высоким трафиком. Отличная видимость и проходимость.Свободная планировкаХарактеристики помещения:Площадь: 315 м, 1-й этажВысота потолка 3,85 мПанорамные...
    • 1/2 эт.
    299 250 Р
    Агент
    +7 (962) Показать номер
    Посмотреть контакты

    Не нашли подходящего объявления?

    Оставьте заявку, и наши риэлторы подберут торговое помещение в районе Краснодара

    (0)