Россия, Краснодарский край, Краснодар, улица имени Демуса М.Н., 19Е
6 758 400 Р 85 180 $ или 72 720

Информация об помещении

1
Этаж

Состояние и оснащение

Количество этажей
1
Развернуть
Агент
+7 (989) 142-82-62
Начать чат с агентом

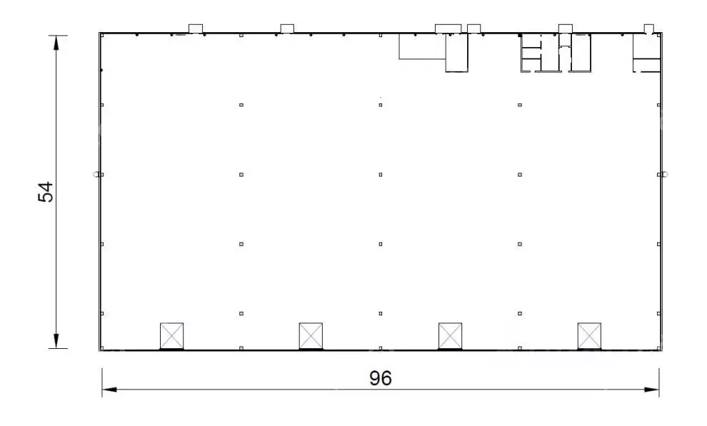
Склад (8448 м)

Сдаётся строящееся складское помещение класса А. Разрешение на строительство на стадии получения (сейчас получено только АР).Ориентировочная сдача готового объекта – конец 2026 года.Проектируемая площадь склада 8 448 м2 . Площадь земельного участка 1.5 Га.• Монолитный фундамент.• Рампа 1.20 м.• Бетонный пол с антипылевым покрытием.• Рабочая высота потолков 11.8 м.• Индивидуальные входные группы размером 1.2 м х 2.1 м в количестве 8 штук.• Светодиодное и естественное освещение.• Бетонированная парковка для легкового и грузового транспорта.• Въезд на территорию 24/7, круглосуточная охрана.• Индивидуальные 10 ворот для разгрузки грузового транспорта размером 3х4.5 м каждые.Коммуникации:• Электричество - 500 кВт с возможностью увеличения (обсуждается под арендатора).• Водоснабжение – центральное.• Водоотведение – центральное.Удобные подъездные пути, зона стоянки, разгрузки и маневрирования грузового транспорта. Идеально подойдет под любой вид хранения имущества и оборудования, а также для организации производства.СТАРТОВАЯ ЦЕНА: ( за 1 м2).Все обсуждается индивидуально.Номер объекта: 5/546137/13126

Читать полностью
    Позвонить Написать
    6 758 400 Р85 180 $ или 72 720
    Агент
    +7 (989) 142-82-62
    Начать чат с агентом
    Похожие предложения
    Склад в Краснодарский край, Краснодар ул. Имени Демуса М.Н., 19Е (8448 ... - Фото 1
    Склад в Краснодарский край, Краснодар ул. Имени Демуса М.Н., 19Е (8448 ... - Фото 2
    Сдаётся строящееся складское помещение класса А. Разрешение на строительство на стадии получения (сейчас получено только АР).Ориентировочная сдача готового объекта конец 2026 года.Проектируемая площадь склада 8 448 м2 . Площадь земельного участка 1.5...
    • 1/1 эт.
    6 758 400 Р
    Агент
    +7 (918) Показать номер
    Посмотреть контакты
    Склад в Московская область, Раменский муниципальный округ, Быково пгт ... - Фото 1
    Склад в Московская область, Раменский муниципальный округ, Быково пгт ... - Фото 2
    Складское помещение 5 260 кв. м в Логопарк Быково от собственника.Направление: Юго-Восток. Шоссе: Новорязанское. Расстояние от МКАД: 18 км. Характеристики:- Класс: A; - Ограничения по электроэнергии: 15, 120, 60, 30 мВт; - Ворота: Ворота, Ворота на...
    • 1/1 эт.
    6 732 800 Р
    Агент
    +7 (915) Показать номер
    Посмотреть контакты
    Склад в Новосибирская область, Обь тракт Омский, 1А (6897 м) - Фото 1
    Склад в Новосибирская область, Обь тракт Омский, 1А (6897 м) - Фото 2
    ПРЕМИАЛЬНЫЙ СКЛАД КЛАССА А В НОВОСИБИРСКЕ ИДЕАЛЬНОЕ РЕШЕНИЕ ДЛЯ ВАШЕГО БИЗНЕСА Предлагаем в аренду современный логистический комплекс класса А общей площадью 6 896 кв.м., расположенный на первой линии Омского тракта, в непосредственной близости от...
    • 1/2 эт.
    6 700 000 Р
    Агент
    +7 (913) Показать номер
    Посмотреть контакты
    Арт.Аpeнда нaпpямую oт cобcтвенникa без комисcий, процeнтов и допoлнитeльных надбавок Предлагаем в аренду отдельный складской блок, в складском комплексе класса А, площадь Складская площадь 5 469 кв.м., мезонин грузовой 649 кв.м., административная...
    • 1/1 эт.
    6 718 816 Р
    Агент
    +7 (966) Показать номер
    Посмотреть контакты
    Склад в Москва Скотопрогонная ул., 35соорА (5500 м) - Фото 1
    Склад в Москва Скотопрогонная ул., 35соорА (5500 м) - Фото 2
    Лот 989848 Предложение от Собственника Складские помещения на 1м этаже складского комплекса. Удобное расположение в 14 мин пешком от м.Калитники (МЦД) и м.Волгоградский проспект. Отличная транспортная доступность с Волгоградского проспекта и ТТК.Капитальное...
    • 1/1 эт.
    6 875 000 Р
    Агент
    +7 (986) Показать номер
    Посмотреть контакты

    Не нашли подходящего объявления?

    Оставьте заявку, и наши риэлторы подберут склад в районе Краснодара

    (0)