Россия, Краснодарский край, Краснодар, ул. Имени Тургенева, 76
400 000 Р 5 260 $ или 4 400

Информация об помещении

2
Этаж

Состояние и оснащение

Количество этажей
5
Развернуть
Агент
+7 (918) 010-19-27
Начать чат с агентом

Помещение свободного назначения в Краснодарский край, Краснодар ул. ...

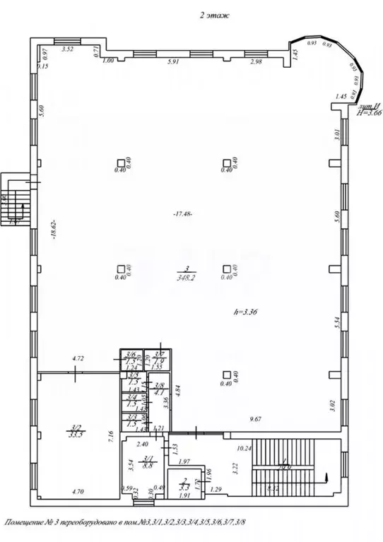
Сдаю на 2м этаже офисно/торговое помещение свободной планировки (Опенспейс) 435 м, на пересечение ул. Тургенева/ул. РылееваОт Собственника. Без комиссии- Локация:Район ФМР, первая линия, помещение отлично просматривается с ул. Тургенева, интенсивный трафик пешеходный и авто, густонаселенный развитый деловой район. - Преимущества:Помещение свободной планировки, лифт, выход запасной, на 1 этаже магазин 5ка. - Характеристики:с ремонтом, электричество 50 кВт, коммуникации центральные, высота потолков 3.3 м- Отлично подходит под:Офис компании или представительство для организации, кулл центр, офис продаж, торговую зону с зонированием под себя. От Собственника. Без комиссииПо всем вопросам можете обращаться к вашему персональному менеджеру:Иван Самойленко - консультант по коммерческой недвижимости.Большая база коммерческой недвижимости.Подписывайтесь на наш профиль, чтобы узнавать о новых локациях первыми Добавьте это объявление в избранное - чтобы не потерять.

Читать полностью
    Позвонить Написать
    400 000 Р5 260 $ или 4 400
    Агент
    +7 (918) 010-19-27
    Начать чат с агентом
    Похожие предложения
    Помещение свободного назначения в Краснодарский край, Краснодар ... - Фото 1
    Помещение свободного назначения в Краснодарский край, Краснодар ... - Фото 2
    Арт.ЖК 24 жилой комплекс класса Комфорт плюс , который находится в центре Краснодара по ул. Железнодорожная дом 24. Комплекс расположен в районе с очень удобной транспортной развязкой.В 4 минутах езды находится железнодорожный вокзал.Очень оживлённое...
    • 2/24 эт.
    398 000 Р
    Агент
    +7 (989) Показать номер
    Посмотреть контакты
    Помещение свободного назначения в Краснодарский край, Краснодар ул. ... - Фото 1
    Помещение свободного назначения в Краснодарский край, Краснодар ул. ... - Фото 2
    Сдается 470м2, цоколь с окнами•Помещение с ремонтом. Свой отдельный вход. Опен спейс•Грузовой лиф с улицы, зона погрузки/загрузки•Высота потолков: 2,7 м.•Мощность электричества - 15 кВт, возможно увеличение•Санузел, мокрая точка•Парковка городская•Интенсивный...
    • -1/5 эт.
    407 700 Р
    Агент
    +7 (918) Показать номер
    Посмотреть контакты
    Помещение свободного назначения в Краснодарский край, Краснодар ... - Фото 1
    Помещение свободного назначения в Краснодарский край, Краснодар ... - Фото 2
    Сдается в аренду нежилое помещение в цокольном этаже площадью 333 м2. Расположено на первой линии. Активный автомобильный и пешеходный трафик. Отлично просматривается со всех сторон.Свободная планировкаКоммуникации центральные.Две входные группы.Высота...
    • -1/6 эт.
    400 000 Р
    Агент
    +7 (918) Показать номер
    Посмотреть контакты
    Помещение свободного назначения в Краснодарский край, Краснодар ... - Фото 1
    Помещение свободного назначения в Краснодарский край, Краснодар ... - Фото 2
    Вашему вниманию предлагается объект в аренду по ул. Уральская, одной из самых оживленных улиц с очень высоким трафиком.Объект расположен в центре большого жилого массива, а именно в окружении следующих жилых комплексов: Фамилия , Патрики , Режиссер...
    • 1/1 эт.
    400 000 Р
    Агент
    +7 (918) Показать номер
    Посмотреть контакты
    Помещение свободного назначения в Краснодарский край, Краснодар ул. 9 ... - Фото 1
    Помещение свободного назначения в Краснодарский край, Краснодар ул. 9 ... - Фото 2
    Сдается в аренду помещение свободного назначения на гипер-трафике.Площадь 500 кв.м.3 этаж отдельно стоящего коммерческого здания.1 линия, пepесечение ул. Северная и ул ШкoльнаяВитринное остекление фасада.Большая рекламная поверхность.Кабинетная плaниpoвкa...
    • 3/3 эт.
    400 000 Р
    Агент
    +7 (918) Показать номер
    Посмотреть контакты

    Не нашли подходящего объявления?

    Оставьте заявку, и наши риэлторы подберут псн в районе Краснодара

    (0)