Россия, Краснодарский край, Краснодар, ул. Дмитрия Есаулко, 11
480 000 Р 6 140 $ или 5 210

Информация об помещении

3
Этаж

Состояние и оснащение

Количество этажей
3
Развернуть
Агент
+7 (918) 010-19-27
Начать чат с агентом

Помещение свободного назначения в Краснодарский край, Краснодар ул. ...

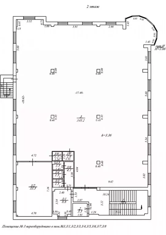
Сдаю торговые помещения на 2 и 3 этаже по 600 м этаж 1 линия угловое здание на въезде в ЖК Самолет с высоким трафикомОт Собственника. Без комиссии- Расположение: Западный обход р-н, первая линия, угловое здание на въезде, рядом остановка общественного транспорта, густозаселенный мкр, с высоким пешеходным трафиком, удобный подъезд, на первом этаже фаст-фуд- Преимущества: 2 и 3 этаж по 600 м, парковка на улице, витражные окна, возможность размещения рекламной вывески, возможность брендирования входной группы- Характеристики: с ремонтом, лифт для 2 и 3 этажа, высота потолков 4 м, светлый просторный зал правильной формы, свободная планировка, все коммуникации центральные, электричество 50 кВт- Отлично подходит под офис, фитнес центра, салона красоты, шоу-рума, магазина, услуги, медицину, учебный центр, столовая, хостел, детский центр, коворкингОт Собственника. Без комиссииПо всем вопросам можете обращаться к вашему персональному менеджеру:Иван Самойленко - консультант по коммерческой недвижимости.Большая база коммерческой недвижимости.Подписывайтесь на наш профиль, чтобы узнавать о новых локациях первыми Добавьте это объявление в избранное - чтобы не потерять.

Читать полностью
    Позвонить Написать
    480 000 Р6 140 $ или 5 210
    Агент
    +7 (918) 010-19-27
    Начать чат с агентом
    Похожие предложения
    Помещение свободного назначения в Краснодарский край, Краснодар ул. ... - Фото 1
    Помещение свободного назначения в Краснодарский край, Краснодар ул. ... - Фото 2
    Сдаю на 2м этаже офисно/торговое помещение свободной планировки (Опенспейс) 435 м, на пересечение ул. Тургенева/ул. РылееваОт Собственника. Без комиссии- Локация:Район ФМР, первая линия, помещение отлично просматривается с ул. Тургенева, интенсивный трафик...
    • 2/5 эт.
    478 500 Р
    Агент
    +7 (918) Показать номер
    Посмотреть контакты
    Помещение свободного назначения в Краснодарский край, Краснодар 1 Мая ... - Фото 1
    Помещение свободного назначения в Краснодарский край, Краснодар 1 Мая ... - Фото 2
    Сдаю помещение свободного назначения общей площадью 700 м От Собственника. Без комиссии- Прикубанский округ, район плотной жилой застройки- Второй этаж в торговом центре- На первом этаже федеральный сетевик Чижик - Удобный подъезд- Парковка на улице перед...
    • 2/2 эт.
    490 000 Р
    Агент
    +7 (918) Показать номер
    Посмотреть контакты
    Помещение свободного назначения в Татарстан, Набережные Челны ул. ... - Фото 1
    Помещение свободного назначения в Татарстан, Набережные Челны ул. ... - Фото 2
    От собственника Без комиссии Сдаются помещения свободного назначения2 этажа, при необходимости можно организовать 1 этаж вместо парковки1 этаж 698 кв.м.2 этаж 709 кв.м.Два отдельных входа Доступ 24/7Помещение со свободной планировкой без перегородокВысота...
    • 1/3 эт.
    488 600 Р
    Агент
    +7 (917) Показать номер
    Посмотреть контакты
    Помещение свободного назначения в Москва Студеный проезд, 7Б (256 м) - Фото 1
    Помещение свободного назначения в Москва Студеный проезд, 7Б (256 м) - Фото 2
    Площадь в аренду 256 м2 на 5 этаже автоцентра с хорошим расположением - отличный выбор Много плюсов: рядом метро Медведково, МКАД, рядом со зданием крытая парковка удобный заезд, возможна перепланировка, высота потолков 3,2-3.4 м, высота въезда 2,2 м,...
    • 5/5 эт.
    486 400 Р
    Агент
    +7 (916) Показать номер
    Посмотреть контакты
    Помещение свободного назначения в Санкт-Петербург ул. Опочинина, 29 ... - Фото 1
    Помещение свободного назначения в Санкт-Петербург ул. Опочинина, 29 ... - Фото 2
    ID: 832126Сдается в аренду коммерческое помещение в Василеостровскомайоне . Расположено на углу улицы Опочинина и Шкиперского протока. Район густо населен, отличный пешеходный трафик. Общая сдаваемая площадь 254,4 метра. Возможно сдача в аренду части...
    • 1/7 эт.
    490 000 Р
    Агент
    +7 (981) Показать номер
    Посмотреть контакты

    Не нашли подходящего объявления?

    Оставьте заявку, и наши риэлторы подберут псн в районе Краснодара

    (0)