160 000 Р 1 970 $ или 1 710

Информация об помещении

1
Этаж

Состояние и оснащение

Количество этажей
1
Развернуть
Агент
+7 (918) 010-19-27
Начать чат с агентом

Помещение свободного назначения в Краснодарский край, Краснодар ул. ...

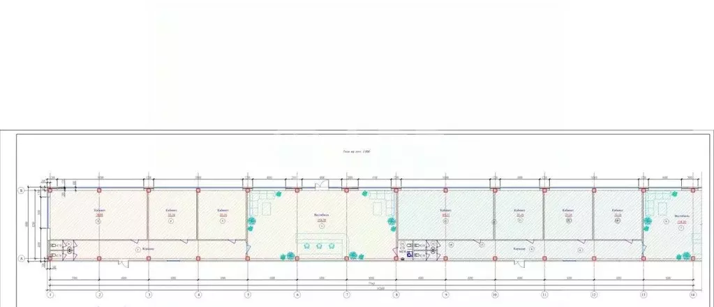
Сдаю торговое помещение общей площадью 80 кв.м.От Собственника. Без комиссии.- 1 линия- 1 этаж- Район высокой плотности застройки- Быстроразвивающийся район- Высокая транспортная доступность- Удобный подъезд- Своя парковка- Отдельно стоящее здание- Витражное остекление- Запасный выход- Помещение правильной формы- Высота потолков 4 м- Возможность перепланировки- Центральные коммуникации- Коммунальные услуги оплачиваются отдельно- Возможно разделение на меньшие площадиОт Собственника. Без комиссии.По всем вопросам можете обращаться к вашему персональному менеджеру:Олеся Перевалова - консультант по коммерческой недвижимости.Большая база коммерческой недвижимости.От Собственника. Без комиссии Агентство регионального развития Коммерческая недвижимость Краснодара.От Собственника. Без комиссииПодписывайтесь на наш профиль, чтобы узнавать о новых локациях первыми Добавьте это объявление в избранное - чтобы не потерять.

Читать полностью
    Позвонить Написать
    160 000 Р1 970 $ или 1 710
    Агент
    +7 (918) 010-19-27
    Начать чат с агентом
    Похожие предложения
    Помещение свободного назначения в Краснодарский край, Краснодар ул. ... - Фото 1
    Помещение свободного назначения в Краснодарский край, Краснодар ул. ... - Фото 2
    Сдаю торговое помещение от 55 до 1000 мОт Собственника. Без комиссии- Прикубанский район- Первая линия- Удобный подъезд- Высокий пешеходный и автомобильный трафик- Большая собственная парковка- Подойдет под любой вид коммерческой деятельности (магазин,...
    • 1/1 эт.
    165 000 Р
    Агент
    +7 (918) Показать номер
    Посмотреть контакты
    Помещение свободного назначения в Краснодарский край, Краснодар ... - Фото 1
    Помещение свободного назначения в Краснодарский край, Краснодар ... - Фото 2
    Сдаю отдельно-стоящее здание общей площадью 160 мОт Собственника. Без комиссии- Карасунский округ- 3 этажа - Рядом вся необходимая инфраструктура- Парковка перед зданием- Две входные группы- Доступ 24/7- Фасад и стяжка пола за счет собственника- Коммуникации:...
    • 1/3 эт.
    150 000 Р
    Агент
    +7 (918) Показать номер
    Посмотреть контакты
    Помещение свободного назначения в Краснодарский край, Краснодар ... - Фото 1
    Помещение свободного назначения в Краснодарский край, Краснодар ... - Фото 2
    Сдаю помещение свободного назначения общей площадью 200 кв.мОт Собственника. Без комиссии- Первая линия- Район ЖК Симфонии- Отдельно стоящее 3-х этажное здание- Активный пеший и автомобильный трафик- Удобный подъезд- Парковка перед зданием- Сделан ремонт...
    • 2/3 эт.
    150 000 Р
    Агент
    +7 (918) Показать номер
    Посмотреть контакты
    Помещение свободного назначения в Краснодарский край, Краснодар ул. ... - Фото 1
    Помещение свободного назначения в Краснодарский край, Краснодар ул. ... - Фото 2
    Сдаю помещение свободного назначения 150 кв.мОт Собственника. Без комиссии- 1 линия- 1 этаж- Район высокой плотности застройки- Быстроразвивающийся район- Высокая транспортная доступность- Удобный подъезд- Своя парковка- Отдельно стоящее здание- Витражное...
    • 1/1 эт.
    150 000 Р
    Агент
    +7 (918) Показать номер
    Посмотреть контакты
    Помещение свободного назначения в Краснодарский край, Краснодар ... - Фото 1
    Помещение свободного назначения в Краснодарский край, Краснодар ... - Фото 2
    Сдаю помещение свободного назначения общей площадью 50 кв.м.От Собственника. Без комиссии- ЖК Сердце- Первая линия- Первый этаж- Выход на ул. Школьная- Удобный подъезд- Район высокой плотности застройки- Очень высокий трафик- Парковка на улице и в здании-...
    • 1/21 эт.
    150 000 Р
    Агент
    +7 (918) Показать номер
    Посмотреть контакты

    Не нашли подходящего объявления?

    Оставьте заявку, и наши риэлторы подберут псн в районе Краснодара

    (0)