144 000 Р 1 860 $ или 1 580

Информация об помещении

цоколь
Этаж

Состояние и оснащение

Количество этажей
2
Развернуть
Агент
+7 (918) 010-19-27
Начать чат с агентом

Помещение свободного назначения в Краснодарский край, Краснодар ул. ...

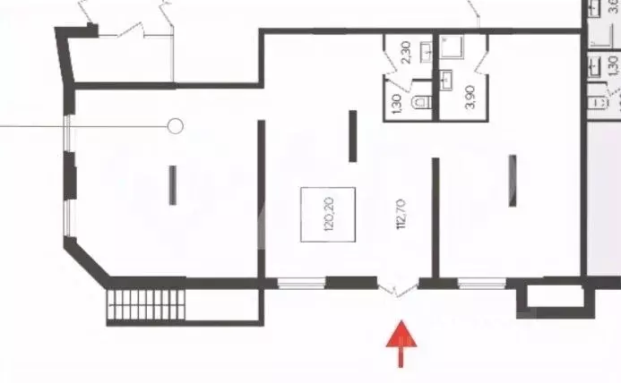
Сдаю цокольное помещение, 360 м в капитальном здании в районе очень высокой деловой активностиОт Собственника. Без комиссииРАСПОЛОЖЕНИЕ: Первая линия. Прикубанский район. Быстрый выезд на на ул. 3 Трудовая, Ростовское и Ейское шоссе, выезд на М-4 ДОН. Выезд к деловому центру и к основным магистралям городаПРЕИМУЩЕСТВА: Беспробочное передвижение, отличная транспортная доступность. Закрытая территория производственной базы, есть офисные помещения с евроремонтом. Широкий заезд для фур. Большая собственная парковкаХАРАКТЕРИСТИКА- Подземный (цокольный) этаж в капитальном здании- Подойдет под тихое производство, хранение, под любой разрешенный вид деятельности- Сухое, теплое, проветриваемое помещение- Высота потолка до ригеля 2,30 м, до потолка 2,60 м- Возможна установка грузового лифта- Все коммуникации центральные- Охраняемая огражденная территория.- 15 квт электричества с возможностью увеличенияОт Собственника. Без комиссииПо всем вопросам можете обращаться к вашему персональному менеджеру:Айгуль Воробьева - консультант по коммерческой недвижимости.Большая база коммерческой недвижимости.От Собственника. Без комиссии Агентство регионального развития Коммерческая недвижимость Краснодара.От Собственника. Без комиссииПодписывайтесь на наш профиль, чтобы узнавать о новых локациях первыми

Читать полностью
    Позвонить Написать
    144 000 Р1 860 $ или 1 580
    Агент
    +7 (918) 010-19-27
    Начать чат с агентом
    Похожие предложения
    Помещение свободного назначения в Краснодарский край, Краснодар ул. ... - Фото 1
    Помещение свободного назначения в Краснодарский край, Краснодар ул. ... - Фото 2
    Сдаю торговое помещение общей площадью 151 кв.мОт Собственника. Без комиссии- Первая линия- Первый этаж- Отдельно стоящее 2-х этажное здание- Район ЖК Образцова- Активный трафик- Рядом остановки общественного транспорта- Удобный подъезд- Большая парковка...
    • 1/2 эт.
    150 000 Р
    Агент
    +7 (918) Показать номер
    Посмотреть контакты
    Помещение свободного назначения в Краснодарский край, Краснодар ... - Фото 1
    Помещение свободного назначения в Краснодарский край, Краснодар ... - Фото 2
    Сдаю нежилое помещение на 1 этаж, 120 м, в центре жилого массиваОт Собственника. Без комиссии- Расположение: Р-н Баскет Холла, высокий трафик, ЖК Зеленодар, густонаселенный жилой район, транспортная доступность, инфраструктура- Преимущества: 1 этаж жилого...
    • 1/16 эт.
    144 000 Р
    Агент
    +7 (918) Показать номер
    Посмотреть контакты
    Помещение свободного назначения в Краснодарский край, Краснодар ... - Фото 1
    Помещение свободного назначения в Краснодарский край, Краснодар ... - Фото 2
    Сдаю помещение свободного назначения площадью 87 мОт Собственника. Без комиссии- Прикубанский округ- Густонаселенный жилой район - Очень высокий пешеходный и авто- трафик- Первый этаж многоэтажного жилого дома- Удобный подъезд- Парковка на улице перед...
    • 1/18 эт.
    150 000 Р
    Агент
    +7 (918) Показать номер
    Посмотреть контакты
    Помещение свободного назначения в Краснодарский край, Краснодар ул. ... - Фото 1
    Помещение свободного назначения в Краснодарский край, Краснодар ул. ... - Фото 2
    Сдаю помещение свободного назначения 150 кв.мОт Собственника. Без комиссии- 1 линия- 1 этаж- Район высокой плотности застройки- Быстроразвивающийся район- Высокая транспортная доступность- Удобный подъезд- Своя парковка- Отдельно стоящее здание- Витражное...
    • 1/1 эт.
    150 000 Р
    Агент
    +7 (918) Показать номер
    Посмотреть контакты
    Помещение свободного назначения в Краснодарский край, Краснодар ... - Фото 1
    Помещение свободного назначения в Краснодарский край, Краснодар ... - Фото 2
    Сдается помещение, 120м2, 1эт, на трафике.•Офисно-торговый центр. Пересечение Кирова/Калинина•Мощность электричества 40кВт, возможно увеличение•Свой санузел. Кондиционирование.•Высота потолков 3,4м•Вход по времени не ограничен•Своя парковка под шлагбаумом•С...
    • 1/3 эт.
    150 000 Р
    Агент
    +7 (918) Показать номер
    Посмотреть контакты

    Не нашли подходящего объявления?

    Оставьте заявку, и наши риэлторы подберут псн в районе Краснодара

    (0)