Россия, Краснодарский край, Краснодар, ул. Анны Ахматовой, 6/1
21 124 800 Р 272 100 $ или 229 600

Информация об помещении

1
Этаж

Состояние и оснащение

Количество этажей
16
Развернуть
Агент
+7 (988) 382-36-32
Начать чат с агентом

Помещение свободного назначения в Краснодарский край, Краснодар ул. ...

В реализации — коммерческие помещения свободного назначения в литере 15 общей площадью 81.5 кв.м. на 1 этаже от застройщика DOGMA в микрорайоне DOGMA PARK от застройщика DOGMA, одного из ведущих девелоперов Краснодарского края. DOGMA PARK — это современный микрорайон комфорт-класса с прогнозируемой численностью населения более 100 000 человек, активно развивающийся с учётом потребностей жителей и бизнеса. Микрорайон отличается развитой инфраструктурой: широкие четырёхполосные дороги, школа и детский сад напротив, а также 20 гектаров парковых зон с фонтанами, аллеями, ресторанами и кафе. Преимущества помещений DOGMA PARK : Удобное расположение на первом этаже с витражным остеклением, привлекающим внимание и обеспечивающим естественное освещение. Активный пешеходный трафик, включая родителей и школьников благодаря расположенной напротив школе. Наличие парковочных мест для клиентов и сотрудников. Полный набор коммуникаций, включая коммерческую вытяжку, для быстрого запуска бизнеса. Идеальная планировка с возможностью адаптации под любые задачи. DOGMA — федеральный девелопер, входящий в ТОП-5 крупнейших застройщиков России по объёму строительства. С 2011 года компания реализовала проекты общей площадью более м, более 80 домов сдано точно в срок и более 23 000 семей живут в уже построенных кварталах. Мы не просто строим дома — мы создаём наследие. Свяжитесь с нами, чтобы узнать подробности и забронировать помещение

Читать полностью
    Позвонить Написать
    21 124 800 Р272 100 $ или 229 600
    Агент
    +7 (988) 382-36-32
    Начать чат с агентом
    Похожие предложения
    Помещение свободного назначения в Краснодарский край, Краснодар ул. ... - Фото 1
    Помещение свободного назначения в Краснодарский край, Краснодар ул. ... - Фото 2
    В реализации — коммерческие помещения свободного назначения в литере 15 общей площадью 81.3 кв.м. на 1 этаже от застройщика DOGMA в микрорайоне DOGMA PARK от застройщика DOGMA, одного из ведущих девелоперов Краснодарского края. DOGMA PARK...
    • 1/16 эт.
    21 072 960 Р
    Агент
    +7 (988) Показать номер
    Посмотреть контакты
    Помещение свободного назначения в Краснодарский край, Краснодар Парк ... - Фото 1
    Помещение свободного назначения в Краснодарский край, Краснодар Парк ... - Фото 2
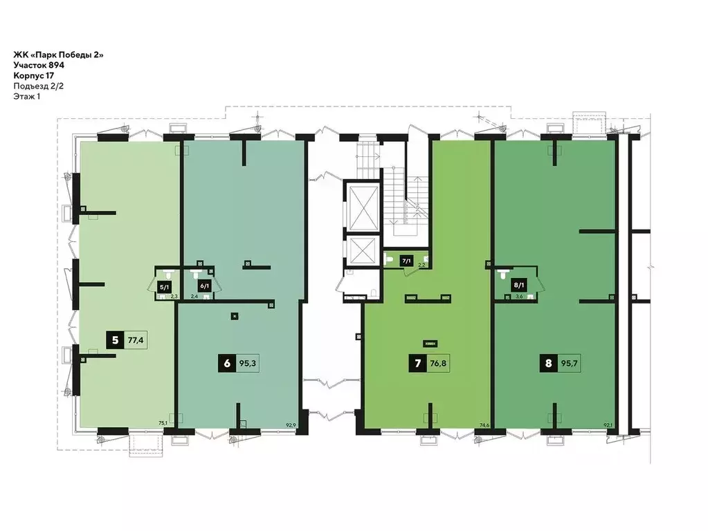
    В продаже от застройщика ЖК Парк Победы 2 , г. Краснодар, Литер 17 Срок сдачи: 4 кв. 2025, общей площадью 77.9 кв.м., на 1 этаже. Концептуально новый микрорайон ПАРК ПОБЕДЫ это статная архитектура, вдохновленная наследием страны. Уникальное культурное...
    • 1/9 эт.
    20 254 000 Р
    Агент
    +7 (918) Показать номер
    Посмотреть контакты
    Помещение свободного назначения в Краснодарский край, Краснодар Парк ... - Фото 1
    Помещение свободного назначения в Краснодарский край, Краснодар Парк ... - Фото 2
    В продаже от застройщика ЖК Парк Победы 2 , г. Краснодар, Литер 17 Срок сдачи: 4 кв. 2025, общей площадью 78.1 кв.м., на 1 этаже. Концептуально новый микрорайон ПАРК ПОБЕДЫ это статная архитектура, вдохновленная наследием страны. Уникальное культурное...
    • 1/9 эт.
    20 306 000 Р
    Агент
    +7 (918) Показать номер
    Посмотреть контакты
    Помещение свободного назначения в Краснодарский край, Краснодар Догма ... - Фото 1
    Помещение свободного назначения в Краснодарский край, Краснодар Догма ... - Фото 2
    Продаю помещение свободного назначения 117,2 м в ЖК Аксиома, Западный обходОт Собственника. Без комиссии- Прикубанский район- Микрорайон Догма Парк- В непосредственной близости действующие школа идетский сад, строится Аква-термо комплекс от Догма - Развитая...
    • 1/20 эт.
    20 510 000 Р
    Агент
    +7 (918) Показать номер
    Посмотреть контакты
    Помещение свободного назначения в Краснодарский край, Краснодар ... - Фото 1
    Помещение свободного назначения в Краснодарский край, Краснодар ... - Фото 2
    Продается коммерческое помещение общей площадью 74 кв.м.От собственника без комиссии.- Центральный район- Мкр 40 лет Победы ЖК Симфония - Район с развитой инфраструктурой- Удобный подъезд- Топовая локация- Рядом остановка общественного транспорта- Парковка...
    • 1/18 эт.
    21 400 000 Р
    Агент
    +7 (918) Показать номер
    Посмотреть контакты

    Не нашли подходящего объявления?

    Оставьте заявку, и наши риэлторы подберут псн в районе Краснодара

    (0)