Россия, Краснодарский край, Краснодар, ул. Анны Ахматовой, 6/1
18 232 000 Р 236 600 $ или 200 300

Информация об помещении

1
Этаж

Состояние и оснащение

Количество этажей
16
Развернуть
Агент
+7 (988) 382-36-32
Начать чат с агентом

Помещение свободного назначения в Краснодарский край, Краснодар ул. ...

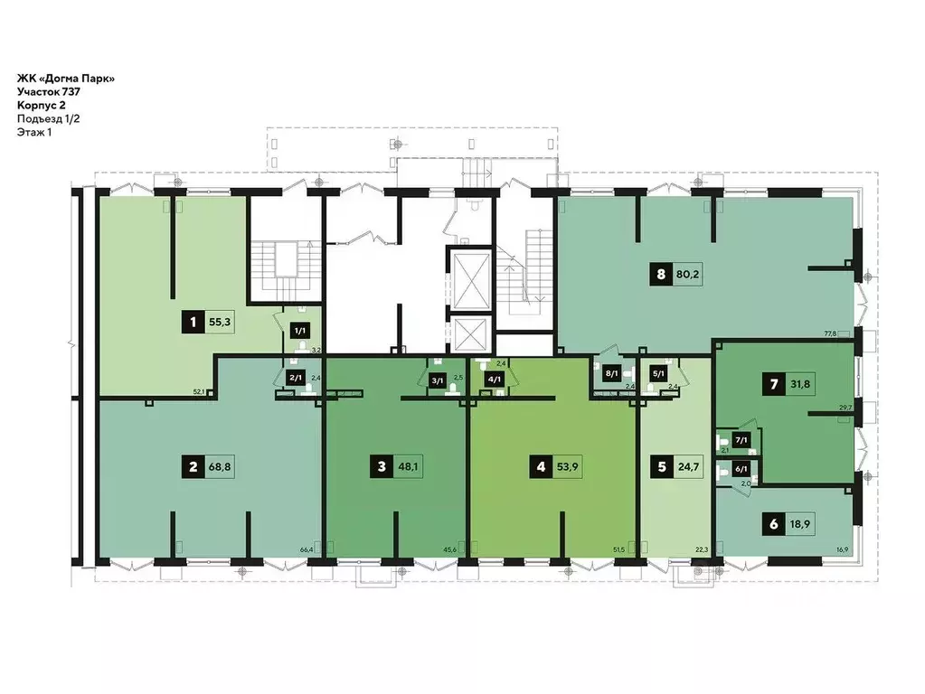
В реализации — коммерческие помещения свободного назначения в литере 6 общей площадью 68.8 кв.м. на 1 этаже от застройщика DOGMA в микрорайоне DOGMA PARK от застройщика DOGMA, одного из ведущих девелоперов Краснодарского края. DOGMA PARK — это современный микрорайон комфорт-класса с прогнозируемой численностью населения более 100 000 человек, активно развивающийся с учётом потребностей жителей и бизнеса. Микрорайон отличается развитой инфраструктурой: широкие четырёхполосные дороги, школа и детский сад напротив, а также 20 гектаров парковых зон с фонтанами, аллеями, ресторанами и кафе. Преимущества помещений DOGMA PARK : Удобное расположение на первом этаже с витражным остеклением, привлекающим внимание и обеспечивающим естественное освещение. Активный пешеходный трафик, включая родителей и школьников благодаря расположенной напротив школе. Наличие парковочных мест для клиентов и сотрудников. Полный набор коммуникаций, включая коммерческую вытяжку, для быстрого запуска бизнеса. Идеальная планировка с возможностью адаптации под любые задачи. DOGMA — федеральный девелопер, входящий в ТОП-5 крупнейших застройщиков России по объёму строительства. С 2011 года компания реализовала проекты общей площадью более м, более 80 домов сдано точно в срок и более 23 000 семей живут в уже построенных кварталах. Мы не просто строим дома — мы создаём наследие. Свяжитесь с нами, чтобы узнать подробности и забронировать помещение

Читать полностью
    Позвонить Написать
    18 232 000 Р236 600 $ или 200 300
    Агент
    +7 (988) 382-36-32
    Начать чат с агентом
    Похожие предложения в Краснодаре
    Помещение свободного назначения в Краснодарский край, Краснодар ул. ... - Фото 1
    Помещение свободного назначения в Краснодарский край, Краснодар ул. ... - Фото 2
    В реализации — коммерческие помещения свободного назначения в литере 7 общей площадью 61.1 кв.м. на 1 этаже от застройщика DOGMA в микрорайоне DOGMA PARK от застройщика DOGMA, одного из ведущих девелоперов Краснодарского края. DOGMA PARK ...
    • 1/16 эт.
    17 596 800 Р
    Агент
    +7 (988) Показать номер
    Посмотреть контакты
    Помещение свободного назначения в Краснодарский край, Краснодар ул. ... - Фото 1
    Помещение свободного назначения в Краснодарский край, Краснодар ул. ... - Фото 2
    В реализации — коммерческие помещения свободного назначения в литере 2 общей площадью 69.3 кв.м. на 1 этаже от застройщика DOGMA в микрорайоне DOGMA PARK от застройщика DOGMA, одного из ведущих девелоперов Краснодарского края. DOGMA PARK ...
    • 1/16 эт.
    18 364 500 Р
    Агент
    +7 (988) Показать номер
    Посмотреть контакты
    Помещение свободного назначения в Краснодарский край, Краснодар ул. ... - Фото 1
    Помещение свободного назначения в Краснодарский край, Краснодар ул. ... - Фото 2
    В реализации — коммерческие помещения свободного назначения в литере 4 общей площадью 68.8 кв.м. на 1 этаже от застройщика DOGMA в микрорайоне DOGMA PARK от застройщика DOGMA, одного из ведущих девелоперов Краснодарского края. DOGMA PARK ...
    • 1/16 эт.
    18 232 000 Р
    Агент
    +7 (988) Показать номер
    Посмотреть контакты
    Помещение свободного назначения в Краснодарский край, Краснодар ул. ... - Фото 1
    Помещение свободного назначения в Краснодарский край, Краснодар ул. ... - Фото 2
    В реализации — коммерческие помещения свободного назначения в литере 4 общей площадью 68.8 кв.м. на 1 этаже от застройщика DOGMA в микрорайоне DOGMA PARK от застройщика DOGMA, одного из ведущих девелоперов Краснодарского края. DOGMA PARK ...
    • 1/16 эт.
    18 232 000 Р
    Агент
    +7 (988) Показать номер
    Посмотреть контакты
    Помещение свободного назначения в Краснодарский край, Краснодар ул. ... - Фото 1
    Помещение свободного назначения в Краснодарский край, Краснодар ул. ... - Фото 2
    В реализации — коммерческие помещения свободного назначения в литере 2 общей площадью 69.5 кв.м. на 1 этаже от застройщика DOGMA в микрорайоне DOGMA PARK от застройщика DOGMA, одного из ведущих девелоперов Краснодарского края. DOGMA PARK ...
    • 1/16 эт.
    18 417 500 Р
    Агент
    +7 (988) Показать номер
    Посмотреть контакты

    Не нашли подходящего объявления?

    Оставьте заявку, и наши риэлторы подберут псн в районе Краснодара

    (0)