Россия, Краснодарский край, Краснодар, ул. Скандинавская, 1к3
6 050 000 Р 77 040 $ или 65 900

Информация об помещении

цоколь
Этаж

Состояние и оснащение

Количество этажей
9
Развернуть
Агент
+7 (918) 181-19-07
Начать чат с агентом

Помещение свободного назначения в Краснодарский край, Краснодар ул. ...

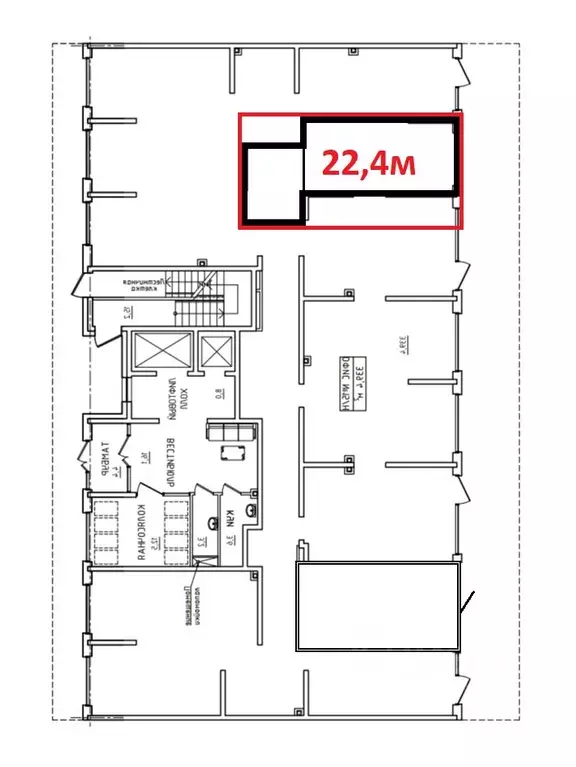
Продается реальное коммерческое помещение с высоким трафиком в ЖК Новые сезоны2240 квартир14 домовОБ ОБЪЕКТЕ:У помещения высокая проходимость, развитая инфраструктура, удобные подъезд, парковка.Помещение с панорамными окнами, правильной формы, с центральными коммуникациями.Высота потолка 3,2 метра.Первый этаж монолитно-кирпичного дома. ЖК Новые сезоны в районе Немецкой деревни. Все сдано в эксплуатацию как коммерческое помещение. Площадь 37.8 кв.м.В помещении нет ремонта. Мощность электричества 5Функциональная планировка: помещение правильной прямоугольной формы + санузел.Входная группа на уровне пола. Есть место для размещения наружной рекламы.Идеально подойдет для любого вида бизнеса: магазин, кофейня, клиника, аптека, офис, стоматология.Документы готовы для быстрой сделки. Подходит любая ипотека.О РАЙОНЕ:ЖК Новые сезоны это новый жилой массив с населением больше 10000 человек.Сквер Троицкий в 100 метрахШкола 99 Детский сад 64ТРАНСПОРТНАЯ РАЗВЯЗКА.в 5-ти минутах автобусная остановка, маршруты 29, 32, 38ДЛЯ ВАС:Бесплатное открытие ипотеки на выгодных условиях без комиссии , Юридическая проверка документовПроверка собственников на предмет долгов, исковых производств и открытой процедуры банкротства.Полное сопровождение сделки на всех этапах до получения выписки ЕГРН и приемки помещения .Приглашаю на просмотр Для получения планировки помещения напишите + в сообщении.Видео отправлю по запросу.ЗВОНИТЕ Покажу в любое время БЕЗ ВОЗНАГРАЖДЕНИЯ СО СТОРОНЫ ПОКУПАТЕЛЯ Арт.

Читать полностью
    Позвонить Написать
    6 050 000 Р77 040 $ или 65 900
    Агент
    +7 (918) 181-19-07
    Начать чат с агентом
    Похожие предложения
    Помещение свободного назначения в Краснодарский край, Краснодар ул. ... - Фото 1
    Помещение свободного назначения в Краснодарский край, Краснодар ул. ... - Фото 2
    Коммерческое помещение в ЖК Дыхание с НДС Отличный пешеходный и автомобильный трафик Лучшая цена Дом сдан БЕЗ КОМИССИИ и ДОП. ОПЛАТ О помещении:Преимущества:Лучшая локация для ведения успешного бизнеса Жилой комплекс представляет собой группу из 30 многоквартирных...
    • -1/9 эт.
    6 200 000 Р
    Агент
    +7 (918) Показать номер
    Посмотреть контакты
    Помещение свободного назначения в Краснодарский край, Краснодар ул. ... - Фото 1
    Помещение свободного назначения в Краснодарский край, Краснодар ул. ... - Фото 2
    Арт.КВАРТАЛ 1.1 СДАЧА 2 КВАРТАЛ 2026Продаются коммерческие помещения свободного назначения в динамично возводящемся ЖК Первое Место Жилой комплекс Первое Местоасполагается в новом районе города Новознаменском, в Карасунском округе северо-восточной...
    • 1/18 эт.
    6 050 000 Р
    Агент
    +7 (988) Показать номер
    Посмотреть контакты
    Помещение свободного назначения в Краснодарский край, Краснодар ул. ... - Фото 1
    Помещение свободного назначения в Краснодарский край, Краснодар ул. ... - Фото 2
    Арт.Продается коммерческое помещение в динамично развивающемся микрорайоне Губернский Отличное расположение с отдельным входом и удобной входной группой. Помещение находится в окружении активно функционирующих коммерческих объектов: Wildberries и Красное...
    • -1/24 эт.
    6 100 000 Р
    Агент
    +7 (918) Показать номер
    Посмотреть контакты
    Помещение свободного назначения в Краснодарский край, Краснодар ул. ... - Фото 1
    Помещение свободного назначения в Краснодарский край, Краснодар ул. ... - Фото 2
    Коммерческое помещение на 1 этаже в ЖК КРАСКИ Преимущества: Самая низкая цена в городе на коммерцию Характеристики: большая парковка по фасаду - Прозрачная входная группа - фасады выходят на торец дома численность жителей данного микрорайона около...
    • 1/5 эт.
    6 000 000 Р
    Агент
    +7 (988) Показать номер
    Посмотреть контакты
    Помещение свободного назначения в Краснодарский край, Краснодар ул. ... - Фото 1
    Помещение свободного назначения в Краснодарский край, Краснодар ул. ... - Фото 2
    В продаже коммерческие помещение свободного назначения, в новом жилом комплексе 40 кв м торцевое, с отдельным входом.
    • 1/8 эт.
    6 000 000 Р
    Агент
    +7 (918) Показать номер
    Посмотреть контакты

    Не нашли подходящего объявления?

    Оставьте заявку, и наши риэлторы подберут псн в районе Краснодара

    (0)