19 400 000 Р 252 800 $ или 213 500

Информация о квартире

104 м2
Площадь
55.4 м2
Жилая
15.7 м2
Кухня
3
Комнаты
13
Этаж
24
Этажность
22/17/16 м2
Площадь комнат
2020
Построен

Состояние и оснащение

Наличие балкона
2 лоджии
Вид из окон
двор и улица
Ремонт
отсутствует
Окна
пластиковые
Мебель
отсутствует
Мебель на кухне
нет
Количество санузлов
2
Тип санузла
раздельный
Лифт
есть
Парковка
есть

Дополнительная информация

Тип дома
монолитно-кирпичный
Тип комнат
раздельные
Лифт
пассажирский и грузовой
Наличие парковки
охраняемая парковка
Тип продажи
свободная
Собственников
1
Возможность ипотеки
да

Оснащённость

Консьерж
есть
Видеонаблюдение
есть

Территория

Сквер
есть
Парковая зона
есть
Детская площадка
есть
Фитнес-клуб
есть
Круглосуточный магазин
есть
Торговый центр
есть
Аптека
есть
Развернуть
Овсянникова Наталья Борисовна
PRO
+7 (918) 331-98-90
Профессионал AFY.ru с 2013 г.
Начать чат с агентом

Район "Авроры" Продаю 3к.кв.

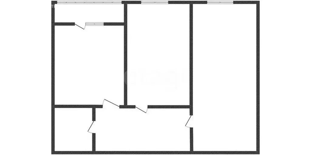
ЦМР Район кинотеатра "Аврора" Продаю 3 к кв в ЖК "Краснодар Сити" в самом центре Краснодара, по ул.Шоссе Нефтяников, 2020 г, на 13-ом этаже 24-х этажного мон-кирп дома бизнес класса, площадью 104/55,4/15,69 кв.м.. Два сан. узла: 8,61 кв.м. и 1,74 кв.м., просторный коридор 16,91 кв.м, две лоджии 7,66 кв.м. с витражным остеклением и выходами на кухню и большую комнату и лоджия 3,65 кв.м.
Планировка на три стороны, комнаты изолированные 22,0 кв.м., 17,17 и 16,22 кв.м с витражным остеклением. Состояние квартиры - черновая отделка. Заменена проводка, отремонтированы окна.
Дом бизнес класса - огороженная территория, консьерж. три лифта, подземная и наземная парковки, детская игровая площадка. система видеонаблюдения. Первые два этажа дома - магазины и офисы. В шаговой доступности школы и гимназии, художественная школа, детский сад, "Ашан", "Магнит", "Касторама", магазины, аптеки, кафе, кинотеатр "Аврора", остановки общественного транспорта-автобусы, троллейбусы, трамвай.
Звоните! Покажу и продам с удовольствием!

Читать полностью

    Для того, чтобы купить трехкомнатную квартиру по адресу: Краснодар, Центральный округ, Нефтяников ш., 18к2, позвоните по телефону +7 (918) 331-98-90. Торопитесь! Объявление №345519081 о продаже трехкомнатной квартиры опубликовано 27 января 2026.

    Позвонить Написать
    19 400 000 Р252 800 $ или 213 500
    Овсянникова Наталья Борисовна
    PRO
    +7 (918) 331-98-90
    Профессионал AFY.ru с 2013 г.
    Начать чат с агентом
    Похожие предложения
    ЦМР Продаю 3к.кв. в предчистовой отделке по ул.Промышленной - Фото 1
    ЦМР Продаю 3к.кв. в предчистовой отделке по ул.Промышленной - Фото 2
    ЦМР Продаю 3к.кв. в предчистовой отделке по ул.Промышленной - Фото 3
    ЦМР Продаю 3к.кв. в предчистовой отделке по ул.Промышленной - Фото 4
    ЦМР Продаю 3к.кв. в предчистовой отделке по ул.Промышленной - Фото 5
    ЦМР Продаю 3к.кв. в предчистовой отделке по ул.Промышленной - Фото 6
    ЦМР Продаю 3к.кв. в предчистовой отделке по ул.Промышленной - Фото 7
    ЦМР Продаю 3к.кв. в предчистовой отделке по ул.Промышленной - Фото 8
    3-комнатная квартира, без ремонта, общая площадь 108м², жилая 56.5м², кухня 16.1м², с балконом, пластиковые стеклопакеты

    ЦМР Продаю 3к. кв. по ул. Промышленная, 19 на 6-ом этаже 16-ти этажного монолитно-кирпичного дома, площадью 108/56, 5/16,1 м2, застройщик НСИ-Юг. Планировка на две стороны, три изолированных комнаты 23,8+16,4+16,3 м2, просторная кухня-гостиная 16,1 м2,...
    • 108 м²
    • 3-ком
    • 6/16 эт.
    • монолитно-кирпичный
    19 000 000 Р
    PRO
    +7 (918) Показать номер
    Агентство
    Юг Сити
    Посмотреть контакты
    3-к кв. Краснодарский край, Краснодар Воронежская ул., 47Б (99.0 м) - Фото 1
    3-к кв. Краснодарский край, Краснодар Воронежская ул., 47Б (99.0 м) - Фото 2
    3-комнатная квартира, общая площадь 99м², жилая 51м², кухня 21м²

    В продаже просторная и уютная 3-х комнатная 104 м2, в новом жилом комплексе Фонтаны уникальный, неповторимый жилой комплекс, воплощающий оригинальные и креативные решения дизайнеров и архитекторов. Дома округлой формы это придает им легкости, несмотря...
    • 99 м²
    • 3-ком
    • 5/24 эт.
    • монолит
    18 500 000 Р
    Агент
    +7 (918) Показать номер
    Посмотреть контакты
    4-к кв. Краснодарский край, Краснодар 9-й километр мкр, ул. ... - Фото 1
    4-к кв. Краснодарский край, Краснодар 9-й километр мкр, ул. ... - Фото 2
    4-комнатная квартира, общая площадь 315м², жилая 186м², кухня 65м²

    Представляем вашему вниманию уникальный пентхаус в самом сердце города, который сочетает в себе элегантность, комфорт и потрясающие виды. Этот роскошный объект недвижимости идеально подходит для тех, кто ценит высокое качество жизни и стремится к уединению...
    • 315 м²
    • 4-ком
    • 16/16 эт.
    19 500 000 Р
    Агент
    +7 (918) Показать номер
    Посмотреть контакты
    Продается евро-трешка 3-комн. квартира 64 кв.м. - Фото 1
    Продается евро-трешка 3-комн. квартира 64 кв.м. - Фото 2
    Продается евро-трешка 3-комн. квартира 64 кв.м. - Фото 3
    Продается евро-трешка 3-комн. квартира 64 кв.м. - Фото 4
    Продается евро-трешка 3-комн. квартира 64 кв.м. - Фото 5
    Продается евро-трешка 3-комн. квартира 64 кв.м. - Фото 6
    Продается евро-трешка 3-комн. квартира 64 кв.м. - Фото 7
    Продается евро-трешка 3-комн. квартира 64 кв.м. - Фото 8
    Продается евро-трешка 3-комн. квартира 64 кв.м. - Фото 9
    Продается евро-трешка 3-комн. квартира 64 кв.м. - Фото 10
    Продается евро-трешка 3-комн. квартира 64 кв.м. - Фото 11
    Продается евро-трешка 3-комн. квартира 64 кв.м. - Фото 12
    Продается евро-трешка 3-комн. квартира 64 кв.м. - Фото 13
    3-комнатная квартира, с евроремонтом, общая площадь 64м², жилая 50м², кухня 11м², с балконом

    Я СОБСТВЕННИК! ПРОСЬБА РИЕЛТОРОВ НЕ ЗВОНИТЬ И НЕ ПРЕДЛАГАТЬ СВОИ УСЛУГИ! Все фотографии именно моей квартиры!Продаю просторную,светлую, уютную евро-трешку Квартира находится в жилом комплексе бизнес-класса «Седьмой Континент», в одном из престижных районов...
    • 64 м²
    • 3-ком
    • 6/25 эт.
    • монолит
    19 950 000 Р
    Агент
    +7 (939) Показать номер
    Посмотреть контакты
    2-к кв. Краснодарский край, Краснодар Школьный мкр, ул. Школьная, 1 ... - Фото 1
    2-к кв. Краснодарский край, Краснодар Школьный мкр, ул. Школьная, 1 ... - Фото 2
    2-комнатная квартира, общая площадь 59м², жилая 32м², кухня 13м²

    Агентам не беспокоить. Скидки обсуждаются с реальным покупателем.Вашему вниманию предлагается 2-комнатная квартира в жилом комплексе премиум-класса Сердце .Квартира с удобной планировкой, комфортная для семьи с детьми, пары или индивидуального проживания....
    • 59 м²
    • 2-ком
    • 14/19 эт.
    20 000 000 Р
    Агент
    +7 (916) Показать номер
    Посмотреть контакты

    Не нашли подходящего объявления?

    Оставьте заявку, и наши риэлторы подберут квартиру в районе Краснодара

    (0)