Россия, Краснодарский край, Краснодар, улица Садовое Кольцо, 9

Реализация объекта недвижимости приостановлена

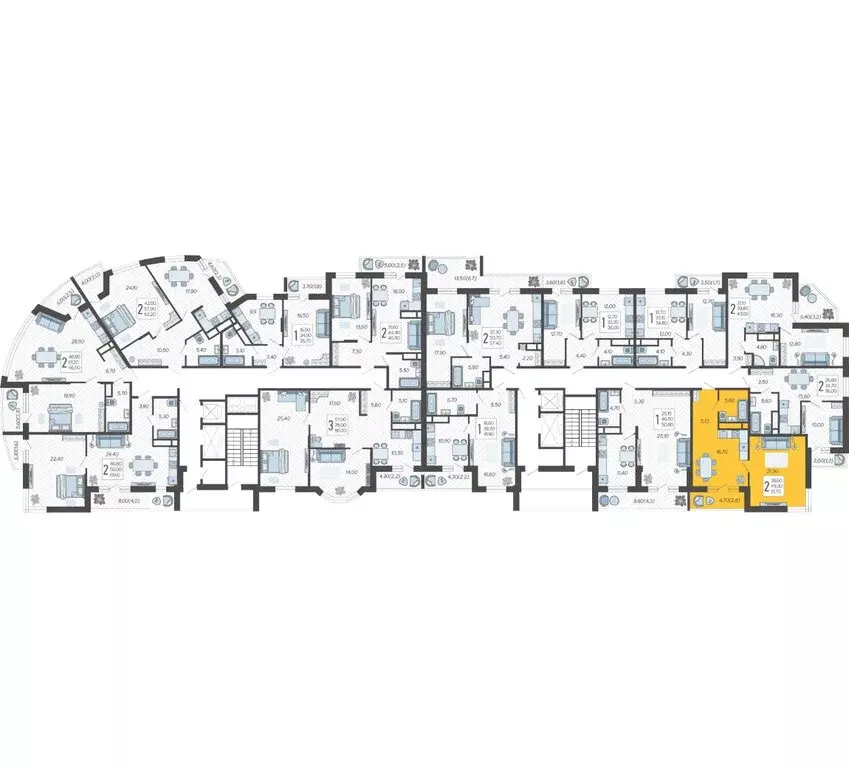
Информация о квартире

52.0 м2
Площадь
2
Комнаты
15
Этаж
16
Этажность
Развернуть

2-комнатная квартира: Краснодар, жилой комплекс Зеленодар, улица ...

Apт.2456430. Продаётся 2-комнатная квартира в строящемся доме (Литер 5б), срок сдачи: 1 кв. 2023, общей площадью 52.2 кв.м., на 15 этаже. Предчистовая отделка, но с возможностью заказать отделку. Преимущества квартиры: большая кухня, лоджияЖилой комплекс находится в одном из самых зелёных районов Краснодара. При этом сюда легко добраться на личном и общественном транспортеЗдесь продумана каждая деталь для комфортной и здоровой жизни. Современная архитектура, квартиры с продуманной планировкой, зоны отдыха, спортивные площадки, безопасные дворы и 3 многоуровневые парковки по 500 мест.Для удобства жителей, на первых этажах расположатся коммерческие помещения с продуктовыми магазинами, кафе, салонами красоты и детскими школами развития. Проект предполагает строительство собственной школы и детского сада.Рядом находится вся необходимая инфраструктура: • ТРК “Красная площадь”, “Леруа Мерлен” - 10 минут на машине • Ближайшая школа №65 - 13 минут пешком • Школа № 50, №95 - 5 минут на машине • Ясли-сад “Солнышко” - 17 минут пешком • Рядом находятся ледовый дворец Ice Palace, спортивный комплекс «Баскет Холл , школа ЦСК и теннисные корты • Выезд на Ейское шоссе - дорога на море за час без пробок Номер квартиры 201. Подъезд №2

Читать полностью

    Реализация объекта недвижимости приостановлена

    Не нашли подходящего объявления?

    Оставьте заявку, и наши риэлторы подберут квартиру в районе Краснодара

    (0)