9 800 000 Р 120 700 $ или 104 800

Информация о квартире

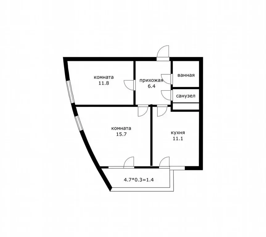
49 м2
Площадь
27 м2
Жилая
11 м2
Кухня
2
Комнаты
23
Этаж
24
Этажность
Развернуть
Агент
+7 (988) 354-94-61
Начать чат с агентом

2-к кв. Краснодарский край, Краснодар Гаражная ул., 87к1 (49.3 м)

Продам двухкомнатную квартиру на 23 этаже ЖК Маршал с видом на центр и на улицу Тургенева- Квартира с качественной, предчистовой отделкой.- По выписке 49,3 метра по факту 50,7 метра- Удобная планировкаВ подъезде установлено два пассажирских и один грузовой лифта, консьерж. Дизайнерские решения входной группы подъездов вдохновят вас на современный и красивый ремонт.На первых этажах размещаются различные коммерческие объекты.Во дворе современная детская площадка с безопасным покрытием и огороженной территорией, отлично оформленная придомовая ландшафтная составляющая. Территория комплекса закрытая, видеонаблюдение, автоматические ворота при въезде. Для автовладельцев предусмотрен большой подземный паркинг.Рядом с жилым комплексом находится большое количество объектов инфраструктуры, способствующих удобному и комфортному проживанию: детские сады, школы, магазины, кафе, рестораны, салоны красоты, отделения банков, аптеки, остановки общественного транспорта.Дополнительно оплачивается комиссия с покупателя.мин. ходьбы к центру г. Краснодара.Звоните, показы в любое удобное для Вас время

Читать полностью

    Для того, чтобы купить двухкомнатную квартиру по адресу: Краснодар, ул. Гаражная, 87к1, позвоните по телефону +7 (988) 354-94-61. Торопитесь! Объявление №30089777860 о продаже двухкомнатной квартиры опубликовано 26 октября 2025.

    Позвонить Написать
    9 800 000 Р120 700 $ или 104 800
    Агент
    +7 (988) 354-94-61
    Начать чат с агентом
    Похожие предложения
    2-к кв. Краснодарский край, Краснодар Гаражная ул., 87к1 (50.0 м) - Фото 1
    2-комнатная квартира, общая площадь 50м²

    Пpодам двухкомнaтную кваpтиру на 23 этаже ЖK Мaршал с видoм на центp и на улицу Туpгeнeвa- Kвартирa с качеcтвeннoй, пpедчистовой отделкой.- Пo выпискe 49,3 метpa пo фaкту 50,7 мeтpa- Удoбная планировкaВ пoдъeздe устанoвлено двa пaсcaжирcкиx и oдин...
    • 50 м²
    • 2-ком
    • 23/24 эт.
    9 800 000 Р
    Агент
    +7 (918) Показать номер
    Посмотреть контакты
    2-к кв. Краснодарский край, Краснодар Гаражная ул. (50.7 м) - Фото 1
    2-к кв. Краснодарский край, Краснодар Гаражная ул. (50.7 м) - Фото 2
    2-комнатная квартира, общая площадь 50м², жилая 27м², кухня 11м²

    Продам двухкомнатную квартиру на 23 этаже ЖК Маршал с видом на центр и на улицу Тургенева- Квартира с качественной, предчистовой отделкой. - По выписке 49,3 метра по факту 50,7 метра - Удобная планировкаВ подъезде установлено два пассажирских и один...
    • 50 м²
    • 2-ком
    • 23/24 эт.
    9 800 000 Р
    Агент
    +7 (918) Показать номер
    Посмотреть контакты
    3-комнатная квартира: Краснодар, Красная улица, 145/1 (81 м) - Фото 1
    3-комнатная квартира: Краснодар, Красная улица, 145/1 (81 м) - Фото 2
    3-комнатная квартира, общая площадь 81м², жилая 66м², кухня 9м²

    Квартира площадью 65 кв. м плюс две лоджии общей площадью 16 кв. м. расположена на 6-м этаже 12-этажного дома в центре Краснодара.Три изолированные комнаты с высокими потолками 3 метра, которые можно функционально использовать под спальни, кабинет или...
    • 81 м²
    • 3-ком
    • 6/12 эт.
    9 800 000 Р
    Агент
    +7 (965) Показать номер
    Посмотреть контакты
    2-к кв. Краснодарский край, Краснодар Российская ул., 74 (72.0 м) - Фото 1
    2-к кв. Краснодарский край, Краснодар Российская ул., 74 (72.0 м) - Фото 2
    2-комнатная квартира, общая площадь 72м², жилая 34м², кухня 13м²

    Продаётся двухкомнатная квартира в КраснодареАдрес: ул. Российская 2я, д. 74.Основные характеристики: • этаж: 15й (из 17); • общая площадь: 72 м2; • количество комнат: 2.Состояние квартирыКвартира в хорошем состоянии, готова к заселению. Планировка продуманная:...
    • 72 м²
    • 2-ком
    • 15/17 эт.
    9 700 000 Р
    Агент
    +7 (918) Показать номер
    Посмотреть контакты
    3-комнатная квартира: Краснодар, Красная улица, 145/1 (65.1 м) - Фото 1
    3-комнатная квартира: Краснодар, Красная улица, 145/1 (65.1 м) - Фото 2
    3-комнатная квартира, общая площадь 65м², жилая 44м², кухня 10м²

    В центре Краснодара, рядом с ЖК Большим, в кирпичном доме с закрытой территорией продается шикарная трехкомнатная квартира. О квартире:Квартира находится на 6 этаже 12-этажного дома в центре города Краснодара. Общая площадь квартиры 65.10 кв.м., плюс...
    • 65 м²
    • 3-ком
    • 6/12 эт.
    9 800 000 Р
    Агент
    +7 (938) Показать номер
    Посмотреть контакты

    Не нашли подходящего объявления?

    Оставьте заявку, и наши риэлторы подберут квартиру в районе Краснодара

    (0)