5 400 000 Р 70 970 $ или 60 880

Информация о квартире

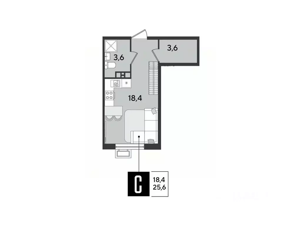
39 м2
Площадь
10 м2
Жилая
16 м2
Кухня
1
Комната
14
Этаж
18
Этажность
Развернуть
Агент
+7 (932) 506-88-79
Начать чат с агентом

1-к кв. Краснодарский край, Краснодар Образцово мкр, (39.34 м)

В продаже стильная 1 комнатная квартира с большой кухней 16.83м2 с выходом на лоджию Квартира отличается функциональной планировкой, что делает ее идеальным вариантом для комфортной жизни. Лоджия Просторная лоджия 4.82 м2 станет отличным местом для отдыха, создания зимнего сада или уютного уголка для работы. Она прекрасно освещена и остеклена Инфраструктура: Квартира расположена в удобном районе с развитой инфраструктурой: • В шаговой доступности магазины и супермаркеты, развлекательный центр • Удобный доступ к общественному транспорту • Близость к школам, детским садам без дорог • Парк с современными спортивными и детскими зонами , фонтаны •Медицинские учреждения Все предусмотрено для комфортной жизни С агентствами не работаем Арт.

Читать полностью
    Позвонить Написать
    5 400 000 Р70 970 $ или 60 880
    Агент
    +7 (932) 506-88-79
    Начать чат с агентом
    Похожие предложения в Краснодаре
    Студия Краснодарский край, Краснодар Парк Победы мкр,  (25.6 м) - Фото 1
    Студия Краснодарский край, Краснодар Парк Победы мкр,  (25.6 м) - Фото 2
    студия, общая площадь 25м², жилая 15м², кухня 5м²

    В продаже квартира-студия от застройщика ЖК Парк Победы 2 , г. Краснодар, Литер 9 Срок сдачи: 2 кв. 2026, общей площадью 25.6 кв.м., на 9 этаже. Концептуально новый микрорайон ПАРК ПОБЕДЫ - это статная архитектура, вдохновленная наследием страны....
    • 25 м²
    • студия-ком
    • 9/9 эт.
    • монолит
    5 337 600 Р
    Агент
    +7 (932) Показать номер
    Посмотреть контакты
    Студия Краснодарский край, Краснодар 2-я Площадка мкр, ул. Ветеранов ... - Фото 1
    Студия Краснодарский край, Краснодар 2-я Площадка мкр, ул. Ветеранов ... - Фото 2
    студия, общая площадь 25м², жилая 15м², кухня 5м²

    В продаже квартира-студия от застройщика ЖК Парк Победы 2 , г. Краснодар, Литер 6 Срок сдачи: 2 кв. 2026, общей площадью 25.6 кв.м., на 9 этаже. Концептуально новый микрорайон ПАРК ПОБЕДЫ - это статная архитектура, вдохновленная наследием страны....
    • 25 м²
    • студия-ком
    • 9/9 эт.
    • монолит
    5 337 600 Р
    Агент
    +7 (932) Показать номер
    Посмотреть контакты
    Студия Краснодарский край, Краснодар Парк Победы мкр,  (25.6 м) - Фото 1
    Студия Краснодарский край, Краснодар Парк Победы мкр,  (25.6 м) - Фото 2
    студия, общая площадь 25м², жилая 15м², кухня 5м²

    В продаже квартира-студия от застройщика ЖК Парк Победы 2 , г. Краснодар, Литер 8 Срок сдачи: 2 кв. 2026, общей площадью 25.6 кв.м., на 9 этаже. Концептуально новый микрорайон ПАРК ПОБЕДЫ - это статная архитектура, вдохновленная наследием страны....
    • 25 м²
    • студия-ком
    • 9/9 эт.
    • монолит
    5 337 600 Р
    Агент
    +7 (932) Показать номер
    Посмотреть контакты
    Студия Краснодарский край, Краснодар Самолет кв-л,  (21.5 м) - Фото 1
    Студия Краснодарский край, Краснодар Самолет кв-л,  (21.5 м) - Фото 2
    студия, общая площадь 21м², жилая 14м²

    Продаётся студия от застройщика DOGMA .Основные характеристики:Площадь: 21.50 кв . мОтделка: с отделкой white boxРасположение: город Краснодар, улица Западный обход .Жилой комплекс: новый жилой квартал бизнес - класса Самолёт 7 . Самолёт 7 - это квартал...
    • 21 м²
    • студия-ком
    • 13/18 эт.
    • монолит
    5 476 050 Р
    Агент
    +7 (994) Показать номер
    Посмотреть контакты
    Студия Краснодарский край, Краснодар Самолет кв-л,  (21.6 м) - Фото 1
    Студия Краснодарский край, Краснодар Самолет кв-л,  (21.6 м) - Фото 2
    студия, общая площадь 21м², жилая 14м²

    Продаётся студия от застройщика DOGMA .Основные характеристики:Площадь: 21.60 кв . мОтделка: с отделкой white boxРасположение: город Краснодар, улица Западный обход .Жилой комплекс: новый жилой квартал бизнес - класса Самолёт 7 . Самолёт 7 - это квартал...
    • 21 м²
    • студия-ком
    • 7/18 эт.
    • монолит
    5 458 320 Р
    Агент
    +7 (994) Показать номер
    Посмотреть контакты

    Не нашли подходящего объявления?

    Оставьте заявку, и наши риэлторы подберут квартиру в новостройке в районе Краснодара

    (0)