Россия, Краснодарский край, Краснодар, Теплые Края жилой комплекс
5 605 700 Р 69 010 $ или 59 740

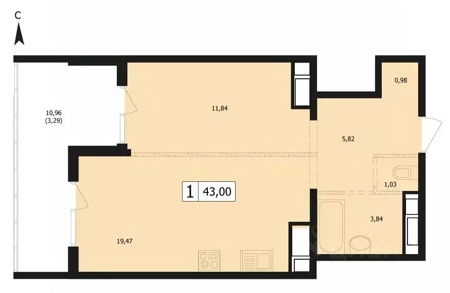
Информация о квартире

38 м2
Площадь
12 м2
Жилая
12 м2
Кухня
1
Комната
17
Этаж
18
Этажность
Развернуть
Агент
+7 (958) 608-55-37
Начать чат с агентом

1-к кв. Краснодарский край, Краснодар Теплые Края жилой комплекс ...

Микрорайон Тёплые края — это масштабный проект комплексного освоения территории. Жилой комплекс воплотил в себе все самые высокие критерии отбора квартиры по планировочным решениям, благоустройству и инфраструктуре.Преимущества, которые действительно важны:Комфорт и качество:• Монолитно-кирпичные дома с шумо- и теплоизоляцией.• Высокие потолки до 4,2 м, панорамные окна, функциональные планировки.• Предчистовая или чистовая отделка — можно сразу заехать или реализовать свой дизайн.Безопасные дворы без машин, видеонаблюдение, закрытая территория.Благоустройство:• Более 65 000 м зелёных зон, скверы, аллеи, прогулочные бульвары.• 40 000 м детских и спортивных площадок — от workout-зон до игровых городков.• Зоны отдыха и барбекю — идеальны для встреч с друзьями и семейных вечеров.Всё рядом:• Собственная школа на 1 800 мест и 3 детских сада на 950 мест.• Поликлиника, аптеки, магазины, кафе и пекарни в шаговой доступности.• Свой торгово-развлекательный центр, фитнес-клуб, фермерский рынок.Удобное расположение:• Район с чистым воздухом, рядом природа и река Кубань.• 15 минут до центра Краснодара и выезда на трассу в сторону моря.• Развитое транспортное сообщение — маршрутки, автобусы, удобные дороги.Выгодные условия покупки:• Семейная ипотека от 2,5 .• IT ипотека - 6 .• Возможность покупки по господдержке и с использованием маткапитала.• Рассрочка с удобным графиком платежей.• Высокий потенциал роста стоимости жилья.Почему Тёплые края — лучший выбор:• Район строится по принципу город в городе : всё для жизни внутри.• Комфортный баланс между городским ритмом и уютом пригорода.• Идеально подходит и для жизни, и для инвестиций.СК Семья входит в топ-5 среди застройщиков Краснодарского края. Надёжная компания с десятками реализованных проектов.Звоните — поможем Вам сделать правильный выбор и подобрать лучший вариант под ваш бюджет и цели.

Читать полностью
    Позвонить Написать
    5 605 700 Р69 010 $ или 59 740
    Агент
    +7 (958) 608-55-37
    Начать чат с агентом
    Похожие предложения в Краснодаре
    1-к кв. Краснодарский край, Краснодар ул. Автолюбителей, 1Длит4 (43.0 ... - Фото 1
    1-к кв. Краснодарский край, Краснодар ул. Автолюбителей, 1Длит4 (43.0 ... - Фото 2
    1-комнатная квартира, общая площадь 43м²

    Продаётся 1-комнатная квартира в сданном доме (Дом 4 - Мир), срок сдачи: I-кв. 2023, общей площадью 43 кв.м., на 12 этаже. Жилой комплекс Парусная Регатаасположен на берегу озера, в динамично развивающимся районе Гидростроителей города Краснодара. В...
    • 43 м²
    • 1-ком
    • 12/25 эт.
    5 566 350 Р
    Агент
    +7 (800) Показать номер
    Посмотреть контакты
    1-к кв. Краснодарский край, Краснодар Догма Парк мкр,  (34.2 м) - Фото 1
    1-к кв. Краснодарский край, Краснодар Догма Парк мкр,  (34.2 м) - Фото 2
    1-комнатная квартира, общая площадь 34м², жилая 13м², кухня 12м²

    Код объекта: 1628022. Уважаемый покупатель Представляем вашему вниманию 1кк в Жилом комплексе Догма-парк в Прикубанском внутригородском округе. Грамотно спланированные развязки, удобные въезды и выезды со стороны улицы Западный обход и Немецкой деревни....
    • 34 м²
    • 1-ком
    • 9/16 эт.
    • монолит
    5 500 000 Р
    Агент
    +7 (982) Показать номер
    Посмотреть контакты
    Студия Краснодарский край, Краснодар Европа-Сити жилой комплекс (27.35 ... - Фото 1
    Студия Краснодарский край, Краснодар Европа-Сити жилой комплекс (27.35 ... - Фото 2
    студия, общая площадь 27м², жилая 19м²

    Клубный квартал Европа — уютный жилой район, гармонично сочетающий в себе яркие дизайнерские решения, прекрасную экологию и благоустроенные общественные пространства. Расположен в уникальной локации рядом с культовой Немецкой Деревней . Всего за несколько...
    • 27 м²
    • студия-ком
    • 9/9 эт.
    • кирпичный
    5 570 768 Р
    Агент
    +7 (932) Показать номер
    Посмотреть контакты
    Студия Краснодарский край, Краснодар Европа-Сити жилой комплекс, ... - Фото 1
    Студия Краснодарский край, Краснодар Европа-Сити жилой комплекс, ... - Фото 2
    студия, общая площадь 28м²

    Клубный квартал Европа — уютный жилой район, гармонично сочетающий в себе яркие дизайнерские решения, прекрасную экологию и благоустроенные общественные пространства. Расположен в уникальной локации рядом с культовой Немецкой Деревней . Всего за несколько...
    • 28 м²
    • студия-ком
    • 9/9 эт.
    • кирпичный
    5 661 981 Р
    Агент
    +7 (901) Показать номер
    Посмотреть контакты
    Студия Краснодарский край, Краснодар Европа-Сити жилой комплекс, ... - Фото 1
    Студия Краснодарский край, Краснодар Европа-Сити жилой комплекс, ... - Фото 2
    студия, общая площадь 28м²

    Клубный квартал Европа — уютный жилой район, гармонично сочетающий в себе яркие дизайнерские решения, прекрасную экологию и благоустроенные общественные пространства. Расположен в уникальной локации рядом с культовой Немецкой Деревней . Всего за несколько...
    • 28 м²
    • студия-ком
    • 3/9 эт.
    • кирпичный
    5 609 541 Р
    Агент
    +7 (932) Показать номер
    Посмотреть контакты

    Не нашли подходящего объявления?

    Оставьте заявку, и наши риэлторы подберут квартиру в новостройке в районе Краснодара

    (0)