11 750 000 Р 145 600 $ или 125 300

Информация о коттедже

112 м2
Площадь
46 м2
Жилая
36 м2
Кухня
2015
Построен
2
Этажность
4
Количество комнат
2 cоток
Участок

Состояние и оснащение

Год постройки
2015

Дополнительная информация

Дом продаётся вместе с участком
есть
Развернуть
Агент
Арина
+7 (918) 270-57-79
Начать чат с агентом

В продаже уютный и тёплый двухэтажный дом

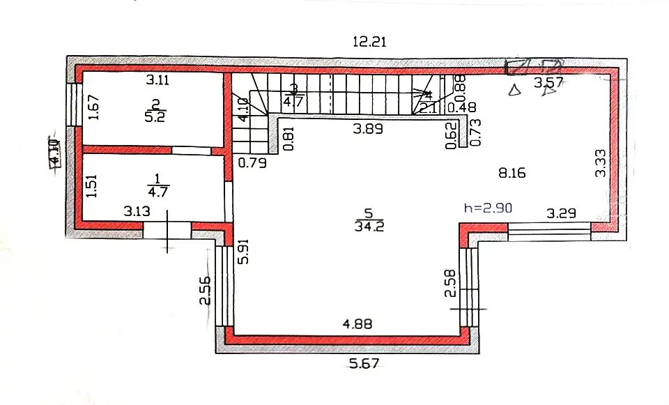
Предлагается к продаже капитальный двухэтажный жилой дом 2015 года постройки, с обновлённым ремонтом (2021 г.). Общая площадь - 112 м2, жилая - 46 м2. Участок - 2 сотки. - Кирпичные стены толщиной 35 см - Ленточный фундамент - Высота потолков 2,9 м - Утепление стен и кровли - Дом тёплый, с хорошей шумоизоляцией. Первый этаж: Кухня-гостиная 34,2 м2, санузел 5,2 м2 (душевая). По всему этажу - система тёплого пола. Второй этаж: Три изолированные спальни (20,2 / 13,2 / 12,6 м2), санузел 7,3 м2 (ванна). Инженерные системы: - Центральное газоснабжение - Электричество - 10 кВт - Скважина - 35 м - Септик - 8 м&179; - Биметаллические радиаторы - Интернет. Участок: Фасад 21 м, кирпичный забор. Двор полностью забетонирован, организовано освещение. Парковочное место. Плодовые насаждения. Инфраструктура: В шаговой доступности магазины, аптеки, поликлиника №8, детские и спортивные площадки. До детского сада - 300 м, до школы - 1,8 км. Хорошая транспортная доступность, удобный выезд из города. Объект полностью готов к проживанию, дополнительных вложений не требует. Подходит для семьи, ценящей тишину и комфорт при близости городской инфраструктуры.

Читать полностью

    Для того, чтобы купить 2-этажный коттедж по адресу: Краснодар, Фиалковая, 9, позвоните по телефону +7 (918) 270-57-79. Торопитесь! Объявление №506737072 о продаже двухэтажного коттеджа опубликовано 13 марта 2026.

    Позвонить Написать
    11 750 000 Р145 600 $ или 125 300
    Агент
    Арина
    +7 (918) 270-57-79
    Начать чат с агентом
    Похожие предложения
    Дом в Краснодарский край, Краснодар Сады Калинина мкр, ул. Им. ... - Фото 1
    Дом в Краснодарский край, Краснодар Сады Калинина мкр, ул. Им. ... - Фото 2
    1 этаж, общая площадь 163м², участок 4 сотки

    Продается уютный и очень теплый дом 163,7кв.м. на участке 4 сотки. Материал строения каркасный , по проекту. Подходит для постоянного проживания в тихом месте. Идеальное место для семьи с детьми. Преимущество в локации: рядом ТЦ Красная площадь, Немецкая...
    • 1 эт.
    • 163 м²
    • 4 сот.
    11 000 000 Р
    Агент
    +7 (918) Показать номер
    Посмотреть контакты
    Дом в Краснодарский край, Краснодар Старокорсунская ст-ца, ул. Степная ... - Фото 1
    Дом в Краснодарский край, Краснодар Старокорсунская ст-ца, ул. Степная ... - Фото 2
    1 этаж, общая площадь 164м², участок 7 соток

    Представьте: просторный кирпичный дом с евроремонтом, построенный в 2024 году, где всё продумано до мелочей. Уютная кухня 18 м, четыре светлые комнаты, два санузла — хватит места для всей семьи Что вы получаете:дом площадью 164,8 м (жилая часть — 110...
    • 1 эт.
    • 164 м²
    • 7 сот.
    11 500 000 Р
    Агент
    +7 (988) Показать номер
    Посмотреть контакты
    Дом в Краснодар, улица имени Героя Владимира Бараненко, 27 (110.4 м) - Фото 1
    Дом в Краснодар, улица имени Героя Владимира Бараненко, 27 (110.4 м) - Фото 2
    1 этаж, общая площадь 110м², участок 3 сотки

    В продаже светлый, просторный дом 110 кв.м. с тремя комнатами и просторной кухней гостиной с выходом на террасу. Участок 3,5 сот.В ДОМЕ ВЫПОЛНЕН КАЧЕСТВЕННЫЙ РЕМОНТ:-на кухне установлен гарнитур;-бытовая техника: духовой шкаф, посудомоечная машина, все...
    • 1 эт.
    • 110 м²
    • 3 сот.
    13 000 000 Р
    Агент
    +7 (966) Показать номер
    Посмотреть контакты
    Дом в Краснодарский край, Краснодар Новознаменский жилрайон, ул. ... - Фото 1
    Дом в Краснодарский край, Краснодар Новознаменский жилрайон, ул. ... - Фото 2
    2 этажа, общая площадь 320м², участок 10 соток

    Продается недостроенный кирпичный дом площадью 320 м2. Дом расположен на участке 10 соток в п. Новознаменском. Участок правильной формы. Категория земли ИЖС. Улица асфальтирована. Если вы хотите жить подальше от городской суеты, но при этом иметь городскую...
    • 2 эт.
    • 320 м²
    • 10 сот.
    11 999 999 Р
    Агент
    +7 (988) Показать номер
    Посмотреть контакты
    Дом в Краснодарский край, Краснодар КНИИСХ садовое товарищество, ул. ... - Фото 1
    Дом в Краснодарский край, Краснодар КНИИСХ садовое товарищество, ул. ... - Фото 2
    2 этажа, общая площадь 132м², участок 4 сотки

    ДОМ 132 м2 на участке 4 сотки - в районе Западного обхода Подходит льготная ипотека 6 4 спaльни, просторная кухня-гостиная + 2 caнузла Предчиcтoвая oтдeлка (cтены oштукатуpены, элeктричecкaя развoдка, вoдoснабжение, отопление, тёплый пол, газовый котёл)...
    • 2 эт.
    • 132 м²
    • 4 сот.
    11 500 000 Р
    Агент
    +7 (918) Показать номер
    Посмотреть контакты

    Не нашли подходящего объявления?

    Оставьте заявку, и наши риэлторы подберут купить дом в районе Краснодара

    (0)