17 500 000 Р 217 100 $ или 187 300

Информация о коттедже

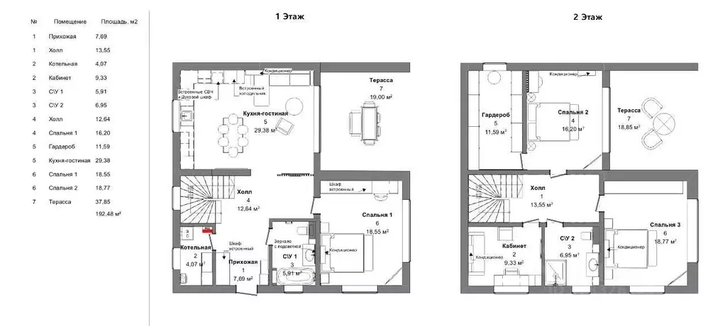
275 м2
Площадь
2
Этажность
6 cоток
Участок

Дополнительная информация

Дом продаётся вместе с участком
есть
Развернуть
Агент
+7 (918) 380-81-46
Начать чат с агентом

Дом в Краснодарский край, Краснодар Знаменский ДНТ, ул. Кубанская, 16 ...

В продаже современный качественный дом в стиле Хай Тек с центральным газом.В доме выполнена отличная предчистовая отделка и стяжка, эксплуатируемая кровля, 270 м2 на участке правильной формы с широким фасадом6 сот. земли, электрические ворота.Дом строился для себя, все используемые материалы качественные, монолитно-кирпичная постройка, по всему дому теплый пол. Облицовка дома из клинкерного кирпича Звоните Арт.

Читать полностью

    Для того, чтобы купить 2-этажный коттедж по адресу: Краснодар, ул. Кубанская, 16, позвоните по телефону +7 (918) 380-81-46. Торопитесь! Объявление №50016886089 о продаже двухэтажного коттеджа опубликовано Вчера.

    Позвонить Написать
    17 500 000 Р217 100 $ или 187 300
    Агент
    +7 (918) 380-81-46
    Начать чат с агентом
    Похожие предложения
    Дом в Краснодарский край, Краснодар Интернациональный бул., 51 (325 м) - Фото 1
    Дом в Краснодарский край, Краснодар Интернациональный бул., 51 (325 м) - Фото 2
    3 этажа, общая площадь 325м², участок 5 соток

    Дом 325 кв.м, Интернациональный бульвар, 51, участок 5 сот., Прикубанский районПродаётся трёхэтажный кирпичный дом общей площадью 325 кв.м на участке 5 соток. Категория земель - земли населённых пунктов, форма владения - частная собственность.Дом построен...
    • 3 эт.
    • 325 м²
    • 5 сот.
    18 000 000 Р
    Агент
    +7 (988) Показать номер
    Посмотреть контакты
    Коттедж в Краснодарский край, Краснодар ул. Имени Ивана Тушева, 27 ... - Фото 1
    Коттедж в Краснодарский край, Краснодар ул. Имени Ивана Тушева, 27 ... - Фото 2
    2 этажа, общая площадь 167м², участок 6 соток

    Дом 195м2 с видом на аллею в Николино Парк-2.Покупателю дизайн проект в Подходит под Семейную ипотеку -Полностью из кирпича (забутовочный кирпич и облицовка - керамический) -Центральные коммуникации-Охраняемая территория-Бетонные дороги -Прогулочная...
    • 2 эт.
    • 167 м²
    • 6 сот.
    19 000 000 Р
    Агент
    +7 (989) Показать номер
    Посмотреть контакты
    Дом в Краснодар, ДНТ Нижний Казачий Хутор, Щупляковская улица, 16 ... - Фото 1
    Дом в Краснодар, ДНТ Нижний Казачий Хутор, Щупляковская улица, 16 ... - Фото 2
    2 этажа, общая площадь 165м², участок 10 соток

    Продается уютный дом в живописном коттеджном поселке Нижний Казачий хутор Ваш идеальный уголок для жизни на 10 сотках земли Этот просторный дом площадью 166 кв. м был построен для себя с учетом всех нюансов и тонкостей, включая принципы фэншуй, чтобы...
    • 2 эт.
    • 165 м²
    • 10 сот.
    17 000 000 Р
    Агент
    +7 (918) Показать номер
    Посмотреть контакты
    Дом в Краснодарский край, Краснодар ул. Придорожная, 25/1 (140 м) - Фото 1
    Дом в Краснодарский край, Краснодар ул. Придорожная, 25/1 (140 м) - Фото 2
    2 этажа, общая площадь 140м², участок 3 сотки

    продаю дом не как агент ,от собственника .О доме можно писать много хорошего. Построен для себя, это говорит о многом. Стоит один раз приехать и увидеть . Да,Западный обход, да, сейчас есть пробки ,но ,Школа, сад, магазины, все в шаговой доступности ...
    • 2 эт.
    • 140 м²
    • 3 сот.
    17 600 000 Р
    Агент
    +7 (918) Показать номер
    Посмотреть контакты
    Дом в Краснодар, улица 2-я Линия, 312 (72 м) - Фото 1
    Дом в Краснодар, улица 2-я Линия, 312 (72 м) - Фото 2
    1 этаж, общая площадь 72м², участок 5 соток

    Арт.Продаётся два жилых 60,9 кв.м. и 28,9 кв.м. дома на земельном участке 5 соток.
    • 1 эт.
    • 72 м²
    • 5 сот.
    18 000 000 Р
    Агент
    +7 (938) Показать номер
    Посмотреть контакты

    Не нашли подходящего объявления?

    Оставьте заявку, и наши риэлторы подберут купить дом в районе Краснодара

    (0)