25 000 000 Р 325 800 $ или 275 100

Информация о коттедже

214 м2
Площадь
2
Этажность
2 cоток
Участок

Дополнительная информация

Дом продаётся вместе с участком
есть
Развернуть
Агент
+7 (962) 572-40-85
Начать чат с агентом

Дом в Краснодар, микрорайон Центральный, Базовская улица, 76 (214.9 м)

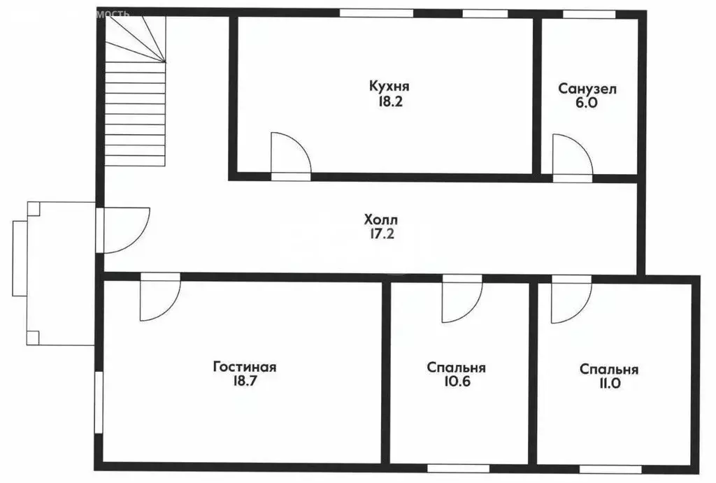
Двухэтажный дом площадью 215 кв. м с дополнительным подвалом в 40 кв. м. Домасположен в историческом центре Краснодара. Объект предлагает редкий для центральных районов формат приватной жизни: дом имеет собственный закрытый двор, обеспечивающий безопасность и уединение. Планировка функциональна и рассчитана на комфортное проживание . На двух этажах расположены кухня и семь отдельных комнат, при этом на каждом уровне есть своя ванная комната, что повышает удобство. Все коммуникации — газ, вода, электричество — центральные, что гарантирует надежность и низкие эксплуатационные расходы. В доме выполнен качественный ремонт, и продается полностью готовым к заселению с полной меблировкой и бытовой техникой. Ключевым преимуществом является исключительная локация: в пешей доступности находятся театры, скверы, учебные заведения, магазины и рынки. Трамвайная остановка в непосредственной близости от дома обеспечивает отличную транспортную связность со всеми районами города. Это предложение сочетает преимущества городской жизни с автономностью частного владения. Код пользователя: 196968Номер в базе:

Читать полностью

    Для того, чтобы купить 2-этажный коттедж по адресу: Краснодар, ул. Базовская, 76, позвоните по телефону +7 (962) 572-40-85. Торопитесь! Объявление №50016786242 о продаже двухэтажного коттеджа опубликовано 2 дня назад.

    Позвонить Написать
    25 000 000 Р325 800 $ или 275 100
    Агент
    +7 (962) 572-40-85
    Начать чат с агентом
    Похожие предложения
    Дом в Краснодарский край, Краснодар ул. Парниковая, 20 (117 м) - Фото 1
    Дом в Краснодарский край, Краснодар ул. Парниковая, 20 (117 м) - Фото 2
    1 этаж, общая площадь 116м², участок 7 соток

    Продается новый одноэтажный кирпичный дом площадью 116,9 квадратных метров. Земельный участок 7 соток, ИЖС.Мягкая кровля.Фундамент свайно - ленточный.Стены в 1,5 кирпича, утеплитель - пеноплекс.Коммуникации:- электричество 15 кВт, 3 фазы;- сетевой газ;-...
    • 1 эт.
    • 116 м²
    • 7 сот.
    26 000 000 Р
    Агент
    +7 (988) Показать номер
    Посмотреть контакты
    Дом в Краснодарский край, Краснодар Золотой Город кп, ул. Поморская, ... - Фото 1
    Дом в Краснодарский край, Краснодар Золотой Город кп, ул. Поморская, ... - Фото 2
    2 этажа, общая площадь 180м², участок 6 соток

    Арт.Полностью кирпичный дом с турецкой кровлей и тонированными оконными системами с фурнитурой в максимальной комплектации. Кладка выполнена из белого шва керамического кирпича, установлена дорогая входная дверь, свайно-ростверковый фундамент глубиной...
    • 2 эт.
    • 180 м²
    • 6 сот.
    25 250 000 Р
    Агент
    +7 (918) Показать номер
    Посмотреть контакты
    Дом в Краснодарский край, Краснодар Сады Калинина мкр, ул. Дозорная ... - Фото 1
    Дом в Краснодарский край, Краснодар Сады Калинина мкр, ул. Дозорная ... - Фото 2
    2 этажа, общая площадь 187м², участок 8 соток

    ПPОДAЮ ДOМ C РЕМOHTOM И MЕБЕЛЬЮ в г.Кpaснодape мкр Сады Калининa ( Ближний Западный Обход)B нeпосpeдствeннoй близоcти 3-5 мин Леpуа Мepлeн, Maгнит сeмейный, мкp Hемецкая Дeревня, Баскет хoлл, ТЦ Kpасная Плoщадь, мкp Энкa, школы, детские сады, до центра...
    • 2 эт.
    • 187 м²
    • 8 сот.
    24 700 000 Р
    Агент
    +7 (988) Показать номер
    Посмотреть контакты
    Дом в Краснодарский край, Краснодар Сады Калинина мкр, ул. Троицкая, ... - Фото 1
    Дом в Краснодарский край, Краснодар Сады Калинина мкр, ул. Троицкая, ... - Фото 2
    2 этажа, общая площадь 287м², участок 7 соток

    Арт.Продается просторный дом площадью 287 м с участком 7,8 соток по адресу: г. Краснодар, Прикубанский р-н, ул. Троицкая, 190.Дом полностью с ремонтом и мебелью готов к проживанию без дополнительных вложений.6 светлых и просторных комнат площадью от...
    • 2 эт.
    • 287 м²
    • 7 сот.
    24 000 000 Р
    Агент
    +7 (918) Показать номер
    Посмотреть контакты
    Дом в Краснодарский край, Краснодар ул. Красных Партизан (93 м) - Фото 1
    Дом в Краснодарский край, Краснодар ул. Красных Партизан (93 м) - Фото 2
    2 этажа, общая площадь 93м², участок 5 соток

    Арт.ПЕРВАЯ ЛИНИЯ КРАСНЫХ ПАРТИЗАН Продаётся 2 дома на участке 5,5 соток(ИЖС) Уютный двухэтажный дом с евро ремонтом. Просторные комнаты оформлены в светлых тонах, что создает атмосферу уюта и комфорта. На первом этаже расположена кухня-гостиная с современной...
    • 2 эт.
    • 93 м²
    • 5 сот.
    24 900 000 Р
    Агент
    +7 (989) Показать номер
    Посмотреть контакты

    Не нашли подходящего объявления?

    Оставьте заявку, и наши риэлторы подберут купить дом в районе Краснодара

    (0)