Россия, Краснодарский край, Краснодар, микрорайон Центральный
10 000 000 Р 131 500 $ или 109 900

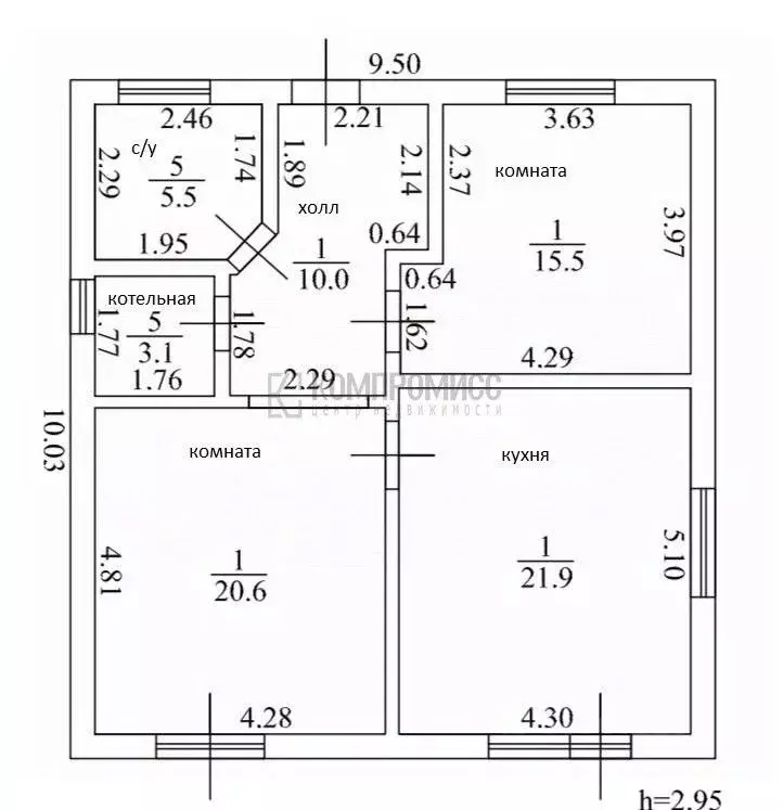
Информация о коттедже

84 м2
Площадь
1
Этажность
6 cоток
Участок

Дополнительная информация

Дом продаётся вместе с участком
есть
Развернуть
Агент
+7 (918) 627-43-40
Начать чат с агентом

Дом в Краснодар, микрорайон Центральный, ЖК Краснодар (84.8 м)

Продается жилой дом в хуторе Ленина, Краснодар.В непосредственной близости расположены все необходимые объекты инфраструктуры: магазины, школы, детские сады, коммерческие учреждения и остановки общественного транспорта.Если вы мечтаете о жизни в экологически чистом районе Краснодара, этот дом станет для вас идеальным выбором.Не упустите возможность, свяжитесь со мной для получения дополнительной информации. Код объекта: .

Читать полностью

    Для того, чтобы купить 1-этажный коттедж по адресу: Краснодар, микрорайон Центральный, позвоните по телефону +7 (918) 627-43-40. Торопитесь! Объявление №50016741328 о продаже одноэтажного коттеджа опубликовано Сегодня.

    Позвонить Написать
    10 000 000 Р131 500 $ или 109 900
    Агент
    +7 (918) 627-43-40
    Начать чат с агентом
    Похожие предложения в Краснодаре
    Дом в Краснодарский край, Краснодар Золотой Город кп, ул. Городецкая, ... - Фото 1
    Дом в Краснодарский край, Краснодар Золотой Город кп, ул. Городецкая, ... - Фото 2
    1 этаж, общая площадь 81м², участок 3 сотки

    Арт.Продаётся очень уютный дом в п. Северном, кп Золотой Город. Лучший район краснодара для жизни в частном доме. В пешей доступности есть абсолютно всё, что необходимо: магазины, пвз, остановки общественного транспорта, фитнес центры, пекарни, кофейни...
    • 1 эт.
    • 81 м²
    • 3 сот.
    9 000 000 Р
    Агент
    +7 (989) Показать номер
    Посмотреть контакты
    Дом в Краснодарский край, Краснодар ул. Имени Лаперуза (106 м) - Фото 1
    Дом в Краснодарский край, Краснодар ул. Имени Лаперуза (106 м) - Фото 2
    1 этаж, общая площадь 106м², участок 3 сотки

    Арт.Просторный одноэтажный дом в посёлке Российский. Район ул. Лаперуза.Новый благополучный частный сектор.Земля ИЖС.Дом грамотно посажен на участке, свободной земли достаточно.Все помещения в доме - просторные.Есть котельная.Установлены качественные...
    • 1 эт.
    • 106 м²
    • 3 сот.
    10 000 000 Р
    Агент
    +7 (918) Показать номер
    Посмотреть контакты
    Дом в Краснодарский край, Краснодар ул. Имени В.М. Комарова (82 м) - Фото 1
    Дом в Краснодарский край, Краснодар ул. Имени В.М. Комарова (82 м) - Фото 2
    1 этаж, общая площадь 82м², участок 6 соток

    Арт.Ваш идеальный дом на природе ждет вас Основные характеристики:Площадь: 82 м — уютное пространство для комфортной жизни.Материал: Качественный керамический кирпич, обеспечивающий отличную тепло- и звукоизоляцию.Участок: 6 соток земли — достаточно...
    • 1 эт.
    • 82 м²
    • 6 сот.
    10 500 000 Р
    Агент
    +7 (918) Показать номер
    Посмотреть контакты
    Дом в Краснодар, ЖК Краснодар Сити (111.5 м) - Фото 1
    Дом в Краснодар, ЖК Краснодар Сити (111.5 м) - Фото 2
    2 этажа, общая площадь 111м², участок 4 сотки

    Продаю дом в одном из лучших районов города, в поселке Северном.Дом построен полностью из кирпича, на материалах не экономили. На первом этаже 2 большие спальни, санузел и кухня, второй этаж полностью большая гостиная, есть место для гардеробных.Участок...
    • 2 эт.
    • 111 м²
    • 4 сот.
    9 000 000 Р
    Агент
    +7 (988) Показать номер
    Посмотреть контакты
    Дом в Краснодарский край, Краснодар ул. Володи Головатого, 118 (175 м) - Фото 1
    Дом в Краснодарский край, Краснодар ул. Володи Головатого, 118 (175 м) - Фото 2
    2 этажа, общая площадь 174м², участок 1 сотка

    В продаже шикарный дом, построен из качественных материалов Расположенный в центре города.Жить в центре в собственном доме - это красота Дом двухэтажный, общей площадью 174,6 м2.Подвал: коммуникации, комната для хранения, комната отдыха-кабинет ,...
    • 2 эт.
    • 174 м²
    • 1 сот.
    9 350 000 Р
    Агент
    +7 (989) Показать номер
    Посмотреть контакты

    Не нашли подходящего объявления?

    Оставьте заявку, и наши риэлторы подберут купить дом в районе Краснодара

    (0)