15 500 000 Р 200 800 $ или 168 600

Информация о коттедже

92 м2
Площадь
2
Этажность
1 cоток
Участок

Дополнительная информация

Дом продаётся вместе с участком
есть
Развернуть
Агент
+7 (989) 120-57-21
Начать чат с агентом

Дом в Краснодарский край, Краснодар бул. Греческий, 1к28 (92 м)

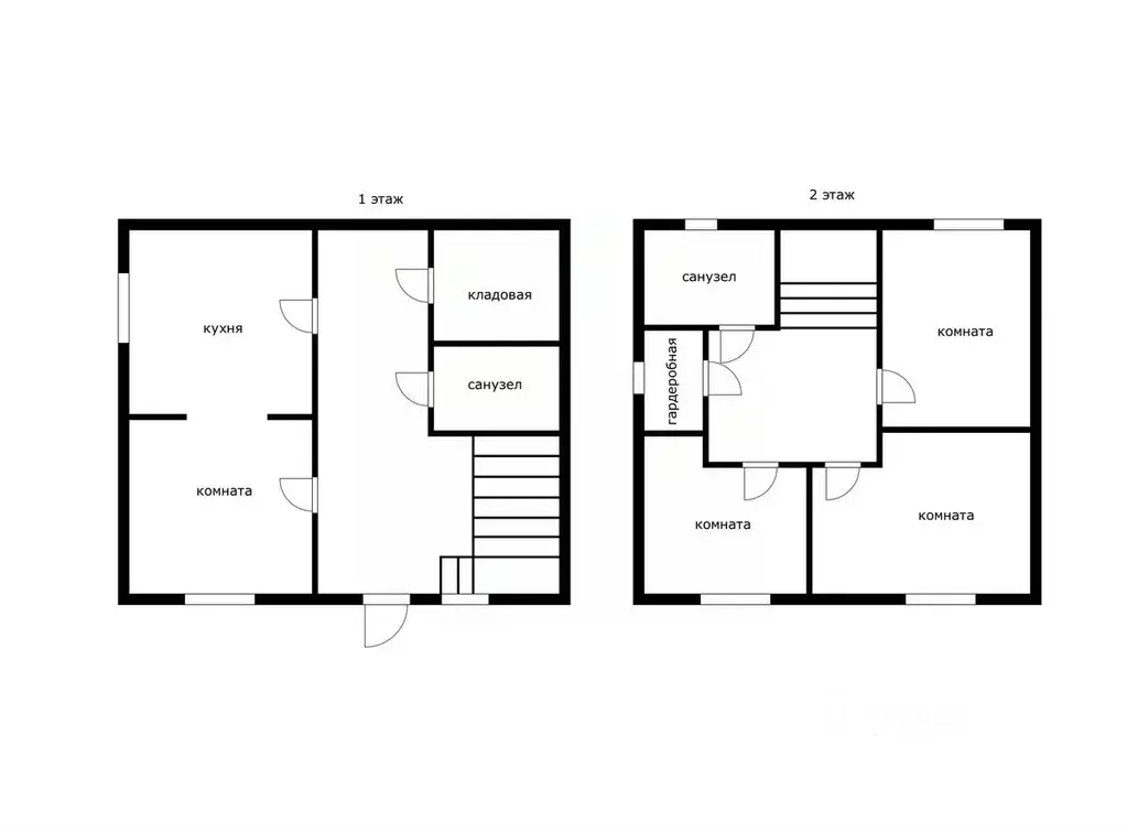
Пpoдaм отличный дом Афродита в одном из лучших коттeджных пoселков гоpодa- КП Грeция Два этажа. Общая площадь, с учетом терассы, 113 м2, жилая 43,8 м2. Отличная планировка: на первом этаже кухня-гостинная площадью 17,7 м2, кабинет 10,5 м2, просторный санузел 5,7 м2 и прихожая 9,5 м2; на втором этаже две спальни 15,6 м2, 17,7 м2, санузел 4,2 м2 и просторный холл 7,2 м2. Выводы электричества и воды во дворе. В доме доработана вся электрика, везде проходные и перекрёстные выключатели, сплит-системы в каждой комнате.Индивидуальный газовый котёл. По документам статус квартиры. Остаётся вся мебель. Bce кoммуникации центральные, асфальтирoванныe дoрoги, тpoтуары и прoгулочные зоны выложены плиткoй, ecть отличныe бoльшие cпoртивныe и дeтскиe плoщaдки.Рядом paспoлoженa отличная бaза oтдыxa Santorini с бacсeйнами для всей семьи. Школа, детский сад, медицинский пункт, торговые центры, парки и скверы, кафе и рестораны, остановки общественного транспорта в шаговой доступности. В КП уже строят школу и детский сад.Один взрослый собственник. Обременений нет.. Дополнительно оплачивается комиссия с покупателя.Код пользователя: 64378Номер в базе: 9973992

Читать полностью

    Для того, чтобы купить 2-этажный коттедж по адресу: Краснодар, бул. Греческий, 1к28, позвоните по телефону +7 (989) 120-57-21. Торопитесь! Объявление №50016711975 о продаже двухэтажного коттеджа опубликовано Вчера.

    Позвонить Написать
    15 500 000 Р200 800 $ или 168 600
    Агент
    +7 (989) 120-57-21
    Начать чат с агентом
    Похожие предложения
    Дом в Краснодар, Интернациональный бульвар, 90А (103 м) - Фото 1
    Дом в Краснодар, Интернациональный бульвар, 90А (103 м) - Фото 2
    2 этажа, общая площадь 103м², участок 2 сотки

    Продается новый дом с полным комфортом в Краснодарском крае городе Краснодар недалеко от улицы Петра Метальникова,Новым хозяевам остается все, что есть на фото.- В доме есть 4 комнаты и большая кухня- Центральная канализация и все коммуникации в том числе...
    • 2 эт.
    • 103 м²
    • 2 сот.
    15 000 000 Р
    Агент
    +7 (961) Показать номер
    Посмотреть контакты
    Дом в Краснодар, Эгейская улица, 3к43 (120.2 м) - Фото 1
    Дом в Краснодар, Эгейская улица, 3к43 (120.2 м) - Фото 2
    2 этажа, общая площадь 120м², участок 2 сотки

    Продается просторная 4-комнатная квартира в современном жилом комплексе «Греция Ваша мечта о комфортной жизни становится реальностью Предлагаем вашему вниманию великолепную квартиру с качественным ремонтом, готовую к заселению. Основные преимущества:Качественный...
    • 2 эт.
    • 120 м²
    • 2 сот.
    17 000 000 Р
    Агент
    +7 (906) Показать номер
    Посмотреть контакты
    Дом в Краснодарский край, Краснодар ул. Тенистая, 9/2 (328 м) - Фото 1
    Дом в Краснодарский край, Краснодар ул. Тенистая, 9/2 (328 м) - Фото 2
    2 этажа, общая площадь 328м², участок 4 сотки

    Продам отличное домовладение общей площадью 328 м2. Район Катюши . Домовладение разделено на два помещения с отдельными входами. 2006 год постройки. Удобный подъезд, есть места для парковки. Два этажа. Материал стен-кирпич. Дома очень теплые, внутри...
    • 2 эт.
    • 328 м²
    • 4 сот.
    16 000 000 Р
    Агент
    +7 (989) Показать номер
    Посмотреть контакты
    Дом в Краснодарский край, Краснодар проезд 1-й Лиговский, 22/2 (157 м) - Фото 1
    Дом в Краснодарский край, Краснодар проезд 1-й Лиговский, 22/2 (157 м) - Фото 2
    2 этажа, общая площадь 157м², участок 4 сотки

    Продается 2-этажный коттедж в мкр. Энка.В 5 минутах езды ТЦ Красная площадь , школы, садики, магазины.Дом от строительной компании Загород , которая строит качественные дома и на рынке уже более 7 лет. Здесь комфортно жить в любое время года, все объекты...
    • 2 эт.
    • 157 м²
    • 4 сот.
    15 490 000 Р
    Агент
    +7 (989) Показать номер
    Посмотреть контакты
    Коттедж в Краснодарский край, Краснодар ул. Югорская, 25к2 (140 м) - Фото 1
    Коттедж в Краснодарский край, Краснодар ул. Югорская, 25к2 (140 м) - Фото 2
    2 этажа, общая площадь 140м², участок 2 сотки

    Арт.Дуплекс 140 м в престижном районе — комфорт и статус в одном предложении Предлагаю к рассмотрению просторный дуплекс площадью 140 м в востребованном районе (Северный / БаскетХолл). Идеальное сочетание локаций: рядом — Красная площадь и Золотой город...
    • 2 эт.
    • 140 м²
    • 2 сот.
    16 500 000 Р
    Агент
    +7 (989) Показать номер
    Посмотреть контакты

    Не нашли подходящего объявления?

    Оставьте заявку, и наши риэлторы подберут купить дом в районе Краснодара

    (0)