Реализация объекта недвижимости приостановлена

Информация о коттедже

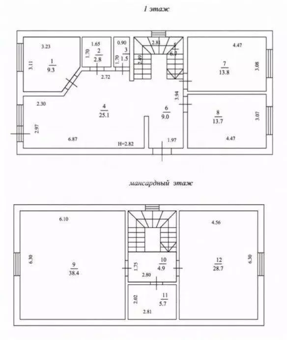
130.0 м2
Площадь
2
Этажность
4.0 cоток
Участок

Дополнительная информация

Дом продаётся вместе с участком
есть
Развернуть

Дом в Краснодарский край, Краснодар КНИИСХ садовое товарищество, ул. ...

Арт.Продам дом район ТРЦ Красная площадь. Рядом школа, детс.сад. до центра города 20 мин.Дом 2025 г постройки, 4 сотки земли, 4 комнаты и кухня гостинная. ПЧО

Читать полностью

    Реализация объекта недвижимости приостановлена

    Не нашли подходящего объявления?

    Оставьте заявку, и наши риэлторы подберут купить дом в районе Краснодара

    (0)