Россия, Краснодарский край, Краснодар, Прикубанский внутригородской округ
6 000 000 Р 76 340 $ или 65 570

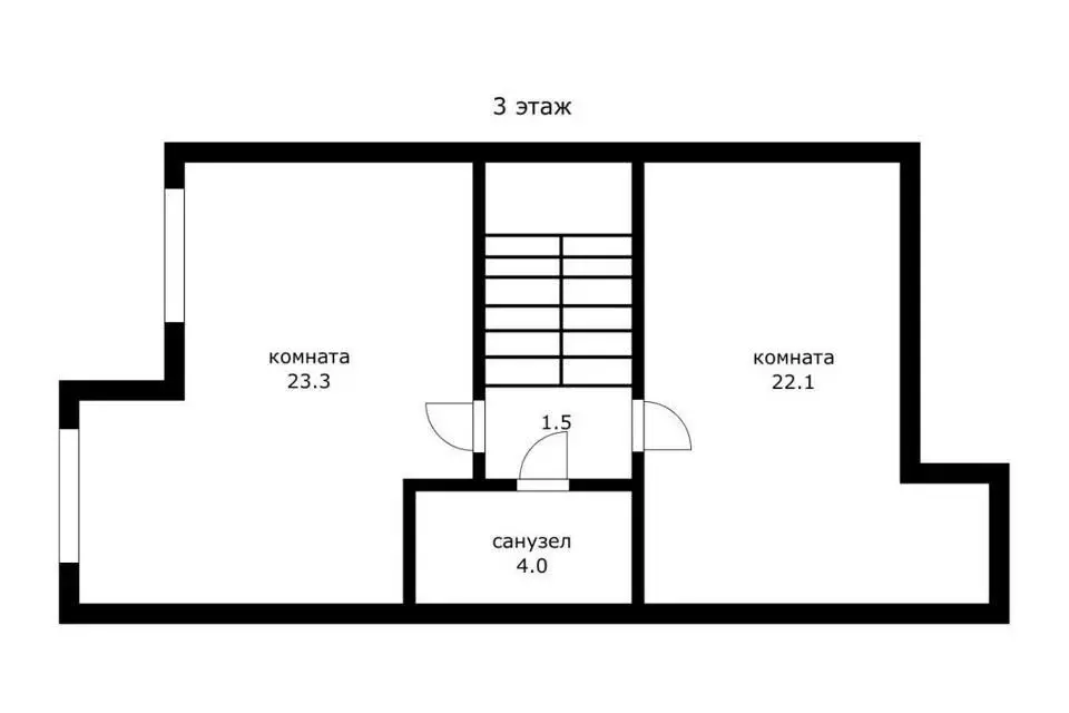
Информация о коттедже

130 м2
Площадь
2
Этажность
5 cоток
Участок

Дополнительная информация

Дом продаётся вместе с участком
есть
Развернуть
Агент
+7 (938) 525-47-61
Начать чат с агентом

Дом в Краснодар, Прикубанский внутригородской округ, Новый микрорайон ...

Арт.Продам новый дом в 130 м/кв. На участке ИЖС 5 соток. Дом построен из качественных строительных материалов с соблюдением всех строительных норм и СНИПов. Сделана отличная предчистовая отделка, которая включает в себя: разводку электричества, отопления, теплые полы и пр. Монолитные перекрытия. Второй свет по лестнице, много интересных дизайнерских решений. Удобная планировка. Большая кухня гостинная с выходом на терасу. Участок ровный, большой, правильной формы с отличным подъездом. Можно разместить все И баню, и беседку с мангалом. Бетонная площадка под два авто. Вся развитая инфраструктура включая школу и различную коммерцию рядом. Документы готовы к продаже. От застройщика. Ипотека от 6 . Материнский капитал.

Читать полностью

    Для того, чтобы купить 2-этажный коттедж по адресу: Краснодар, Прикубанский внутригородской округ, позвоните по телефону +7 (938) 525-47-61. Торопитесь! Объявление №50016602085 о продаже двухэтажного коттеджа опубликовано 2 дня назад.

    Позвонить Написать
    6 000 000 Р76 340 $ или 65 570
    Агент
    +7 (938) 525-47-61
    Начать чат с агентом
    Похожие предложения в Краснодаре
    Дом в Краснодарский край, Краснодар Животновод садовое товарищество, ... - Фото 1
    Дом в Краснодарский край, Краснодар Животновод садовое товарищество, ... - Фото 2
    2 этажа, общая площадь 50м², участок 4 сотки

    Продаётся уютный полутораэтажный дом в СТ Животновод Дом в хорошем состоянии, готов к проживанию. Приятный бонус - остаётся вся мебель и бытовая техника, так что вам не придется тратить время и деньги на обустройство.Расположение просто отличное: всё...
    • 2 эт.
    • 50 м²
    • 4 сот.
    5 999 000 Р
    Агент
    +7 (953) Показать номер
    Посмотреть контакты
    Дом в Краснодар, 2-й Звенигородский проезд, 44к2 (128.3 м) - Фото 1
    Дом в Краснодар, 2-й Звенигородский проезд, 44к2 (128.3 м) - Фото 2
    3 этажа, общая площадь 128м², участок 2 сотки

    Арт.Продам уютный таунхаус с самой популярной и редкой планировкой, с двумя балконами, в одном из лучших коттеджных поселков. На первом этаже просторная кухня-гостиная с витражным выходом в зону барбекю и лаундж-зону, кабинет, санузел и гардеробная....
    • 3 эт.
    • 128 м²
    • 2 сот.
    5 900 000 Р
    Агент
    +7 (938) Показать номер
    Посмотреть контакты
    Дом в Краснодар, 2-й Звенигородский проезд, 59 (128 м) - Фото 1
    Дом в Краснодар, 2-й Звенигородский проезд, 59 (128 м) - Фото 2
    3 этажа, общая площадь 128м², участок 2 сотки

    Арт.Продам уютный таунхаус с самой популярной и редкой планировкой, с двумя балконами, в одном из лучших коттеджных поселков. На первом этаже просторная кухня-гостиная с витражным выходом в зону барбекю и лаундж-зону, кабинет, санузел и гардеробная....
    • 3 эт.
    • 128 м²
    • 2 сот.
    6 098 000 Р
    Агент
    +7 (938) Показать номер
    Посмотреть контакты
    Дом в Краснодар, Прикубанский внутригородской округ, Новый микрорайон ... - Фото 1
    Дом в Краснодар, Прикубанский внутригородской округ, Новый микрорайон ... - Фото 2
    2 этажа, общая площадь 140м², участок 4 сотки

    Арт.Продам новый дом в 140 м/кв. На участке ИЖС 4 сотоки. Дом построен из качественных строительных материалов с соблюдением всех строительных норм и СНИПов. Сделана отличная предчистовая отделка, которая включает в себя: разводку электричества, отопления,...
    • 2 эт.
    • 140 м²
    • 4 сот.
    6 000 000 Р
    Агент
    +7 (938) Показать номер
    Посмотреть контакты
    Коттедж в Краснодарский край, Краснодар Аэропорт садовое товарищество, ... - Фото 1
    Коттедж в Краснодарский край, Краснодар Аэропорт садовое товарищество, ... - Фото 2
    1 этаж, общая площадь 87м², участок 3 сотки

    АКЦИЯ ЦЕНА СНИЖЕНА На новый коттедж в микрорайоне Ростовское шоссе, ближайшая локация от поселка Южного. Хорошее местоположение: улица широкая, до магазинов и остановки общественного транспорта — 5 минут ходьбы.Коттедж общей площадью 87 кв.м расположен...
    • 1 эт.
    • 87 м²
    • 3 сот.
    5 900 000 Р
    Агент
    +7 (918) Показать номер
    Посмотреть контакты

    Не нашли подходящего объявления?

    Оставьте заявку, и наши риэлторы подберут купить дом в районе Краснодара

    (0)