11 350 000 Р 143 100 $ или 122 200

Информация о коттедже

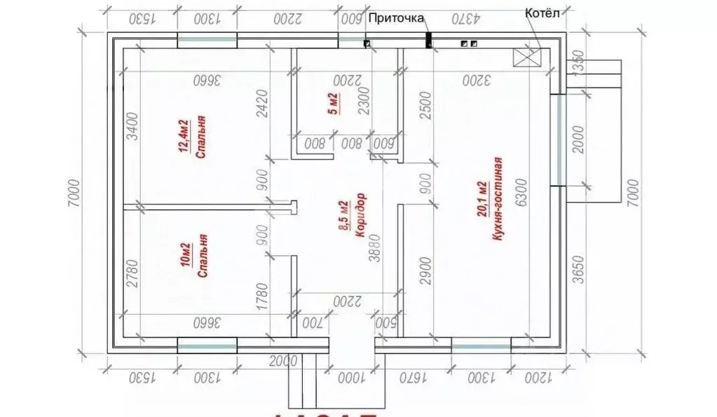
61 м2
Площадь
1
Этажность
3 cоток
Участок

Дополнительная информация

Дом продаётся вместе с участком
есть
Развернуть
Агент
+7 (918) 993-01-17
Начать чат с агентом

Дом в Краснодарский край, Краснодар ул. Куликова Поля, 74/1 (62 м)

Арт.Продается уютный одноэтажный дом в живописном районе Краснодара. Этот объект с юридическим статусом ИЖС и приватизированным земельным участком площадью 3 сотки идеальный выбор для тех, кто ищет комфорт и спокойствие, не отказываясь от городской инфраструктуры. Построенный в 2019 году, дом находится в отличном состоянии и полностью готов к проживанию. Общая площадь составляет 61,5 м, включая две просторные комнаты и светлую кухню площадью 23,8 м и выходом на задний двор — идеальное место для семейных встреч и кулинарных экспериментов. Современный евроремонт и качественная отделка с мебелью и техникой создают атмосферу уюта и тепла.Ваш комфорт обеспечен благодаря электрическому отоплению, локальной канализации и скважине с питьевой водой. Также возможно подключение газа. Отдельный двор и удобный подъезд, высажены фруктовые деревья и цветы сделают ваше пребывание здесь максимально комфортным. Для любителей общественного транспорта — остановка автобусов в шаговой доступности.Не упустите возможность приобрести этот замечательный дом Онлайн-показ доступен в удобное для вас время. Звоните и записывайтесь на просмотр, чтобы оценить все преимущества жизни в этом прекрасном доме

Читать полностью

    Для того, чтобы купить 1-этажный коттедж по адресу: Краснодар, ул. Куликова Поля, 74/1, позвоните по телефону +7 (918) 993-01-17. Торопитесь! Объявление №50016492125 о продаже одноэтажного коттеджа опубликовано 2 дня назад.

    Позвонить Написать
    11 350 000 Р143 100 $ или 122 200
    Агент
    +7 (918) 993-01-17
    Начать чат с агентом
    Похожие предложения
    Коттедж в Краснодарский край, Краснодар Изумрудный Город кп, ул. ... - Фото 1
    Коттедж в Краснодарский край, Краснодар Изумрудный Город кп, ул. ... - Фото 2
    1 этаж, общая площадь 77м², участок 3 сотки

    Предлагается к продаже не просто дом, а готовое семейное гнездышко с уютом. Качественный коттедж в одном из лучших кварталов для жизни — жилом комплексе Изумрудный город . О доме:Этот дом площадью 77 кв.м.построен с любовью и вниманием к деталям. После...
    • 1 эт.
    • 77 м²
    • 3 сот.
    11 500 000 Р
    Агент
    +7 (989) Показать номер
    Посмотреть контакты
    Дом в Краснодарский край, Краснодар ул. Западный обход (54 м) - Фото 1
    Дом в Краснодарский край, Краснодар ул. Западный обход (54 м) - Фото 2
    1 этаж, общая площадь 54м², участок 10 соток

    Продается дом на земельном участке 10 сот., фасад участка 20 м.. Дом жилой, косметически ремонт можно обновить под себя, высота потолков 3.05, толщина стен 40 см, перегородки кирпичные, три комнаты, кухня 14.9 м2, санузел 4 м2. есть возможность закончить...
    • 1 эт.
    • 54 м²
    • 10 сот.
    11 500 000 Р
    Агент
    +7 (988) Показать номер
    Посмотреть контакты
    Дом в Краснодарский край, Краснодар ул. Имени Героя Романа Филипова, ... - Фото 1
    Дом в Краснодарский край, Краснодар ул. Имени Героя Романа Филипова, ... - Фото 2
    2 этажа, общая площадь 130м², участок 2 сотки

    ПОКАЗ В ДЕНЬ ЗВОНКА ГАРАНТИРУЕМ БЕЗ ВИЗИТА В ОФИС ПРОДАЖА БЕЗ КОМИССИИ Продается новый современный одноэтажный дом с жилой мансардой во вновь построенном коттеджном посёлке Изумрудный Город, площадью 120 кв.м., на 2 сотках земли в хорошей локации поселка,...
    • 2 эт.
    • 130 м²
    • 2 сот.
    10 100 000 Р
    Агент
    +7 (989) Показать номер
    Посмотреть контакты
    Дом в Краснодарский край, Краснодар Пашковский жилмассив, ул. Плиева, ... - Фото 1
    Дом в Краснодарский край, Краснодар Пашковский жилмассив, ул. Плиева, ... - Фото 2
    1 этаж, общая площадь 56м², участок 7 соток

    Арт.Продаются два дома на участке 7 соток в Пашковском мкр.Оба дома жилые и готовы к заселению.Первый дом:• Площадь: 56,7 м• Год постройки: 2004• Материал: кирпич• Планировка: 3 комнаты, кухня, прихожая, совмещенный санузел• Удобства: все удобства в доме,...
    • 1 эт.
    • 56 м²
    • 7 сот.
    10 500 000 Р
    Агент
    +7 (918) Показать номер
    Посмотреть контакты
    Дом в Краснодарский край, Краснодар 1 Мая ул., 526/2 (77 м) - Фото 1
    Дом в Краснодарский край, Краснодар 1 Мая ул., 526/2 (77 м) - Фото 2
    1 этаж, общая площадь 76м², участок 7 соток

    Арт.. Продаётся надёжный кирпичный дом 76.5 кв.м., фасад 14, для жизни, который находится на ул. 1 Мая вблизи района Петра Метальникова. Вблизи супермаркеты, аптеки, салоны, автомойки, сто. Рядом школа и детский сад. Территория дома даёт возможность организовать...
    • 1 эт.
    • 76 м²
    • 7 сот.
    10 500 000 Р
    Агент
    +7 (989) Показать номер
    Посмотреть контакты

    Не нашли подходящего объявления?

    Оставьте заявку, и наши риэлторы подберут купить дом в районе Краснодара

    (0)