100 000 Р 1 230 $ или 1 050

Информация об помещении

1
Этаж

Состояние и оснащение

Количество этажей
1
Развернуть
Агент
+7 (918) 010-19-27
Начать чат с агентом

Помещение свободного назначения в Краснодарский край, Краснодар пос. ...

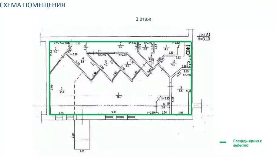
Сдаю помещение под сто, 150 мОт Собственника. Без комиссии- Прикубанский район- Поселок Индустриальный- Первая линия- Район высокой коммерческой активности- Высокий автомобильный трафик- Развитая транспортная инфраструктура- Остановка общественного транспорта- Территория имеет удобный подъезд- Отлично подойдет под СТО, автосервис, производство, хранение и другие виды коммерческой деятельности- К территории подходит хорошая асфальто - бетонная дорога- Ровная гравийная поверхность участка- Фасад хорошо просматривается с основной улицы- Прилегающая территория к ангару - 228 кв.м- Размер склада 12м х 12м- Высота потолка 4,5 м- Имеется смотровая яма- Ворота 4м х 3,6м- Бетонный пол- Проведено освещение- Доступ 24/7- 40 квт электричества 220/380От Собственника. Без комиссииПо всем вопросам можете обращаться к вашему персональному менеджеру:Айгуль Воробьева - консультант по коммерческой недвижимости.Большая база коммерческой недвижимости.От Собственника. Без комиссии Агентство регионального развития Коммерческая недвижимость Краснодара.От Собственника. Без комиссииПодписывайтесь на наш профиль, чтобы узнавать о новых локациях первыми Добавьте это объявление в избранное - чтобы не потерять.

Читать полностью
    Позвонить Написать
    100 000 Р1 230 $ или 1 050
    Агент
    +7 (918) 010-19-27
    Начать чат с агентом
    Похожие предложения
    Помещение свободного назначения в Краснодарский край, Новороссийск ... - Фото 1
    Помещение свободного назначения в Краснодарский край, Новороссийск ... - Фото 2
    Арт.Торговое помещение в проходной локацииЛокация: Первый этаж в здании с высоким пешеходным трафиком (удобное расположение для розничной торговли или услуг).Площадь: 115 м - Торговый зал: 85,7 м - Подсобное помещение: 10 м - Санузел: отдельный - Высокие...
    • 1/9 эт.
    110 000 Р
    Агент
    +7 (989) Показать номер
    Посмотреть контакты
    Помещение свободного назначения в Краснодарский край, Новороссийск ... - Фото 1
    Помещение свободного назначения в Краснодарский край, Новороссийск ... - Фото 2
    Арт.Сдам в длительную аренду коммерческое помещение свободного назначения в самом центре г.Новороссийска по ул. Советов.Помещение расположено на пятом этаже торгового центра Смена. -Площадь помещения 175 кв.м.-Два торговых зала, кабинет, подсобное помещение,...
    • 5/5 эт.
    110 000 Р
    Агент
    +7 (989) Показать номер
    Посмотреть контакты
    Помещение свободного назначения в Краснодарский край, Краснодар ... - Фото 1
    Помещение свободного назначения в Краснодарский край, Краснодар ... - Фото 2
    Помещение свободного назначения в Центральном округе, рядом с ЖК Гарантия на Обрывной Локация: г. Краснодар, ЦМР, ул. Обрывная 131/1. ЗУ и здания в собственности юр лица. С Января 2026г будет доступно для сдачи 2800м2 Отдельный въезд со своими откатными...
    • -1/2 эт.
    100 000 Р
    Агент
    +7 (988) Показать номер
    Посмотреть контакты
    Помещение свободного назначения в Краснодарский край, Краснодар бул. ... - Фото 1
    Помещение свободного назначения в Краснодарский край, Краснодар бул. ... - Фото 2
    Сдам в долгосрочную аренду коммерческое помещение свободного назначения в жк Титаны. об объекте: В помещении ремонт: пол- керамогранит, стены-покраска, потолок- Армстронг со светодиодными светильниками, установлена сплит система. Помещение угловое,...
    • 1/24 эт.
    99 000 Р
    Агент
    +7 (988) Показать номер
    Посмотреть контакты
    Помещение свободного назначения в Краснодарский край, Туапсе ул. ... - Фото 1
    Помещение свободного назначения в Краснодарский край, Туапсе ул. ... - Фото 2
    Сбер А предлагает к аренде нежилое помещение площадью 101,6 кв. м. расположенного по адресу: Краснодарский край, р-н. Туапсинский, г. Туапсе, ул. Войкова, д. 1Продажа посредством проведения торгов на электронной площадке Сбербанк-АСТ. Номер процедуры:...
    • 1/1 эт.
    91 765 Р
    Агент
    +7 (912) Показать номер
    Посмотреть контакты

    Не нашли подходящего объявления?

    Оставьте заявку, и наши риэлторы подберут псн в районе Индустриального

    (0)