15 000 000 Р 192 900 $ или 166 400

Информация об помещении

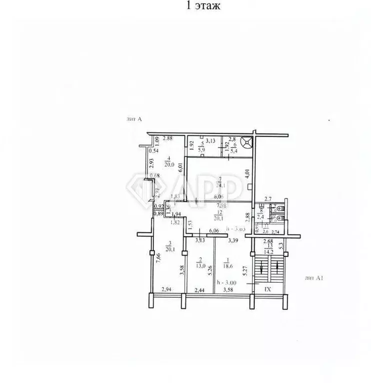
1
Этаж

Состояние и оснащение

Количество этажей
2
Развернуть
Агент
+7 (918) 072-33-81
Начать чат с агентом

Помещение свободного назначения в Краснодарский край, Кореновский ...

Продается торговое капитальное двухэтажное здание площадью 216.3 м в центральной части станицы на первой линии. Здание примыкает к центральному продуктовому рынку станицы. Строилось по разрешению на строительство, вводилось в эксплуатацию по акту ввода. Земельный участок только под зданием площадью 1.49 сотки (собственность). Подъездные пути позволяют подъехать к зданию с любой стороны. Активный автомобильный и пешеходный трафик.Земли населенных пунктов. ВРИ Общественное питание. Магазины.Парковка стихийная по фасаду здания.3 входные группы.Электричество 30 кВт.Водоснабжение и водоотведение центральные.Газ сетевой, коммерческий.Выполнен ремонт. Планировка свободная.Высота потолков 4.5 м.Без арендатора.В непосредственной близости расположены: культурно-досуговый центр Платнировского сельского поселения Кореновского района, Кореновская центральная районная больница, Платнировская участковая больница, Сбербанк, Агрокомплекс. Подойдет под свой вид деятельности, такой как ветеринарную клинику, стоматологический кабинет, офис своей компании или под сдачу в аренду для получения пассивного дохода.Дополнительно имеется 3й надстроенный мансардный этаж с ремонтом порядка 70 м2, который в общую площадь здания не входит. Без оплаты комиссии со стороны покупателя.Эксклюзивное предложение.Приглашаем коллег к сотрудничеству.Номер объекта: 1/545940/13126

Читать полностью
    Позвонить Написать
    15 000 000 Р192 900 $ или 166 400
    Агент
    +7 (918) 072-33-81
    Начать чат с агентом
    Похожие предложения
    Помещение свободного назначения в Краснодарский край, Горячий Ключ ул. ... - Фото 1
    Помещение свободного назначения в Краснодарский край, Горячий Ключ ул. ... - Фото 2
    Продаётся готовый бизнес с ежемесячным доходом Продаётся коммерческое помещение в административном центре Горячего Ключа. Общая площадь составляет 76,5 кв. м, оборудовано под сетевой продуктовый магазин с действующими арендаторами. Земля в собственности,...
    • 1/1 эт.
    16 000 000 Р
    Агент
    +7 (918) Показать номер
    Посмотреть контакты
    Помещение свободного назначения в Краснодарский край, Темрюкский ... - Фото 1
    Помещение свободного назначения в Краснодарский край, Темрюкский ... - Фото 2
    Отличная возможность приобрести высокодоходный бизнес в курортном п. Кучугуры.Выполнен капитальный ремонт и не требует вложений.На 6 сотках земельного участка с фасадом 30 мет., располагаются пять гостевых домов. С общей площадью 210 кв.м. Каждый дом...
    • 1/1 эт.
    15 800 000 Р
    Агент
    +7 (989) Показать номер
    Посмотреть контакты
    Помещение свободного назначения в Краснодарский край, Новороссийск ... - Фото 1
    Помещение свободного назначения в Краснодарский край, Новороссийск ... - Фото 2
    Продаю помещение с НДС на первом этаже, 152,3 м на первой линии Южный район с высоким трафикомОт Собственника. Без комиссии- Расположение: Южный район, первая линия, хорошо просматривается с перекрестка, рядом транспортная развязка, высокий автомобильный...
    • 1/17 эт.
    16 000 000 Р
    Агент
    +7 (918) Показать номер
    Посмотреть контакты
    Помещение свободного назначения в Краснодарский край, Геленджик ... - Фото 1
    Помещение свободного назначения в Краснодарский край, Геленджик ... - Фото 2
    В продаже помещение для офиса площадью 171 метр.( целый этаж) Два входа-выхода, шесть комнат площадь от 10 до 20 метров. Одна из комнат с душевой и на этаже еще два туалета. Офис находится в двухэтажном здании на 1 этаже. Территория базы очень большая...
    • 1/2 эт.
    14 500 000 Р
    Агент
    +7 (989) Показать номер
    Посмотреть контакты
    Помещение свободного назначения в Краснодарский край, Ейский район, ... - Фото 1
    Помещение свободного назначения в Краснодарский край, Ейский район, ... - Фото 2
    Звоните, пишите в удобное для Вас время, отвечаем круглосуточно Предлагается к продаже мини-гостиница, расположенная в станице Должанская, практически на самом берегу моря, на косе Долгая , на территории базы отдыха Рубин .Само строение является частной...
    • 1/1 эт.
    14 500 000 Р
    Агент
    +7 (918) Показать номер
    Посмотреть контакты

    Не нашли подходящего объявления?

    Оставьте заявку, и наши риэлторы подберут псн в районе Платнировской

    (0)