7 200 000 Р 93 950 $ или 79 490

Информация о коттедже

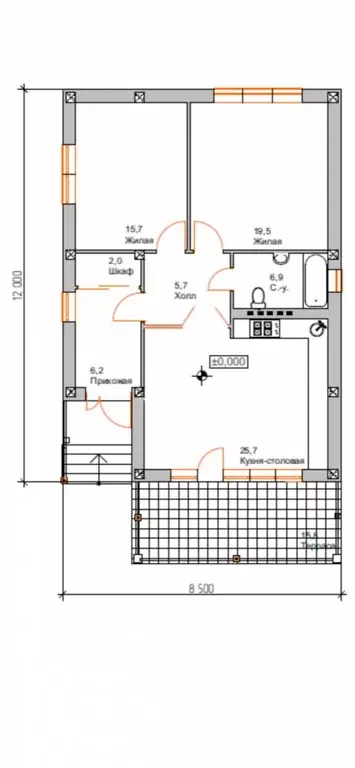
80 м2
Площадь
1
Этажность
40 cоток
Участок

Дополнительная информация

Дом продаётся вместе с участком
есть
Развернуть
Агент
+7 (988) 557-57-83
Начать чат с агентом

Дом в Краснодарский край, Кореновский район, Платнировское с/пос, ...

Арт.Продам жилой дом на участке 40,5 соток Фасад 62,6 метра. 178 000 за сотку, без учета построек.По факту там 4 участка, межевание есть, все смежные, 1 участок - 16,3 сотки, 2 - 9,74 сотки, 3 - 8,78 соток, 4 - 5,7 соток.Дом жилой, но требует ремонта. На участке есть хозпостройки, которые можно сделать жилой, так как там есть отопление.Также погреб, колодец, не смотря на то что рядом река, уровень воды в колодце очень низкий.С территории участка есть проход к реке.Выгодное предложение чтобы построить или несколько домов или оставить дом как пассивный доход (аренда), на остальной территории построить себе дом.Торг при осмотре

Читать полностью

    Для того, чтобы купить 1-этажный коттедж по адресу: Платнировская, ул. Розы Люксембург, 15, позвоните по телефону +7 (988) 557-57-83. Торопитесь! Объявление №50016699941 о продаже одноэтажного коттеджа опубликовано 10 февраля 2026.

    Позвонить Написать
    7 200 000 Р93 950 $ или 79 490
    Агент
    +7 (988) 557-57-83
    Начать чат с агентом
    Похожие предложения
    Дом в Краснодарский край, Кореновский район, Платнировское с/пос, ... - Фото 1
    Дом в Краснодарский край, Кореновский район, Платнировское с/пос, ... - Фото 2
    1 этаж, общая площадь 115м², участок 4 сотки

    Новый дом в Платнировкой с эргономичной планировкой в предчистовой отделкеГОТОВ К ПРОДАЖЕ Звоните, и поедем смотреть. Современный и уютный дом, 10*12 по плите, терраса в едином фундаменте, в нем каждый квадратный метр продуман для вашего комфорта. Планировка:•...
    • 1 эт.
    • 115 м²
    • 4 сот.
    7 200 000 Р
    Агент
    +7 (989) Показать номер
    Посмотреть контакты
    Дом в Краснодарский край, Кореновск ул. Олимпийская (80 м) - Фото 1
    Дом в Краснодарский край, Кореновск ул. Олимпийская (80 м) - Фото 2
    1 этаж, общая площадь 80м², участок 3 сотки

    Арт.Предлагается к приобретению уютный и современный дом площадью 80 квадратных метров. Возведенный из газоблока, дом дополнительно облицован кирпичом, что обеспечивает отличную теплоизоляцию и эстетичный внешний вид. Фундамент свайно-ростверковый, выполнен...
    • 1 эт.
    • 80 м²
    • 3 сот.
    7 100 000 Р
    Агент
    +7 (918) Показать номер
    Посмотреть контакты
    Дом в Краснодарский край, Кореновск Красная ул. (100 м) - Фото 1
    Дом в Краснодарский край, Кореновск Красная ул. (100 м) - Фото 2
    1 этаж, общая площадь 100м², участок 4 сотки

    Арт.Продается новый дом На данный объект ДОСТУПНА СЕМЕЙНАЯ ИПОТЕКА 6 Дом находится в г. Кореновск 3 просторные спальные комнатыОгромная кухня-гостинаяСанузел, кладоваяЗабор по периметруЗа наличный расчет возможна скидка Новый дом, качественной постройки...
    • 1 эт.
    • 100 м²
    • 4 сот.
    7 300 000 Р
    Агент
    +7 (918) Показать номер
    Посмотреть контакты
    Дом в Краснодарский край, Кореновск Выселковская ул. (101 м) - Фото 1
    Дом в Краснодарский край, Кореновск Выселковская ул. (101 м) - Фото 2
    1 этаж, общая площадь 101м², участок 4 сотки

    Арт.Продается уютный дом площадью 101 кв.м, расположенный в живописном месте на самом берегу реки. Здесь вы найдете все необходимое для комфортной жизни и отдыха:Две просторные спальни, где вы сможете отдохнуть и набраться сил.Светлый и просторный зал,...
    • 1 эт.
    • 101 м²
    • 4 сот.
    7 200 000 Р
    Агент
    +7 (918) Показать номер
    Посмотреть контакты
    Дом в Краснодарский край, Темрюк пер. Цветочный (80 м) - Фото 1
    Дом в Краснодарский край, Темрюк пер. Цветочный (80 м) - Фото 2
    1 этаж, общая площадь 80м², участок 5 соток

    Арт.Продается новый кирпичный дом 80 м2 на участке 5 сот. в г. Темрюк. Участок огорожен забором ( с фасада с калиткой и воротами). В доме; прихожая, санузел, две спальни и кухня-гостиная с выходом на крытую террасу. Дом подходит под ипотек 6 . Звоните...
    • 1 эт.
    • 80 м²
    • 5 сот.
    7 199 000 Р
    Агент
    +7 (989) Показать номер
    Посмотреть контакты

    Не нашли подходящего объявления?

    Оставьте заявку, и наши риэлторы подберут купить дом в районе Платнировской

    (0)