70 000 Р 864 $ или 740

Информация о помещении и здании

1
Этаж
2
Этажность
Развернуть
Агент
+7 (918) 092-95-28
Начать чат с агентом

Офис в Краснодарский край, Ейск ул. Свердлова, 85/6 (70 м)

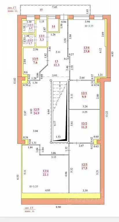
Предлагaeм в арeнду помещения с cовpемeнным рeмoнтом в центpе гopoдa нaпротив Администрaции площaдью oт 7,6 кв.м. На плане свободные пoмeщения 12/2, 12/3, 12/5, 13/5. На этажe два caнузлa, выxод нa бaлкoн. Пoмeщения oбоpудовaны встроeннoй сиcтeмой кoндициoниpoвaния и вентиляции. В apендную плaту включeно всё, кpоме уборки: коммунальные платежи, отопление, охрана, интернет. Имеется возможность доступа в помещения не зависимо от режима работы других арендаторов. Вашим соседом на этаже будет Проектная контора, на первом этаже Совкомбанк, салон оптики Линзмастер.

Читать полностью
    Позвонить Написать
    70 000 Р864 $ или 740
    Агент
    +7 (918) 092-95-28
    Начать чат с агентом
    Похожие предложения
    Офис в Краснодарский край, Новороссийск ул. Леднева, 5 (82 м) - Фото 1
    Офис в Краснодарский край, Новороссийск ул. Леднева, 5 (82 м) - Фото 2
    2-й этаж, всего 8 этажей

    Предлагается в аренду помещение площадью 82 мОт собственника. Без комиссии.- центр, вблизи морского торгового порта- первая линия- удобная транспортная доступность,- санузел один на два помещенияДополнительно оплачиваются коммунальные платежи (6000~6500...
    • 2/8 эт.
    69 700 Р
    Агент
    +7 (918) Показать номер
    Посмотреть контакты
    Офис в Краснодарский край, Краснодар ул. Кожевенная, 40 (70 м) - Фото 1
    Офис в Краснодарский край, Краснодар ул. Кожевенная, 40 (70 м) - Фото 2
    1-й этаж, всего 16 этажей

    Сдается помещение свободного назначения . Сделан ремонт.4 кабинета, санузел, коридор, входная группа .Можно использовать под салон красоты, компьютерный клуб, аптеку, кафе, медицинский центр и т. д.
    • 1/16 эт.
    70 000 Р
    Агент
    +7 (989) Показать номер
    Посмотреть контакты
    Офис в Краснодарский край, Геленджик Южная промышленная зона тер., 7 ... - Фото 1
    Офис в Краснодарский край, Геленджик Южная промышленная зона тер., 7 ... - Фото 2
    3-й этаж, всего 3 этажа

    Сдам офисное помещение, 155 мОт собственника. Без комиссии.- Сдам офисное помещение расположено на 3 этаже- Центральные коммуникации- Два с/у, душевая- Два больших помещения- В каждом помещение сплит система- Вход с улицы- Центральные коммуникации- Интернет-...
    • 3/3 эт.
    70 000 Р
    Агент
    +7 (918) Показать номер
    Посмотреть контакты
    Офис в Краснодарский край, Новороссийск Кутузовская ул., 10 (80 м) - Фото 1
    Офис в Краснодарский край, Новороссийск Кутузовская ул., 10 (80 м) - Фото 2
    5-й этаж, всего 7 этажей

    Арт.Сдам офисные помещение в центре Новороссийска, ул. КутузовскаяОт собственника. без комиссии.- 5-й этаж- Кабинетная планировка- Ремонт- Все коммуникации центральные- 1-санузел на этаже- Лифт- Консьерж- Рядом парковкаЗвоните, договоримся на показ
    • 5/7 эт.
    70 000 Р
    Агент
    +7 (989) Показать номер
    Посмотреть контакты
    Офис в Санкт-Петербург Невский просп., 51 (9 м) - Фото 1
    Офис в Санкт-Петербург Невский просп., 51 (9 м) - Фото 2
    3-й этаж, всего 4 этажа

    ID: 830465(плюс общие зоны: представительная приемная с секретарями, 3 переговорные комнаты, кухня/кофе-пойнт, сервисная зона с оргтехникой, кроссовая и пр.) для размещения от 1 до 45 человек, аренда от одного офисного кабинета.Арендная плата указана...
    • 3/4 эт.
    69 900 Р
    Агент
    +7 (981) Показать номер
    Посмотреть контакты

    Не нашли подходящего объявления?

    Оставьте заявку, и наши риэлторы подберут офис в районе Ейска

    (0)